Оглавление
Как выбрать и реализовать проект двухэтажной бани
Изготовление бань на основе готовых решений – очень популярная на рынке услуга. При этом владельцы земельных участков могут быть полностью уверены, что обретут, заказывая строительство здания в 2 этажа, проект бани из бруса или бревна, который будет соответствовать всем стандартам и нормам безопасности. В этом случае можно получить не только существенную экономию времени, но и качественный результат, подкрепленный гарантией.
В стандартную комплектацию строительные компании обычно включают:
- сруб (или коробку);
- фундаментное основание;
- перегородки;
- кровлю;
- дверные и оконные конструкции.
Проекты двухэтажных бань под ключ и цены на их реализацию зависят от габаритов сооружения и материала, выбранного для строительства.
Баня с мансардой из бруса — одно из недорогих популярных решений
Подбирая размер будущей постройки, необходимо учитывать следующие нюансы:
- тип размещения бани на участке (отдельное сооружение или пристройка к жилому зданию);
- общую площадь земельного участка и количество свободного места;
- число людей, которые будут посещать баню;
- толщину межкомнатных перегородок и стен;
- тип утеплителя и материал отделки;
- внутреннюю планировку и ее особенности.
Характеристика проектов и цены двухэтажных бань из бруса и бревна
Для строительства бани подойдут практически любые материалы, однако самыми популярными считаются брус и бревно. Чтобы определиться с тем, какой вариант более приемлем, необходимо сравнить характеристики каждого из них.
Сравнительная характеристика материалов для строительства бани:
| Критерий | Проекты двухэтажных бань из бруса | Проекты двухэтажных бань из бревна |
| Цена материала, руб./м³ | Нестроганый (5000) | Неокоренное (5000) |
| Профилированный (10000) | ||
| Высушенный (10000) | Оцилиндрованное (10000) | |
| Клееный (25000) | ||
| Особенности монтажа | Длительность строительства от 2 до 6 недель, возможность выполнения работ собственными руками | Длительность строительства от 2 до 8 недель, работы выполняются специалистами, ввод в эксплуатацию через 6 мес. |
| Экологическая чистота | Экологичность (за исключением клееного бруса, при его покупке следует проверять характеристики клеевого состава) | Экологически чистый материал |
| Степень усадки | Клееный – 2% | 15% |
| Профилированный – 5 % | ||
| Нестроганый – 10% | ||
| Особенности отделочных работ | Конопатка стен необходима лишь в тех случаях, когда используется необработанный брус, профилированный материал этого не требует | Стены нуждаются в конопатке, а также шлифовке |
| Декоративные свойства | Современный внешний вид, большой выбор дизайна | Аутентичность, присущая традиционным русским парилкам |
| Цена строительства бани 6х6 м, руб. | 409000 (63 м²) | 463000 (64м²) |
Для строительства современной бани желательно использовать брус. На рынке присутствует несколько разновидностей этого материала, каждая из которых обладает собственными преимуществами и недостатками, свойствами и техническими характеристиками.
Например, строганый брус может иметь размер сечения в пределах 150-200 мм. Его сечение бывает квадратной или прямоугольной формы. Данный вариант считается самым бюджетным, но в отношении эксплуатационных характеристик он существенно проигрывает другим видам бруса. Профилированному материалу присуща геометрическая четкость форм и размеров, благодаря чему строительство бани значительно упрощается и ускоряется. Размер сечения находится в диапазоне от 100 до 150 мм.
Клееный профилированный брус считается самым высококачественным вариантом материала. Проекты, созданные на основе этого сырья, имеют наиболее высокую стоимость. На сегодняшний день владельцы дачных участков с ограниченной площадью могут позволить себе даже такую роскошь, как строительство комфортной бани. Это стало возможным благодаря современному подходу к проектированию зданий. Главное – грамотно подойти к выбору планировки и строительного материала.
Перегородка в деревянной бане
Такой вариант тоже вполне возможен. Особой практичностью такое решение не отличается, поэтому к нему прибегают в основном по соображениям дизайна. В этом случае есть два варианта:
- Из облицовочного кирпича с обязательным каркасом из другого материала;
- Из кирпича с толщиной кладки в один кирпич и на собственном фундаменте.
Использование облицовочного кирпича для внутренней неоштукатуренной перегородки более практично. Облицовочный кирпич, особенно если он пустотный, обладает низкой прочностью, поэтому его кладка обязательно должна крепиться к какому-либо основанию. Деревянная каркасная конструкция в качестве него вполне подходит.
Кирпичная перегородка в деревянной бане своими руками может быть создана и без специальной покупки облицовочного кирпича. В этом случае кладку нужно делать в один кирпич, а конструкция обязательно строится на каменном или бетонном фундаменте.
Толщина в один кирпич требует в два раза больше материалов, но для них сгодится обычный строительный кирпич без внешних дефектов поверхности. С учетом цены облицовочного кирпича вдове большее количество обычного часто может стоить дешевле.
Выбор, какой кирпич нужен для перегородки в бане, ведется по соображениям дизайна и стоимости. За облицовочным кирпичом большое преимущество. Он представлен в большом многообразии вариантов.
В деревянной бане толщина кирпича может быть любой. В кирпичной бане она должна совпадать с размерами основного кирпича, который используется для кладки наружных стен.
Дизайн
При самостоятельном дизайне бани внутри не стоит забывать о правилах. Главное правило – соблюдение норм пожарной безопасности. Например, деревянные, а также другие легко воспламеняющиеся предметы должны находиться на метровом расстоянии от печи. Внутренняя отделка бани желательна натуральная, экологически чистая.
При стремлении сэкономить кирпичную баню внутри можно вообще ничем не отделывать. Современный дизайн бани иногда предполагает применение отделочного кирпича для украшения стен. Лучший вариант недорогой отделки бани – древесина. Она требует минимальных навыков работы с инструментами, такая отделка не составит особого труда.
Например, полноценный гардероб, а также места для отдыха. Стандартный набор необходимых предметов: стол, скамьи, шкаф. Материал отделки стен и цвет мебели можно выбирать на свой вкус.
Стандартная парная включает: печь каменку, полки, которые обычно возводятся на разных уровнях. Парилка – очень значимое помещение для бани. Расположите полки согласно индивидуальным предпочтениям. Чем выше полка, тем жарче на ней будет находиться.
Проектирование бани из кирпича

При проектировании кирпичной бани разберитесь в назначении будущей постройки. Понятно, что она нужна для принятия горячего пара и воды в оздоровительных целях. Но ведь, кроме этого, в бане можно неплохо провести время. Поэтому, помимо предбанника, помывочной и парилки, комната отдыха будет весьма кстати. Если финансовые возможности позволяют, планируйте сооружение купели или бассейна для вашей бани. При дефиците жилплощади в доме можно запланировать в бане два этажа или мансарду. Еще один важный момент — определите нужный объем каждого из помещений постройки. Например, парилку не стоит делать самой большой по площади, так как продолжительность пребывания в ней невелика. Для расслабления и чайных церемоний должна служить комната отдыха — делайте ее больше для комфортного размещения в ней нужного количества взрослых людей одновременно.
Обратите внимание на все ответственные моменты проекта бани из кирпича:
- Окна бани должны быть ориентированы на запад, так можно сэкономить на ее освещении.
- Вход выполняется с южной стороны. Зимой возле него обычно меньше сугробов, которые весной будут таять быстрее.
- Согласно СНиП, баня располагается не ближе 3 м от забора, чтобы в случае возгорания иметь к ней доступ со всех сторон.
- Для парилки оптимальные размеры — от 2,5х2,5 до 3,5х3,5 м.
- Дверь в парную выполняется с высотой порога над полом 30 см и имеет размер 1,7х0,6 м.
- Окно парилки всегда открывается наружу, располагается в метре от пола и имеет размер 40х50 см.
- Полки изготавливаются шириной 70-80 см с высотой от пола 75 см. От верхней полки до потолка должно оставаться расстояние — 105 см.
- Печь располагать лучше топкой в предбанник, а камнями — в парилку.
- Дверь между предбанником и моечным отделением имеет размеры 1,7х0,6 м.
- Открывание всех дверей бани должно выполняться только наружу, так гласит техника безопасности.
После проектных изысканий приступаем к практическому решению нашего вопроса, как построить баню из кирпича.
Как построить баню из кирпича своими руками: кладка стен с утеплением (с фото и видео)
При строительстве стен с утеплением в бане из кирпича, возводимой своими руками, используются следующие конструкции:
- двойная стена с пустотой для воздуха в ее толще шириной 4-6 см;
- двойная стена, выложенная по типу колодца, с засыпкой теплоизоляции между внутренним и наружным кирпичными рядами с поперечными перегородками;
- стена с внутренней облицовкой из плитного утеплителя.
Постройка таких стен позволяет сэкономить кирпич благодаря внутреннему воздушному пространству или использованию утеплителя. В результате кладка получается достаточно толстой и обеспечивает хорошую теплоизоляцию строения.


Чтобы построить баню из кирпича прочной и долговечной, кладка и обработка швов при возведении таких стен требуют сосредоточенности и особой аккуратности.
Двойная стена с воздушным промежутком должна иметь кладку наружного ряда толщиной в полкирпича. Выложив 4-6 рядов, обе стенки по всему периметру нужно обложить тычковым рядом. Вместо этого можно армировать стенки, стягивая их с помощью стальных прутков сечением 6-8 мм с шагом в 0,5 м. Концы прутков нужно загнуть вокруг кирпичей, поверх которых они устанавливаются.
При сооружении кладки колодцем с засыпкой теплоизоляции необходимо через каждые 3 кирпича делать поперечные стенки-перемычки.
Как видно на фото, при строительстве бани из кирпича своими руками углы в этом случае выкладываются тычковыми рядами:


По мере возведения стены полость в ней нужно заполнять теплоизоляцией, слой которой после утрамбовки должен составлять 10-15 см.
Каждые 2-3 слоя такой изоляции необходимо поливать известковым раствором, разведенным до консистенции сметаны.
В качестве засыпки для теплоизоляции можно использовать керамзит, мелкий шлак или смесь из песка, опилок и извести-пушонки в пропорции 2:2:1.
Завершать кладку колодцем следует сплошной кладкой в 2-3 ряда, предварительно уложив на последний ряд металлическую сетку с заполнителем из бетонного раствора.

Армирование последнего ряда и плотно закупорит стену с изоляционной прокладкой, и станет прочным основанием для крыши.

Третий способ утепления стен при строительстве бани из кирпича подразумевает использование плитных утеплителей. Для их крепления к стене используются специальные растворные маяки, которые позволяют оставлять между стенкой и утеплителем небольшой (2-4 см) воздушный зазор.

Для крепления плит к кирпичной стене можно использовать обычные деревянные рейки. Сначала их прибивают к пробкам, вставленным в швы кладки, а затем к ним прибиваются плиты. Таким образом, между кирпичной стеной и плитой также остается небольшая воздушная прослойка.
В качестве утеплителя можно использовать фибролит, арболит, плиты из легкого бетона, жесткие плиты из минеральной ваты и другие неорганические теплоизоляционные материалы.


При использовании утеплителя из фибролитовых плит, толщина которых составляет 50 мм, необходимо делать кладку стен в 1,5 кирпича, тогда как при использовании эффективного кирпича должной теплоизоляции стен можно добиться даже, выкладывая стену в 1 кирпич (толщина кладки 25 см).
Толщина несущих внутренних стен бани должна быть не менее 25 см, а перегородок — в 1/2 или в 1/4 кирпича (кладка кирпича на ребро).
Таким способом удастся сделать тонкую перегородку достаточно прочной и жесткой.
Посмотрите видео «Баня из кирпича своими руками», где показаны все основные этапы строительства:
Типы и последовательность кладки стен
Возведение кирпичных стен следует начинать после гидроизоляции фундамента. Для этого используют рулонные материалы типа рубероида, техноэласта, стеклоизола или различные битумные и битумно-полимерные мастики. Чаще всего стены возводятся по системе однорядной перевязки, так как она проста, и ее можно без особых трудностей установить в одиночку. Такая конструкция представляет собой смену ложковых и тычковых рядов кирпича. Применяется, когда не планируется использование лицевого слоя облицовочного кирпича.

Для тех, кто не знаком с технологией кладки стен: ложковый ряд — это ряд из кирпичей, которые укладываются своей боковой стороной вдоль стены, а тычковый ряд укладывается короткими торцами к наружной стороне стены.
Существует три основных типа кладки кирпичных стен:
- Сплошная кладка, когда кирпич укладывают в два ряда без зазора между рядами.
- Кладка с вентиляционным зазором 40–60 мм.
- Облегченная кладка. Состоит из двух стенок, между которыми засыпают утеплитель, будь то керамзит, мелкий шлак или другие аналоги.

Чаще всего используется именно третий вид конструкции, так как она позволяет уменьшить давление на фундамент и сэкономить на стройматериале, так как кирпич в наше время довольно дорогостоящий.
Не менее популярной является сплошная кладка, так как она более прочная и надежная.
Вне зависимости от выбранного типа кладки, все они начинаются с углов. Для начала необходимо выложить шесть рядов кирпича на раствор по углам. Вдоль каждого ряда необходимо провести шнур. Им обматывают гвозди, которые вставляются в швы между кирпичами на расстоянии 3–4 мм от вертикали ряда. Шнур помогает определить ровность кладки. Для этой цели также используют строительный уровень и отвес.

Цоколь бани при необходимости стоит выкладывать из полнотелого кирпича, а сами стены — из пустотелого.
При кладке важно работать быстро, чтобы цементный раствор не успел схватиться. Если строительные работы проводят в летнее время, кирпич предварительно смачивают водой
Толщина слоя такого раствора должна составлять 2–3 см.
Существует несколько вариаций сплошной кладки, среди них:
- «однорядовка»
- «многорядовка»
Отличаются они тем, что при однорядовке идет постоянная смена тычкового и ложкового ряда, а при многорядной системе кладки тычковые ряды идут через 5–6 ложковых рядов.
При кладке тычковых рядов необходимо наносить раствор с отступом в 10 мм при заполнении швов и на 30–35 мм при кладке пустошовки. Если у вас завалялись кирпичи с какими-нибудь дефектами, не спешите их выбрасывать, лучше используйте для кладки ложковых рядов, помимо углов и опорных зон.

Внутренние несущие стены должны иметь толщину не менее 20 см. Поперечные простенки обычно состоят из половинок или четвертинок кирпича. Если длина такого простенка превышает 1,5 м, то их необходимо дополнительно укрепить при помощи пояса армирования через каждые три ряда.
Дверные и оконные коробки монтируются непосредственно в процессе кладки. В боковые части проемов устанавливают деревянные бруски толщиной с кирпич. Их оборачивают слоем рубероида и просмаливают.
Тут же необходимо обустроить вентиляционные отверстия. Обычно в подобных банях устанавливается система вентиляции приточно-вытяжного типа. Состоит она из двух отверстий: одно регулирует приток воздуха, второе — вытяжное отверстие. Первое лучше всего располагать под дном печки, а второе — как можно дальше от каменки, сантиметров на 7–8 ниже уровня потолка. Также можно предусмотреть специальные заслонки, которые помогут регулировать поток воздуха в парилке.
Дизайн
При самостоятельном дизайне бани внутри не стоит забывать о правилах. Главное правило – соблюдение норм пожарной безопасности. Например, деревянные, а также другие легко воспламеняющиеся предметы должны находиться на метровом расстоянии от печи. Внутренняя отделка бани желательна натуральная, экологически чистая. Поэтому не стоит применять бюджетную пластиковую альтернативу, которая может быть раскрашена под дерево. Несмотря на денежную выгоду, пластик не отличается практичностью, так как не пропускает пары. К тому же, под действием пара и температур будет выделять вредные вещества.


При стремлении сэкономить кирпичную баню внутри можно вообще ничем не отделывать. Современный дизайн бани иногда предполагает применение отделочного кирпича для украшения стен. Лучший вариант недорогой отделки бани – древесина. Она требует минимальных навыков работы с инструментами, такая отделка не составит особого труда. Если рассматривать подробнее, то дизайн бани лучше начитать с предбанника
При выборе вариантов стоит учесть, что в помещении отдыхают после водных процедур, поэтому внутри важно предусмотреть максимально комфортную функциональность


Например, полноценный гардероб, а также места для отдыха. Стандартный набор необходимых предметов: стол, скамьи, шкаф. Материал отделки стен и цвет мебели можно выбирать на свой вкус.
Стандартная парная включает: печь каменку, полки, которые обычно возводятся на разных уровнях. Парилка – очень значимое помещение для бани. Расположите полки согласно индивидуальным предпочтениям. Чем выше полка, тем жарче на ней будет находиться.




Если полки и стены парной отделывают деревом, то место у печи – обязательно кирпичом или, как вариант, натуральным камнем. Если моечная комната представляет собой отдельное помещение, то оно тоже требует дизайнерского подхода к оформлению. В стандартной душевой должны обязательно присутствовать лавки, душ либо кадка с холодной водой (как раньше, в русской бане). Душевая не предполагает обязательной отделки из дерева. В качестве материала отделки подойдет декоративная плитка или стеновые панели.
Кирпичная баня
Для кирпича меньше ограничений в выборе места под строительство и при реализации конфигурации помещений. Под здание бани выбирают огнеупорный материал.
Баня из кирпича: плюсы и минусы
Из плюсов кирпичной бани выделяют:
- пожарную безопасность;
- срок службы;
- экологичность;
- разнообразие проектов;
- простоту эксплуатации.
Глина, из которой делаю кирпич, — природный материал, поэтому можно говорить о его экологичности. Древесину на этапе строительства бани обрабатывают антипиренами и препаратами против гнили, которые несут с собой вредные примеси
Поджечь блоки невозможно, что важно для здания, т. к
используют твердотопливные печи, в топке которых температура достигает 600°. Баня из кирпича прослужит 60 и больше лет при должном уходе. Строение из бруса выдерживает такой же срок, но расход на обслуживание выше в 2—3 раза. Оцилиндрованный или строганный брус не изгибают, что мешает созданию дизайнерских построек. Форму стены бани из блоков делают криволинейной, если этого требует проект.
При выборе материала учитывают минусы:
- теплоемкость;
- необходимость утепления;
- влагопоглощение;
- цена;
- фундамент.
Теплопроводность кирпича выше, чем у древесины, поэтому необходимо утепление бани изолятором. Микропоры в блоках впитывают влагу, разрушаясь от перепадов температур и теряя прочность. Проект бани из кирпича может обойтись дороже такого же по габаритам из оцилиндрованного бревна. Вес постройки требует прочного фундамента, что также увеличивает затраты и создает проблемы на нестабильных грунтах.
Из какого кирпича лучше строить баню
При возведении стен кирпичной бани используют колодцевую кладку, особенностью которой является наличие воздушной прослойки между плоскостями. Такой подход позволяет утеплять поверхность изнутри. Из блоков применяют:
- красный керамический кирпич;
- красный поризованный кирпич.
Керамический подойдет для облицовки и кладки. Блоки производят полнотелыми или пустотелыми. Первые обладают большей несущей способностью, вторые — теплоизоляционными свойствами. Полнотелый кирпич укладывают в два ряда, если из него возводят стены бани. Пустотелый не подходит для цоколей и дымоходов.
Поризованные блоки представляют собой формованную смесь с глиной, в которую добавляют опилки
При обжиге последние превращаются в пепел, образуя пустоты, что важно для теплоизоляционных свойств. Теплопроводность сравнима с той, которой обладает оцилиндрованный брус
Преимущества: звукоизоляция, небольшой вес и прочность.
Совет! Если предусмотрено утепление стен бани минеральной ватой и обустройство гидроизоляции, то подойдет и силикатный кирпич для строительства.
Как построить баню из кирпича
Перед строительством кирпичной бани выбирают место на участке согласно нормам СНиП. Ее удаляют от соседского забора на 1 м. При этом скат кровли должен заканчиваться на участке владельца. Если на территории соседа есть постройка из древесины, то расстояние от бани до нее должно быть больше 15 м. Такой же промежуток выдерживают до открытых источников питьевой воды и лесного массива. Не примыкающую к дому кирпичную баню удаляют на 8 м и от проезжей части на 5 м.
После выбора территории определяются с проектом, который необходим для подсчета строительного материала и расчета подводимых коммуникаций. Количество блоков для стен определяют делением площади поверхности на площадь кирпича. Учитывают толщину шва, чтобы не было излишка. Выбирают тип скатной или плоской кровли для кирпичной бани. Последняя не подходит для местности с обильными снегопадами зимой. Для снижения сметы проекта кровлю покрывают профильным листом. Его количество определяют по примеру с кирпичами.
Окна и двери для бани из кирпича приобретают пластиковые. Они устойчивы к воздействию влаги и не деформируются при перепаде температуры. Под красный кирпич подойдут ламинированные рамы с имитацией древесины. Одну створку делают открываемой для проветривания. Внутри парилки ставят небольшое окно для снижения теплопотерь. Входную дверь в баню делают деревянной или пластиковой.
Если нужен эконом вариант
Не обязательно выстраивать большую баню, чтобы наслаждаться парными процедурами – всегда есть возможность построить баню дешево, используя эконом вариант. При этом сэкономить можно на многом, например:
- Материал стен. Баня из дерева более предпочтительна, но из блоков экономически выгодна. Если не хочется отступать от деревянной застройки, предпочтительнее выбрать технологию каркасного строительства, при которой можно использовать бывшую в употреблении обрезную доску или низкосортную не обрезную, придав дополнительный колорит внешнему виду бани.
- Тщательное планирование. На стадии создания проекта уменьшить размеры комнат до минимально допустимых. От комнаты отдыха можно отказаться. А вот парилку следует выполнять с учетом всех требований безопасности: в слишком маленькой парилке легко обжечься о каменку или обвариться паром. Помывочную можно объединить с парилкой.
- Водосточная система. Можно отказаться от подачи воды в баню по трубопроводу, достаточно обустроить печь с баком для подогрева воды и приносить воду в ведрах. От санузла и вовсе можно отказаться.
Эконом баняИсточник drevo72.ru
Возведение стен для бани из кирпича
Чтобы построить своими руками баню из кирпича, для начала его нужно правильно выбрать. Надежные стены возводят только из красного кирпича, так как силикатный его аналог быстро разрушается под воздействием влаги, которая хорошо поглощается его поверхностью. Керамический кирпич более устойчив к сырости, а благодаря своей огнестойкости используется даже при кладке печей.
Способы и правила кладки стен из кирпича

Для стен бани существуют такие способы укладки кирпича:
- В полтора или два кирпича.
- Кладка «в колодец» — это двойные стенки, соединенные внутри между собой короткими поперечными перегородками. Свободное пространство заполняется утеплителем.
- Двойные стены, имеющие между собой воздушный зазор в 4-6 см.
При укладке кирпича важно выполнять такие правила:
- Первый ряд кладки должен состоять всегда только из неповрежденных штучных изделий.
- Укладка каждого ряда идет с наружных кирпичей.
- Битый кирпич можно использовать для заполнения внутренней стороны ложковых рядов.
- Битый кирпич не применяют для перевязки углов и кладки опорных участков.
- Перед укладкой кирпич смачивается водой для лучшего сцепления с раствором.
Теперь рассмотрим как вести каменную кладку из керамического красного кирпича.
Подготовка к ведению кладки из кирпича
В первую очередь на готовом фундаменте нужно установить порядовки. Это поможет вести ровную кладку. Это выполняется с помощью отвеса в местах соприкосновения и пересечения стен на углах кладки и на ее прямых участках. Шнуры натягиваются для выравнивания каждого ряда. Чтобы избежать при этом провисаний шнура, через каждые 5 м под него подставляют маячные кирпичи.
Как перевязывать кладку из кирпича

Для того чтобы готовая стена после усадки бани не расползлась по вертикальным швам, необходима их правильная перевязка. Существует три способа:
- Однорядная цепная система — чередование тычковых и ложковых рядов. Вертикальные швы перевязываются на полкирпича, а поперечные в каждом ряду смещаются на одну четверть кирпича. Эта система довольно трудоемка, но надежна.
- Каждые три ложковых ряда чередуются с одним тычковым. Поперечные вертикальные швы не перевязывают в трех смежных рядах. Такая система очень подходит для кирпичной кладки колонн и небольших простенков.
- Система «многорядка» — здесь чередуются пять ложковых рядов с одним тычковым. Поперечные вертикальные швы ложковых рядов смещаются на полкирпича, а тычковых — на четверть. Такая кладка может использовать половинки кирпича, тем самым позволяя сэкономить материал.
Кладка углов кирпичной бани

Первый угол начинают поднимать с укладки в него ? кирпича. При малой нагрузке на стены для низа оконных проемов можно применять половинки кирпичей. Чтобы не было смещения вертикальных швов, на одну четверть кирпича складывают версту (верста — это крайние ряды кирпичей в кладке). При кладке нечетного ряда — тычковыми сторонами (кирпич ложится поперек стены), а четного — ложковыми (кирпич ложится вдоль стены). Внутреннюю версту выполняют любым способом — это зависит от толщины стены. Пустоты в углах закладывают четвертинками кирпича. Геометрия выложенного угла проверяется строительным угольником, а его вертикальность — с помощью отвеса и правила. Незначительные отклонения исправляются рядом выше.
Создание швов кирпичной кладки

Раствор для кладки готовится из воды, песка и цемента. Он должен быть достаточно пластичным для качественного заполнения пустот между кирпичами. Если вы правильно уложите кирпичи на качественном растворе, кладка получится прочной. Толщина ее вертикальных швов принимается равной 10 мм, а горизонтальных швов — 12 мм. Форма швов кладки бывает вогнутой, выпуклой и прямоугольной. Создается она специальным инструментом — строительной расшивкой.
Кирпичные перемычки для проемов в бане

Рядовые перемычки над оконными и дверными проемами используются для пролетов менее двух метров. При их изготовлении необходимо соблюдать горизонтальность рядов и правила перевязки кирпичей в кладке. В высоту рядовая перемычка насчитывает 6-9 рядов, а длина — на полметра больше ширины проема. Перемычки укладываются на растворе М25 из качественного кирпича. Для изготовления перемычек применяется опалубка из досок толщиной 4-5 см. Иногда ее могут заменить коробки дверей и окон, закрепленные в кладке. В этом случае их древесину нужно защитить слоем рубероида.
Вначале на опалубку укладывается раствор слоем в 2-3 см, в нем размещаются три арматурных стержня диаметром 6 мм, которые запускаются в общую кладку более чем на 25 см и закрепляются, обвязывая кирпич.
Рядовая перемычка выдерживается на опалубке чуть более 12 суток при температуре среды выше десяти градусов и до 24 суток при его температуре до десяти градусов.
Проекты бань из кирпича
Важным этапом начала любого строительства является проектирование объекта. Построить отличную баню из кирпича можно, использовав в качестве основы готовый типовой проект или разработав его самостоятельно с учетом личных потребностей и предпочтений.
Если участок имеет ограниченное пространство, можно обойтись строительством небольшой бани размерами 3Х4.

Самый простой проект небольшой бани размерами 3Х4Источник mos-logist.ru
Большие площади участка дают свободный полет фантазии и позволяют легко реализовать проект любых размеров.

Проект бани с бассейномИсточник pinterest.com
Независимо от размеров, баня включает в себя несколько различных по назначению помещений, расположенных под одной крышей и разделенных перегородками:
- моечную;
- парилку;
- комнату отдыха.
Наличие и расположение других помещений планируют по желанию застройщика. В зависимости от назначения постройки и ее размеров, количество дополнительных комнат не ограничено.

Проект жилой баниИсточник banya-ili-sauna.ru
Продуманная внутренняя планировка и удобное расположение необходимых элементов в бане облегчает ее эксплуатацию и уход. Даже небольшие комнатки требуют разделения на функциональные зоны. Это позволит использовать их прямому назначению.
При оборудовании входной двери в комнате отдыха, зимой холодный воздух поступает в помещение и охлаждает его. Этого можно избежать, применив один из предложенных способов:
- строительство утепленного тамбура при входе;
- устройство крытой веранды;
- установка капитальной разделительной перегородки в комнате отдыха.

Пример проекта и планировки бани из кирпичаИсточник oamin.ru
Проекты кирпичных бань включают подробную разработку каждого элемента:
- фундамента;
- стен;
- потолка;
- кровли.
Главным объектом проекта бань является печь. Она должна быть удобна в использовании и отлично прогревать помещение. Размер печи зависит от площади бани. Оборудованное место для хранения небольшого количества дров значительно облегчит обслуживание печи. Ее удобнее всего располагать со стороны комнаты отдыха.

Устройство печи из кирпича для баниИсточник yellowmaster.ru
Металлические печи, предлагаемые производителями в самых различных вариациях, быстро нагреваются и просты в установке. Металлическую печь чаще всего обкладывают рядом кирпича, защищающего металл от перегрева.
Проекты бань больших размеров нередко предусматривают строительство санузла, кухни и других помещений. Реализация таких проектов осложнена устройством обогрева, ведь комнаты должны равномерно прогреваться. Для этого устанавливают дополнительные системы отопления:
- газовые котлы;
- электрические обогреватели;
- котлы на твердом топливе;
- конвекторы.

Камин для обогрева комнаты отдыхаИсточник ninfest.ru
Установка комбинированной системы отопления позволяет использовать самый доступный способ обогрева бани из кирпича больших размеров и регулировать расходы.
Проекты
При строительстве своими руками главная сложность – планирование помещений внутри постройки. В решении задачи помогут готовые проекты. Можно строить в точности с найденными чертежами, а можно взять проект за идею и видоизменить его для собственных целей. Рассмотрите варианты небольших кирпичных бань, которые проще всего построить самостоятельно.


Баня 6×4 м
Исходный вариант проекта предполагает наличие трех помещений:
- Комната отдыха (10,4 кв м).
- Моечная комната (1,75 кв м).
- Парная (4,75 кв м).
Планировку бани легко изменить, поменяв местами дверные проемы. Учитывайте, что вход напрямую в комнату отдыха – не самый лучший вариант, особенно зимой. Ведь при открывании дверей холод будет поступать внутрь. Для устранения недостатка послужит пристроенный снаружи тамбур
Чтобы устранить попадание холодного воздуха с улицы в комнату, тамбур важно правильно утеплить. Еще один похожий способ – сооружение террасы
Защитой от холода послужит установленная в комнате отдыха перегородка. С помощью сооружения можно отделить небольшой участок помещения. В результате перепланироваки получится длинная комната отдыха.


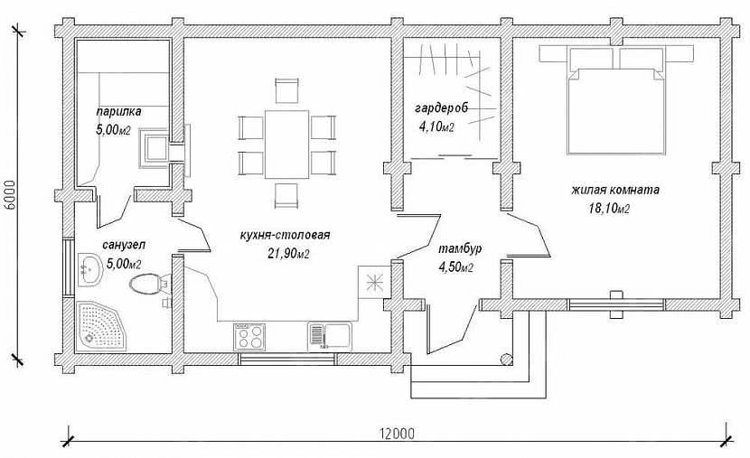
Одноэтажная баня 6х5 м
Сооружение с достаточными габаритами может быть превращено в гостевой дом-баню.
Здесь внутри предусмотрены:
- холл;
- гостиная приличных размеров;
- комната отдыха;
- парная;
- санузел.
Отличительная черта – пристроенная снаружи веранда.
Баня 3 на 4 метра
Несмотря на столь малые габариты, баня 3х4 м вполне подойдет для семейного пользования. Кроме того, постройка предполагает несколько вариантов размещения комнат внутри. Некоторые планировки также подразумевают вход в комнату отдыха прямо с улицы. Отгораживать небольшое помещение бессмысленно, а потому защитой комнаты отдыха от холодного воздуха послужит пристроенный тамбур.


Еще один вариант изменений – исключение отдельной моечной комнаты. Русская баня предполагает, что можно одновременно мыться и парится. Сооружение отдельной моечной – современные интерпретации традиционной бани
Здесь важно предусмотреть правильно расположение печи каменки. Например, угловая печка не будет мешать людям при водных процедурах
Немного увеличить полезную площадь бани можно сооружением подполья. Погреб нужен, например, для хранения домашних заготовок, или как склад для хозяйственных принадлежностей.


В большой бане важно правильно учесть расположение печи. Нужно, чтобы она отапливала все помещения
При этом важно подобрать вариант печки, ведь она будет работать еще и как отопительная. При строительстве бань из кирпича важно уже владеть техникой кирпичной кладки. Научиться класть кирпич можно, присутствуя на строительстве. Например, если ваши соседи занимаются возведением сарая. Попробуйте посмотреть на процесс, уточните у них интересующие вопросы
Особое внимание уделите возведению углов постройки. От этого этапа зависит геометрия и прочность сооружения







