Оглавление
Проект бани из бруса с бассейном
Всесезонный вариант — бассейн под одной крышей с баней. Проект традиционной парилки из клееного бруса составляют на основе чертежа фасадов и плана этажа. Обязательно предусматриваются такие пункты:
- Фундамент — ленточный, столбчатый, свайный в зависимости от типа грунта и рельефа.
- Наружные стены — клееный брус 100х150 или 150х150 мм для регионов с холодными зимами.
- Внутренние перегородки — тот же брус.
- Обшивка стен наружная — плиты ЦСП.
- Отделка внутренняя — кедровая вагонка.
- Перекрытия — клееный брус 100х150 мм.
- Крыша — двускатная, вальмовая или ломаная для мансард. Стропильная система из доски или бруса.
- Кровля — из ондулина, профлиста, металлочерепицы.
- Теплоизоляция — минеральная базальтовая вата.
- Гидро-, пароизоляция — защитные мембраны, пленка с фольгой или без.
- Полы — по керамзитной засыпке, бетонная черновая стяжка, гидроизоляция из рубероида, финишное покрытие по желанию застройщика.
- Для бассейна и печи-каменки — отдельный фундамент из монолитного железобетона толщиной 200 мм по щебеночной подсыпке.
- Чаша — готовая акриловая или железобетонная с проникающей гидроизоляцией. Отделка — керамическая плитка для бассейнов с нескользящей поверхностью.
Проект бани с бассейномИсточник retrolot.ru
Еще несколько популярных размеров
8 на 8
Обратите внимание на фото планировки бани 8 на 8 — сразу видно, что внутри полно полезного пространства, которое требует от вас только одного: используйте его с толком! Очевидно, что столь крупные бани сегодня — это скорее исключение из правил. Соответственно, чем больше возможностей, тем сложнее в итоге придти к единственно верному решению
Целесообразно в таком случае обратиться к профессиональным специалистам, которые смогут выполнить планировку такой бани максимально качественно. Тем не менее, несколько хороших идей вы почерпнуть вполне можете — из фото, что расположены ниже.
Как правило, в таких больших банях можно сделать хамам: отвести под это дело отдельное помещение, оборудовать его нужными лежаками, поставить массажный столик. Женщины очень любят турецкую баню!
Варианты планировки
Стандартная планировка бань 4×5 м — наличие парной, моечной и комнаты отдыха. Если строение слишком маленькое, парилку и моечную строят вместе. Но в случае со строением 5х4 м, которое довольно просторно, можно легко реализовать данные помещения отдельно друг от друга. Это более удобно, но можно выбрать тот вариант, который подойдет владельцу.


Чтобы в парилке помещалось больше людей, необходимо делать двухъярусные полки, которые позволят рационально использовать ее площадь. Минимальные размеры помещения — 2×2 метра. Моечная может быть различных размеров. Некоторые делают ее такой же, как и парная, кто-то старается сделать более маленькую душевую, в которую можно поставить лишь кабинку. Если есть необходимость сделать вместимость бани больше, делать это следует за счет душевого помещения, ведь туда люди заходят по одному, в то время как в парилке и комнате отдыха могут находиться большой компанией.


Комнату отдыха следует распланировать таким образом, чтобы в нее помещались стулья и стол. Часто данное помещение является самым большим. Если не предусматривается отдельный предбанник, нужно подумать над местом, где люди смогут оставлять свою обувь и различную одежду.
Если баня будет «круглосуточная», необходимо сделать тамбур небольших размеров. Он может быть 1 метр шириной и 3-3,5 метра длиной. Лучше, если вход будет находиться с одного края. Можно сделать место, где станут храниться дрова и другие необходимые вещи.


Многие считают, что небольшие размеры бани не дают возможность делать в ней различные дополнительные комнаты, которые позволят отдыхать с большим удобством. Но они ошибаются, ведь в таких строениях можно поставить даже туалет, который буквально спасет людей в холодное время года – не слишком приятно куда-то выходить из теплого строения в зимнюю пору.


Именно поэтому некоторые позволяют себе добавлять к своему строению подобный штрих. Лучше всего строить бани рядом с какими-либо водоемами, но так как они имеются не на всех участках, можно сделать проект с бассейном. Окунаться в холодную воду после парилки — не только приятно, но еще и полезно. Это повышает иммунитет, и укрепляет организм. Вот несколько планов проектов, которые можно использовать.


Простой
Данная схема состоит всего из 3-х частей — это парная, душевая и комната для отдыха, которая включает в себя размещение предбанника. Здесь нет никаких дополнительных помещений и ничего лишнего, баня получится обычной, с просторными и удобными комнатами.
В душевой можно устанавливать как кабину, так и купель, которая является неплохой альтернативой бассейну и другим водоемам. Но в таком плане имеется один недостаток. Из-за отсутствия предбанника холод с улицы станет попадать в комнату, где люди отдыхают, поэтому подобная планировка является хорошим вариантом для тех, кто хочет посещать баню лишь летом или весной.


С террасой
В таких банях основные помещения имеют небольшую площадь, но их несомненным преимуществом является терраса. Данный план также подойдет лишь тем, кто посещает баню в теплое время года, но не исключены и другие варианты, ведь отдых на террасе зимой – тоже приятное времяпрепровождение.

С крыльцом
В таких банях также лишь 3 помещения, но парная, в отличие от предыдущего варианта, является более просторной. Душ же не слишком большой. Вместимость подобных строений высокая, поэтому они являются лучшим выбором для тех, кто хочет париться в большом кругу друзей. Недостаток построек — отсутствие изолированного тамбура, так как он объединяется с комнатой для отдыха.


Есть ли недостатки?
Фактически главный недостаток решения — это тот факт, что любой план бани с такой комнатой отдыха предусматривает на выделение для этой зоны определенного запаса квадратных метров. И если в вашем распоряжении просторный участок как минимум 5х5, то особых проблем с этим не возникнет. Но вот если нет?
Увы, в условиях маленьких банных помещений лучше всего воспользоваться вариантом, о котором мы писали выше: переоборудовать предбанник таким образом, чтобы в нем можно было одновременно разместиться 3-4 персонам. Конечно, полноценной комнатой отдыха это не станет, но отличным компромиссом, позволяющим решить максимум задач при минимуме имеющихся возможностей — вполне.
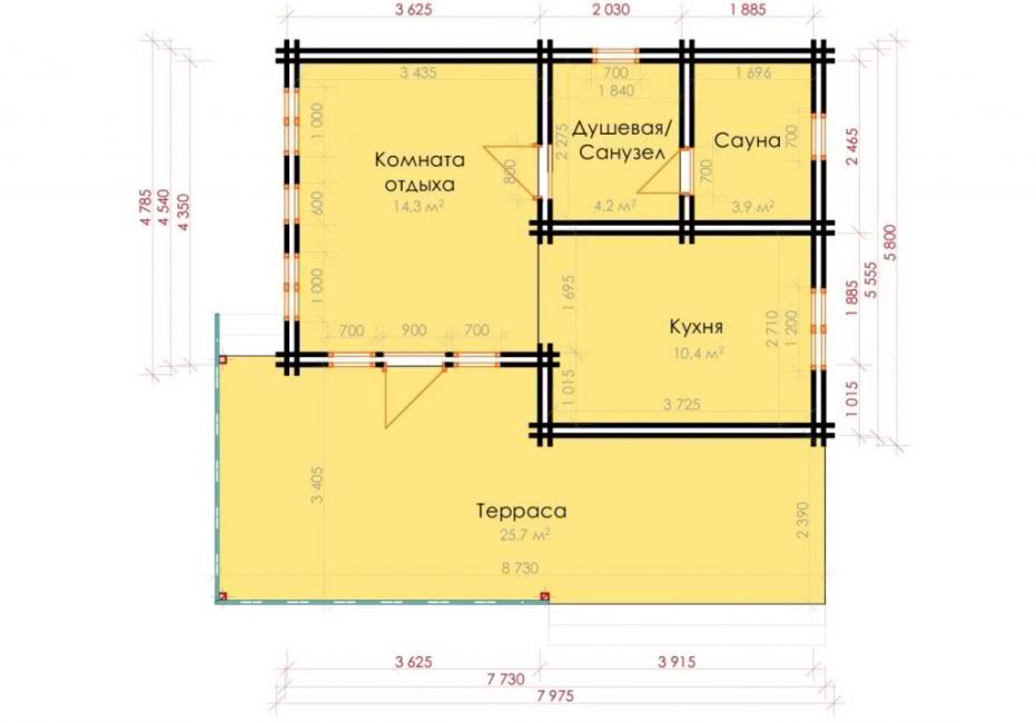
Баня с бассейном
Да, в классическом варианте бассейн в бане не предусмотрен, но ничто не мешает его построить, и приведенный ниже план проекта это наглядно доказывает. И это – не предел: в бане можно организовать и зимний сад, и комнату для тренировок, и даже спальню.
Проект одноэтажной бани размером 7 х 11 метров – это и вместительная комната для отдыха, и отдельное помещение парной, и душевая комната, и бассейн. Вход в бассейн – из коридора, и это более удобно, так как сначала может потребоваться раздеться, не посещая парилку. осуществляется через комнату отдыха. В данном проекте все помещения бани – раздельные, и проходным является только коридор. В этой многофункциональной бане предусмотрен даже санузел, несмотря на то, что всего один этаж довольно сильно ограничивает возможности архитектора по площади.

Планировка бани 7 х 11 с отдельным бассейном
5 на 5
Пожалуй, классический вариант бани, который очень часто используется по сей день. Отказываться от такого формата не имеет смысла:
- хороший запас полезной площади;
- оптимальное использование каждого сантиметра;
- удобное разделение функциональных зон.
Стандартная планировка такой бани 5 на 5 показана на следующем фото, отражающем все те зоны, что находятся внутри: вход — предбанник — комната отдыха — вход в парную — разделение на моечную. При желании оформляется мансарда, которую можно успешно использовать в качестве одноместной спальни. Хотя если с вами дети, то там могут спокойно разместиться и несколько ребятишек.






Какая планировка может быть в помещении бани
Каждый самостоятельно выбирает внутреннюю отделку, материал для возведения бани. Этого не скажешь о самом пространстве в помещении
Более идеального плана придумать невозможно, поэтому именно такой стандарт берут во внимание все, кто решил обустроить баньку на территории участка.Чертеж с размерами и планировка парилкиВарианты планировки парилки в бане
- При входе в парную располагается раздевалка. Это логично и правильно. Ведь вход в пространство парной в одежде и обуви это негигиенично и неправильно. Зайдя в помещение, сразу же следует облачиться в банную одежду или обернуться в простыню.
- Следующим помещением, которое должно быть в бане – это предбанник. Здесь, как правило, размещают столик для чаепития, могут устанавливать бильярд. В общем, на что хватит фантазии, то и воплощается. Оформление и интерьер предбанника в бане из дереваПример отделки предбанника
- Следующим после предбанника является вход в парную. Возле парной, конечно же, размещается моечная или бассейн, в которых можно освежиться после принятия банных процедур.
Конечно, планировка может быть другой. Но именно такой вариант чаще всего используется в силу своего комфорта. В видео рассказывается о правильной проектировке и планировке бани.
Варианты внутренней планировки бани 4х5 м: лучшие проекты
Порядок проектирования таких элементов как фундамент, материал возведения стен, характеристики кровли и т.п. определяется особенностями конкретной ситуации и остается преимущественно на усмотрение владельца. Вам же предлагается ознакомиться с наиболее популярными и удачными вариантами внутреннего планирования пространства бани 4х5 м с раздельными парилкой и помывочной.
Простейший проект бани 4х5 м
Так называемый «минимальный набор».
Простейший проект бани 4х5 м
Баня состоит из одного этажа и имеет размеры 4х5 м. Тамбура/предбанника нет, что делает использование такой бани возможным лишь в теплую погоду (причины описывались ранее). Вход в здание ведет в довольно просторную комнату отдыха размерами 2,85х4 м. Здесь предлагается установить стол и угловой диван либо лавки. При желании помещение можно доукомплектовать телевизором и сопутствующей техникой. Из комнаты отдыха можно попасть в помывочную размерами 1,8х2 м, укомплектованную душевой кабиной, унитазом и раковиной. Дверь из моечной ведет в парилку габаритами 2х2,1 м с печью, занимающей 1 м2.
Проект бани 4х5 м с террасой
Набор внутренних помещений остается аналогичным предыдущему варианту, зато появляется вполне просторная терраса. Предлагаемые размеры – 1,5х4 м. При желании террасу можно застеклить, обустроив веранду. Нередко на террасах/верандах организовывается дополнительная зона для отдыха или даже устанавливается печь-барбекю, если позволяет свободное пространство.
Проект бани 4х5 м с террасой
Вход из террасы ведет в комнату отдыха размерами 2х3,5 м. Рекомендации по комплектации данного помещения аналогичны предыдущему и всем последующим проектам. Внутренняя дверь из комнаты отдыха ведет в душевую (1,5х2 м), оттуда – в парилку (2х2 м). Таким образом, даже наличие террасы позволило грамотно вписать все необходимые помещения в доступное пространство.
Баня 4х5 м с предбанником
В этом проекте появляется небольшой предбанник размерами 1,1х1,7 м. Наличие данного помещения позволит комфортно эксплуатировать баню в холодную погоду. Здесь же предлагается хранить дрова.
Выход из предбанника ведет в небольшой коридор, а оттуда – в комнату отдыха. Последняя соединена дверью с помывочным отделением, а оно – с парилкой. Рекомендации в отношении габаритов и внутреннего обустройства каждого помещения приведены на схеме. Можете взять ее за основу, меняя необходимые параметры на свое усмотрение, либо же реализовать идентичный проект – готовая баня, несмотря на сравнительно скромные габариты, будет очень удобной.
Баня 4х5 м, дополненная тамбуром и санузлом
В этом проекте в дополнение к основным помещениям появились тамбур и санузел, отделенный от помывочной комнаты, что очень удобно.
Баня, дополненная тамбуром и санузлом
Дверь из тамбура ведет в комнату отдыха, откуда можно пройти в санузел или помывочную. Моечное помещение соединено дверью с парилкой. Проект является одним из наиболее удачных и популярных.
Баня 4х5 м с крыльцом и мансардным этажом
Наличие мансардного яруса позволяет использовать пространство строительной площадки с максимальной пользой и эффективностью.
Баня 4х5 м с крыльцом и мансардным этажом
Стилистика оформления в фотографиях
В фотогалерее ниже приведены примеры проектов бань в разных стилях.
Хай-тек
Современное направление в оформлении интерьеров и окружающего ландшафта. Такие бани не перегружены мебелью.
Отделка бани – из влагостойких материалов в контрастных цветах. Контроль за температурой воздуха, воды в бассейне, влажностью осуществляется с помощью датчиков. Регулировать их хозяева могут удаленно через программу.
На фото выше пример бассейна, установленного прямо на склоне. Перед отдыхающими открывается красивый вид с высоты.
Прованс
Стиль пришел из южной части Франции. Оформление делается под старину, поэтому мебель и декор специально состаривают.
Среди других характерных черт прованса:
- светлая палитра;
- грубая штукатурка, местами каменная отделка;
- деревянная состаренная мебель с коваными элементами;
- льняные полотенца, скатерти;
- кованые лампы, люстры;
- текстиль с мелким цветочным, растительным орнаментом;
- камин, отделанный камнем;
- цветы в горшках.
Шале
Для шале характерна отделка натуральными материалами. Преобладает камень. Им облицовывают стены, бассейн, пол, красиво обкладывают фасад. Элементы дерева также будут уместны.
Форма, украшения максимально простые без каких-либо узоров, резьбы.
Кантри
Деревенский стиль. Популярен в русских банях. Дерево преобладает в отделке и при выборе мебели.
В небольших по размеру баньках бассейн и уголок для отдыха обустраивают в одном помещении.
Мебель имеет натуральный древесный цвет. Зачастую это лавки со столом или небольшие стулья. Можно поставить пару кресел-качалок.
Стены украшают резными картинами. Пол делают влагостойким, выкладывают керамической плиткой.
Лофт
Из материалов преобладают:
- камень;
- металл, грубая ковка;
- дерево;
- плиты керамогранита.
Бассейн чаще всего прямоугольной формы, со спусковой металлической лестницей.
Модерн
Направление немного пересекается с хай-теком. В банном помещении с бассейном допускается отделка пластиком, композитными панелями, вагонкой. Пол настилают декингом, плиткой из керамики, которые имитируют дерево, камень.
Обстановка в стиле модерн простая, но практичная. Панорамное остекление открывает вид во двор, улучшает освещенность комнат.
Фахверк
На фото выше пример комнаты с бассейном, оформленной в стиле фахверк. В тон балкам подобраны стеклопакеты, стеновые колонны, кресла. Хороший контраст создают белые легкие шторы, напольное покрытие из светлой плитки.
Бассейн станет отличным дополнением русской бани, улучшит и разнообразит отдых
Важно правильно спланировать его размещение, габариты, форму, а также сразу решить, какой подойдет лучше: стационарный или переносной
Внутреннее обустройство
Логичным и правильным решением будет расположить на входе в парную мини-раздевалку, так как входить в общие помещения в обуви и одежде негигиенично и не совсем правильно. Учитывая то, что при входе в баню людям нужно облачаться в подходящую одежду или оборачиваться в простыню, следует предусмотрительно сделать отдельное место, где все это будет храниться. Это может быть полочка или же маленький шкафчик. Далее оформляем предбанник, там могут быть стол для чаепитий и небольшой бильярд. Возле парной помещается бассейн или мойка, которые позволят освежиться после процедур бани.


Моечная
Сюда можно поместить душ, бассейн и раковину для умывания. Данные атрибуты являются обязательными для того, кому важна гигиена. Главное — грамотно их расположить, чтобы ими было комфортно пользоваться, а также чтобы интерьер выглядел более эстетичным и приятным глазу.
Необходимо помнить о требованиях к покрытиям. Они должны быть выносливыми к воздействию влаги и высоким температурам.

Парная
Для комфортного в ней пребывания следует сделать ниши, на которых можно сидеть. Чаще всего их делают в виде ступенек. Таким образом можно создать интересный элемент декора и увеличить вместимость помещения. Даже если парилка будет маленькой, в ней сможет находиться много людей одновременно. В каком-либо дальнем углу устанавливаются источники подогрева (дрова, камни, смеси, позволяющие достигать в комнате нужную температуру). Уложить такие вещи необходимо на поверхность, устойчивую к жару. Этого требует техника безопасности. Ниши можно расположить над стенкой. В середине находится подставка из дерева, которая позволяет выходить из парной с удобством.


Как и где разместить банный комплекс?
Не стоит забывать о правилах размещения бани на участке:
- она не должна стоять ближе, чем в 6 метрах от хозяйственных построек;
- лучше не ставить сауну близко к забору;
- до источника воды от бани должно быть не менее 8 метров: до колодца или пруда;
- до туалета от сауны должно быть не менее 8 метров.
Учитывая все эти нормы, стоит заранее позаботиться о санитарном планировании участка с баней. Оптимальный вариант размещения сауны на участке – возвышенное место, где отвод воды будет самотеком проходить к септику.
Баню нередко устанавливают на склоне, а от посторонних глаз ее можно отгородить растительностью. Вход в баню делают с южной стороны – так она быстрее прогреется солнцем. Вход должен быть виден из окна дома – так можно проще контролировать процесс топки сауны.
Расходные материалы
Зачастую при изготовлении загородных бань используют просушенные хвойные деревья (у них отличные абсорбирующие свойства), хотя нередко применяются и лиственные. Для напольного покрытия и полок нежелательно использовать сосну, т. к. она выделяет смолу при высокой температуре.
Виды древесины для бани
Полки и пол нужно сделать без гвоздей, что позволит ежегодно снимать верхний слой древесины, подверженный агрессивному воздействию мыла и воды, посредством фугования. О том, что разогретые шапочки гвоздей могут стать причиной ожогов, пожалуй, итак все знают.
Отделка бани липойОтделка бани ольхой
Что учесть при создании проекта
На дачных и загородных участках востребованы конструкции площадью от 15 до 25 квадратов. В эту категорию попадают бани 4 на 5, 3 на 5 и 5 на 5 метров. Владельцам, желающим поставить подобную баню на своем участке, при планировке надо будет продумать следующие вопросы:
Проект должен соответствовать участку, особенно, если у того небольшие размеры. Место выбирают, руководствуясь в первую очередь санитарно-гигиеническими и пожарными строительными нормами, и лишь потом своими предпочтениями
Важно выдерживать минимальные расстояния между объектами.
Выбор места строительства. Он также зависит от особенностей окружающей местности
Если, например, участок граничит с водоемом, удобнее всего поставить баню на берегу.
Планировка должна учитывать среднее число посетителей. В этом отношении баня 5 на 5 имеет преимущества в создании комфортного пространства.
При выборе места учитывают расстояние до жильяИсточник conceptualhouseplans.com
- Бюджет строительства. От него зависит, какие материалы, в том числе и отделочные, вы приобретете, какого размера будет парилка.
- Кто будет строить. Приглашение профессионалов увеличит бюджет строительства, но положительно повлияет на скорость появления бани, а также избавит от возможных ошибок.
Кровля

На стоимость постройки влияет конструкция крыши. Оптимальный вариант по стоимости — односкатная, двускатная. Вальмовая кровля подойдёт для мансардных сооружений. Террасу укрывают одной крышей с баней, с единой стропильной системой.
Шаг между стропилами делают согласно расчетам проекта. Для примыкающей, выступающей террасы, возводимой позже, устанавливают отдельно стропила, обрешётку под кровельное покрытие. Участок под пристройку планируют, выгораживают заранее.
В качестве кровельного материала используют: рубероид, мягкую черепицу, ондулин, профлист. Все зависит от особенностей дизайна данного проекта.

Веранда пристроенная к дому – расширяем жизненное пространство: проекты, советы как создать своими руками (200 оригинальных фото идей)
Печки для бани с раздельной топкой, мойкой, парилкой
Выше мы уже пытались рассказать вкратце читателю о том, что увеличение размера бани с неизбежностью приводит к необходимости решения вопроса об отоплении помещений помимо парилки.

здесьименно парного помещения
Если вывести топку в комнату отдыха, где она будет выполнять функцию камина, часть тепла будет передаваться комнате отдыха. Будет ли этого достаточно — определяется только опытным путем, потому что имеет значение и конкретная температура за окном, и мощность печи, и кубатура комнаты отдыха.
А ведь у нас есть еще мыльная — как быть с ней? Можно вывести одну из сторон печки, но так обычно поступают с кирпичными печами, хотя можно поэкспериментировать с кирпичным обкладом металлической печки.

бак,радиатора.
Еще один вариант — обогреватели или теплый пол. Вы не так много времени проводите в бане, поэтому работа обогревателей не пробьет дыры в бюджете.
Можно еще вывести нагрев горячей воды в радиаторы, то есть создать автономную систему отопления в бане, но нужно помнить, что нагрев воды отбирает тепло у печки, поэтому ее мощность падает. А ведь есть еще лето, когда отопление не нужно.
Поэтому печка должна быть такая, чтобы вы могли регулировать ее мощность. Это реально для газовых печей, электрических, но с дровяными придется повозиться — в том числе и с кирпичными.
Если вы интересуетесь, какие есть печи для бани — русской или финской — полистайте наш раздел, посвященный печкам. Там много полезной информации и про печки для бани с раздельной топкой, мойкой, парилкой..
Особенности
Оптимальные размеры таких сооружений обычно бывают форматом 6х6 метров. На такой площади без труда можно разместить самое необходимое. Площадь бани 6х6 метров можно назвать идеальным форматом для бани. Подобные параметры позволяют устроить все необходимые помещения, поставить нужную мебель, а также отопительное оборудование. Такие размеры помещения обеспечивают полноценный отдых одновременно 8–10 людям.
Баня включает следующие помещения:
- парная;
- душевая комната;
- санузел;
- предбанник;
- комната отдыха.
Наиболее употребительный материал – это дерево, брус или бревна.


Это интересно: Дизайн беседки — идеи оформления
3х5
Так как народ интересуется именно для этих габаритов вариантами мойки и парилки отдельно и вместе, мы приведем оба варианта, а там уж вам решать, какой больше по душе, но все, что говорилось о возможностях воспроизведения кондиций русской бани в строении с площадью 3 на 3 метра — остается в силе и при увеличении до 5. Делайте печку в обкладе, пользуйтесь парогенераторами, если нет возможности сделать полноценную закрытую каменку.
Мойка и парилка отдельно
Сразу скажем, что этот вариант нельзя назвать единственно возможным. Более того, те, кто не склонен к приему гостей и возлияниям, проект бани с парилкой и мойкой таких габаритов может показаться неудачным. Но всегда можно оттолкнуться от имеющегося и перекроить все по-своему

Планировка (план) бани 3х5 мойка и парилка отдельно.
Здесь нет принципиальных отличий с предыдущей схемой, мы оставили все тот же расклад с метровой моечной, двухметровой парилкой, просто увеличили размеры комнаты отдыха. Конечно, на трех метрах можно разместить нормальный стол, посадить больше гостей, это тоже существенно.
Но и моечная могла бы быть местом отдыха, в котором можно перевести дух после парилки. Тогда можно было бы иначе распределить пространство: поделить эти пять метров между тремя помещениями, сделать парилку 2х3 м, моечную 2х3 или 1,5х3 м, предбанник 1х3 или 1,5х3 м. А если предбанник покажется слишком длинным, в конце сделать склад дров или кладовку.
Мойка и парилка вместе
Но ту же самую задачу можно решить иначе — сделав тот же проект бани с помывочной и парилкой вместе.

Планировка (план) бани 3х3 мойка и парилка вместе.
Выглядит на наш взгляд довольно привлекательно, хотя навязывать свою точку зрения мы не будем. Печь в данном случае по габаритам весьма условная, вы видите, что есть возможность сделать ее в обкладе — места достаточно. Полки можно сделать и пошире при желании. Мы исходили из стандартных 60 см, но они могут быть и метровой ширины.
Отвод воды
Водоотвод из бассейна возможен только в центральную канализацию. Септик или выгребная яма «не потянут» таких объемов, быстро переполнятся. Поэтому нужно предусмотреть способ удаления воды заранее, рассчитать диаметр сливной трубы и подсоединение к водоотводной сети. Благодаря системам фильтрации, менять воду можно не чаще 1-2 раз в год. Жидкость используют для полива растений на участке, если в ней не содержатся химические вещества.
Осушение воздуха
Плавающее покрытие для бассейнаИсточник atika-spb.ru
Для поддержания влажности воздуха в пределах 50-60% применяют меры:
- Плавающее покрытие, снижающее испарение в 1,5 раза. Используют плотную полиэтиленовую пленку, которую выкраивают по размерам бассейна. Это недорогой и простой способ не только уменьшить влажность в помещении, но и сохранить температуру воды.
- Кондиционер — не самый удачный вариант, так как вместе с влажностью падает температура воздуха. Бытовой прибор нельзя использовать круглосуточно, а также зимой. Из-за содержащихся в испарениях химреактивов для очистки воды оборудование быстро выходит из строя.
- Принудительная вентиляция — энергетически затратный метод, неэффективный зимой и в дождливую погоду.
- Осушители конденсируют и удаляют излишнюю влагу из воздуха, одновременно обогревая его. При полноценной вентиляции можно использовать бюджетные варианты, работающие только в режиме осушения.
Как самому построить баню на даче.
Иногда так хочется покинуть суету и шум города, и уехать на дачу. Тишина, прогулки, занятие любимыми делами — что может быть лучше! Если на даче обеспечен комфорт, хочется приезжать ещё и ещё. Одним из комфортных условий проживания на даче является баня.
Строительство можно, конечно, поручить профессиональным строителям. Однако, построить и благоустроить баню на дачном участке вполне по силам самостоятельно. Это избавляет от дополнительных трат и позволяет произвести отделку и благоустройство в полном соответствии со своими желаниями и предпочтениями. Поэтому эта задача непростая, но вполне по силам начинающему строителю. Построенная собственноручно баня будет радовать владельцев ещё больше. Итак, как же самому построить баню?
Во-первых, как и при любом строительстве, сначала необходимо определиться с проектом и с материалами, из которых баня будет строиться. Выбор основного материала для строительства зависит от географического положения и условий эксплуатации, а также от собственных возможностей.
Бани бывают из кирпича, газобетона и других каменных материалов, некоторые отдают предпочтения каркасным баням, однако, многие начинающие строители предпочитают строить баню из дерева. Этот лёгкий и долговечный материал не требует обустройства серьёзного и дорогого фундамента, однако обладает прекрасными характеристиками. В случае надлежащего ухода, эксплуатация бани не будет доставлять особых хлопот.
И конечно, предпочтение стоит отдать брусу — баня из этого материала сохранит все преимущества деревянной конструкции и избавит от проблем и дополнительных затрат, которые могут возникнуть при строительстве стен из бревен. Возведение стен из бруса похоже на работу с конструктором — он может иметь разные геометрические размеры и сечение (прямоугольник, квадрат, полукруглый), а также, в случае профилированного бруса, присутствуют пазы для крепления. Строить из бруса легко и удобно — что может быть лучше для начинающего строителя!
Планировка небольшой бани
Традиционный план устройства бани включает четыре основных помещения: предбанник, комнату отдыха, комнату для мытья и парную. Более простая конфигурация может включать лишь две комнаты: предбанник (одновременно выполняет функцию комнаты отдыха) и моечный отсек совмещенный с парилкой. Однако лучше экономить не на планировке, а именно на площадях, делая все помещения компактными, но все-таки автономными.

При проектировании бани важно придерживаться рекомендуемого соотношения площадей основных помещений (парилки, моечного отсека, предбанника) – 1 : 1,5 : 2. Допускаются незначительные отклонения от пропорции, но более кардинальные и не рациональные планировки могут привести к избыточным потерям тепла или к снижению комфорта
Конструкция полков в парилке
Полки — самая важная конструкция в парилке.В данном пункте более детально рассмотрим их устройство, конструкции и размеры.
Для изготовления полков лучше использовать сосну, липу, сухую осину. Доски шириной 8–12 см и толщиной 4–6 см обязательно должны быть выструганы и отшлифованы. Также их концы обязательно нужно закруглить (сделать фаску).
Алгоритм установки полков следующий:
- Снизу каркаса привинчиваются доски (либо прибиваются гвоздями сверху).
- Шляпки гвоздей (шурупов) обязательно утапливаются в древесину.
- При укладке досок между ними обязательно оставляются зазоры, равные 1–1,5 см.
- Рекомендуемая щель между стеной и полком – 1 см.
Рекомендуемые размеры полков:
- Длина от 180 см.
- Ширина от 40 до 80 см.
- Расстояние между полками по высоте – от 35 до 50 см.
- Расстояние от верхнего полка до потолка – от 110 см.

Некоторые мастера рекомендуют делать полки откидными либо съемными. Считается, что так будет намного легче следить за гигиеничностью парилки в процессе уборки. Но есть и другое мнение, основанное на принципе рационального использования тепла от каменки. Так как в процессе поддачи пара пустоты под полками не используются, а лишь увеличивают объем свободного воздуха, то лучше их изолировать, и тем самым сделать более массивную конструкцию полков. Какую же реализацию использовать — решать вам.
Конструкция полка в парилке:
![]() |
||
| а – лежак. | 1 – стойка. | 4 – рама, к которой прибивают доски. |
| б – скамья. | 2 – опорный брус. | 5 – опора. |
| в – полок. | 3 – узкие доски. | 6 – гидроизоляция. |
Внешний вид полков и их форма могут быть разными:
- Традиционное для русской парилки их устройство – в виде ступеней, причем верхняя значительно шире всех остальных. Она является своего рода лежанкой, на ней можно и сидеть, и лежать.
- В некоторых парных на полки нужно подниматься по специальной деревянной лестнице.
- Также есть вариант комбинации полков из трех секций, две из которых вмонтированы в стену, а третья расположена на полу. Между нижним и средним полками установлены перила, оснащенные подставками под ноги. При этом расстояние между потолком и верхним полком должно быть не менее 110 см, иначе человеку будет неудобно сидеть. Если сделать расстояние еще большим, вы не сможете воспользоваться прелестями самого горячего воздуха, скапливающегося под потолком. Нижний полок должен находиться на одном уровне с дверцей печи-каменки либо чуть выше ее.
Подведем итог. Соблюдение основных правил при обустройстве и планировке бани позволит вам добиться оптимального варианта. Вы получите баню, в которой будет комфортно находиться, и банные процедуры будут приятными и безопасными.
Стены
Стены бани, как упоминалось выше, строят из дерева, кирпича, бетона, сип-панелей или керамзита. Для стен бани из древесины используют обычно брус размерами 95х145, 145х145, 150х150 см или бревна 200-220 мм. Что же касается отделки стен внутри, то чаще для этого используют разные породы дерева (для парилки), керамическую плитку (для санузла и помывочной)
Важно учитывать свойства материала при нагревании. Дерево подвержено гниению, поэтому деревянные стены обязательно обрабатывают антисептическим раствором
Хвойные породы дерева сильно пахнут смолой, поэтому не рекомендуются для парилки.

Для отделки стен можно использовать и несколько сортов древесины, например, сочетая темные и светлы тона. Липа, осина имеют приятный оттенок и комфортны для кожи, поэтому часто именно эти породы дерева используют для стен парилки. В комнате для отдыха наиболее удачно использовать ароматные кедровые или можжевеловые доски. Традиционно для финской сауны использование ели и сосны для стен. Как правило, для внутренней отделки стен применяют термовагонку, предназначенную именно для стен бани (на ней не образуется трещин, плесени, грибка, она не гниет и не пересыхает).


Заключение
Баня, как средство восстановления здоровья, релаксации и подъема настроения никогда не потеряет своей актуальности. Она существенно повышает комфорт загородной жизни, поэтому ее возведение заслуживает внимательного отношения. Баня 6х3, построенная непрофессиональной бригадой, возможно, обойдется дешевле, но экономия себя не оправдает, если во время эксплуатации проявятся трудно исправимые дефекты. Обращение в строительную компанию станет выгодным с точки зрения экономии бюджета и получаемого комфорта; грамотно возведенная постройка будет теплой, красивой и долговечной.
Баня с террасой, барбекю, советы специалистов, заключение

Чертёж бани 65 м. кв
Баня с террасой, барбекю — прекрасный оздоровительный комплекс на своём участке. Любимое место отдыха, где можно попариться, потом подышать свежим воздухом, устроить посиделки с друзьями, особенно после трудовой недели, работы в саду, огороде.
Прежде чем приступать к разработке проекта бани с террасой, определяют место для постройки, в соответствии с размерами участка. Возможно, при строительстве дома уже был отведён участок «под баньку». Исходя из размеров отведённой площади, выбирают архитектурный проект.
Если вы хотите более просторное и функциональное помещения с гостевой комнатой, присмотритесь к дизайн-проектам бани с террасой и мансардным этажом. Продумайте детали расположения комнат, обустройства. Нарисуйте схематично план будущего строения. За основу берут типовые проекты с баней, террасой, барбекю.
Строительные компании предлагают индивидуальный проект бани с террасой разной площади. Помогут возвести, обустроить баню с террасой.

Оздоровительный банный комплекс в усадьбе
Оцените возможности. Строительство можно проводить поэтапно. К примеру, осенью заложить фундамент, чтобы он отстоялся. Проложить основные коммуникации. Весной, летом возвести стены, крышу. А на следующий год перейти к отделке. Террасу пристроить позже. Хорошо, когда рядом с баней ещё можно установить бассейн, искусственный пруд. Хорошо, когда дом расположен на берегу природного водоёма.
Желательно, чтобы баня из бруса, бревён простояла сезон, чтобы фундамент, стены дали усадку.
Постройка бани с террасой на приусадебном участке — заключительный аккорд благоустройства территории. Посещение бани с хорошей парилкой, просторной террасой для отдыха восстановит здоровье. Это место, где можно провести хорошо время в кругу семьи, друзей.
БАНЯ С ВЕРАНДОЙ НАВЕСОМ ТЕРРАСОЙ ЧТО ВЫБРАТЬ
Лучшие проекты бани с террасой, комнатой отдыха и зоной барбекю | (40+ Фото & Видео)

Как сделать патио на даче своими руками: разнообразные варианты оформления, отделки и обустройства (85+ Фото Идей & Видео)






