Оглавление
Керамогранит на пол гаража
Чтобы определиться, делать или нет пол в гараже из керамогранита, нужно знать не только достоинства такого покрытия, но и недостатки.
Из положительных характеристик следует отметить:
- прочность – один квадратный сантиметр покрытия способен выдержать 200-килограммовую нагрузку;
- стойкость к ударам;
- влагостойкость;
- при соответствующем уходе плитка способна прослужить десятки лет;
- обладание противоскользящими свойствами;
- низкий показатель температурного расширения;
- легкий уход;
- устойчивость к химическим реагентам.

Недостатки, которыми характеризуется керамогранит для гаража на пол:
высокая стоимость;
чтобы уложить его самостоятельно, необходимо обладать соответствующими навыками;
монтаж данного покрытия – занятие долгое и хлопотное;
хрупкость – материал нужно осторожно транспортировать.
Пошаговое руководство по закладке фундамента для пристройки
Рассмотрим на примере столбчатую основу дополнительного строения:
- Подготовка и очистка территории с последующим выравниванием.
- Разметка делается согласно расчётам и плану.
- Готовятся скважины, глубина которых ниже порога замерзания почвы.
- На дно отверстия укладывается песок, заливается водой и утрамбовывается, получается подушка.
- Установка арматуры или стекловолокна для прочности основания на 20 см выше уровня почвы.
- Конструируется опалубка надземной части.
- Заливка бетонным раствором. Климатические условия, особенности грунта данного региона влияют на его состав и должно быть заложено в проекте.
- Гидроизоляция делается в четыре слоя поочерёдно: битум, рубероид и т. д. аналогично.
Готовую базу следует увлажнять водой или посыпать опилками мокрыми. Процесс увлажнения начинается через 8-10 часов после заливки. Эта процедура поможет высохнуть основанию равномерно без трещин, и продолжать её следует в течение 3-х дней.
Пристройка к дому из каркаса
Если требуется построить дополнительное помещение к деревянному дому за максимально короткий срок времени, лучше всего сделать пристройку в виде каркасно-щитовой конструкции. На первый взгляд, каркасная схема выглядит очень сложно: множество деревянных стоек и перемычек, обшитых плитами ОСБ, фанерой и шпунтованной доской. На самом деле сделать каркас пристройки к деревянному дому не представляет особого труда даже для начинающего плотника.
У каркасной схемы есть свои преимущества:
- Небольшой вес пристройки дает возможность сделать простой и недорогой свайный фундамент вместо традиционного ленточного. Время, необходимое для того, чтобы построить дополнительное помещение, сокращается с двух-трех недель до нескольких дней;
- Стоимость возведения каркасной пристройки составляет примерно половину от расходов на аналогичную конструкцию из бруса или газобетона;
- Каркасная пристройка при небольшом весе обладает высокой жесткостью за счет использования большого числа подкосов и распорок;
- Благодаря применению ажурной силовой схемы каркаса пристроенное помещение может быть достаточно большим, даже в два этажа;
- Даже если деревянный дом оборудован сложной ломаной крышей, построить для пристройки полноценную крышу и соединить ее со стропильной системой здания намного проще, чем в случае, если пристроенная коробка сложена из кирпича или пеноблока.
В виде каркасной пристройки можно сделать утепленную веранду, баню и даже комнату отдыха. Если деревянный дом поставлен на бетонный ленточный фундамент, в пристроенном помещении можно сделать огромные оконные проемы, превратить ее в студию или столовую комнату.
Каркасная схема пристройки идеально подходит для строительства мансардного помещения на втором этаже деревянного дома. Даже если здание построено из бревна, современные утеплительные материалы обеспечивают комфортные условия для проживания в зимнее время.
В идеальном случае каркасную пристройку нужно строить на ленточном бетонном фундаменте. Возможно, это не самый дешевый способ построить дополнительное помещение, но использование МЗЛФ дает несколько ощутимых преимуществ:
- Во-первых, бетонная лента существенно усиливает жесткость каркасной пристройки. Исключением могут быть варианты, когда деревянный дом по ряду причин пришлось сделать на свайном фундаменте;
- Во-вторых, жесткое основание исключит проявление таких неприятных явлений, как перекос стен или осадка дверных и оконных проемов, даже если окна в пристройке сделать на полстены.
Если правильно привязать бетонную ленту под пристройкой к основанию деревянного дома, то независимо от протекания усадочных процессов, между стенами дома и пристроенного помещения никогда не образуется щелей или зазоров, характерных для тяжелых конструкций из кирпича и камня.
Но есть одно ограничение, специалисты не рекомендуют строить каркасные помещения на бетонных ленточных фундаментах в условиях сильно обводненных грунтов. Помимо сил морозного пучения, деформирующих основание пристроенного помещения, деревянная каркасная пристройка даже при использовании гидроизоляции оказывается достаточно чувствительной к грунтовой влаге.
Одним из примеров решения подобной проблемы в строительстве каркасных пристроек является совместное строительство пристройки и открытой террасы на фундаменте ростверкового или свайного типа.
Огромная щитовая терраса из лиственницы или полимерной доски устанавливается на фундаменте из винтовых свай, фото. Прочности и жесткости свайного фундаментного поля достаточно для того, чтобы построить на террасе огромную каркасную конструкцию с просто огромными окнами. Деревянные стены дома и пристроенного помещения закрывают вентилируемым сайдингом с отделкой под натуральный камень.
Строительство каркасной пристройки к дому
Любое строительство требует тщательного планирования. Пристройка к кирпичному дому – тяжелая работа, которая не обходится без опыта и сноровки. То же можно сказать и о реализации определенного проекта для деревянных конструкций
Неважно, какой вид был выбран, принцип построения один. Весь цикл возведения сооружения можно разделить на несколько этапов:
- Обустройство фундамента.
- Возведение стен.
- Монтаж чернового пола.
- Монтаж кровли и потолочного перекрытия.
Обустройство фундамента
Основа любого здания – фундамент, а значит, он должен быть из качественных материалов. В случае использования непригодного сырья с низкими эксплуатационными показателями пристройка к дому из каркаса будет испорчена. Если фундамент начнет разрушаться, то, возможно, придется разбирать стены и крышу, что грозит серьезными денежными затратами. Кроме приобретения качественных материалов, необходимо в точности соблюдать технологический процесс.
Фундамент для пристройкиИсточник nl.decorexpro.com
Любая закладка новой основы к старому фундаменту требует точных расчетов. В идеальном варианте – заложить основание сразу для двух сооружений, но такое происходит очень редко. Для стыковки используют специальную арматуру, которая позволяет зацепиться за основу дома
При заливке важно знать и учитывать два фактора:
- Идентичность состава.
- Равномерная глубина.
Бетон должен полностью повторять состав и структуру. Так будет обеспечена равномерная структура и более прочное соединение. Равномерная глубина, позволяет проседать фундаменту на одном уровне. Если этого не учесть, по фундаменту пойдут трещины, и структура дома будет сильно повреждена.
Возведение стен
После того как будет сформирован фундамент, нужно приступать к следующему этапу – постройке стен. Существует негласное правило – использовать идентичный с основным зданием материал. Так, если выполняется пристройка к щитовому дому – нужно использовать стены из щитов, если дом кирпичный – использовать кирпичи и т. д. Но что делать, если нет похожего материала? Можно использовать дополнительный слой одинаковой облицовки. Полностью отделывать дом – затратное дело, но проблема унификации будет решена.
Важно помнить, что если нужна пристройка к старому деревянному дому, проекты придется выбирать в общей стилистике. Необходимо использовать материал, из которого выполнен дом. Чем ближе схожесть, тем органичней будет выглядеть постройка
Чем ближе схожесть, тем органичней будет выглядеть постройка.
Укладка стенИсточник remontik.org
В момент планировки нужно понять, будет ли у пристройки своя четвертая стена? Если в проекте она есть, то какой зазор между двумя зданиями? Если дополнительная комната хорошо отапливается и в ней планируется проживание круглый год, то дополнительная перегородка бессмысленна. В плохо отапливаемой комнате воздушная подушка будет защищать дом от холода.
Монтаж чернового пола
Ровный пол – основа комфортной жизни
Для того чтобы не мучится впоследствии, важно сделать гладкую и ровную черновую основу для напольного покрытия. Выполняя заливку и стяжку, важно применять современное оборудование, такое как лазерный уровень. Важно знать, что без должного опыта в строительстве и дорогого оборудования невозможно сделать идеальную работу
«Кривой» черновой пол даст осложнение при постройке теплого пола. Если стелить паркет на некачественное покрытие, то скрип и проседание – гарантированный результат
Важно знать, что без должного опыта в строительстве и дорогого оборудования невозможно сделать идеальную работу. «Кривой» черновой пол даст осложнение при постройке теплого пола
Если стелить паркет на некачественное покрытие, то скрип и проседание – гарантированный результат.
Монтаж чернового полаИсточник master-walls.ru
Монтаж кровли и потолочного перекрытия
Как и в случае со стенами, кровля крыши должна быть продолжением основного дома
Должное внимание следует уделить балкам и перекрытиям. Они должны соответствовать всем современным стандартам и нормам пожарной безопасности. Если выбранный проект не подразумевает постоянное проживание, то можно обойтись без утеплителя
То же касается и потолочного перекрытия. Например, в веранде или крыльце можно обойтись без потолка. Все зависит от плана пристройки и проекта основного здания
Если выбранный проект не подразумевает постоянное проживание, то можно обойтись без утеплителя. То же касается и потолочного перекрытия. Например, в веранде или крыльце можно обойтись без потолка. Все зависит от плана пристройки и проекта основного здания.
Основные этапы возведения постройки
Прежде чем приступать к сооружению пристройки к деревянному дому своими руками, стоит детально изучить готовые проекты с фото и составить план работ. Что он должен включать:
- месторасположение пристройки;
- тип и дизайн пристройки;
- вид фундамента (исходя из предыдущего пункта);
- перечень необходимых строительных и отделочных материалов;
- подведение коммуникаций (минимум, электричества);
- расчёт бюджета (который включает помимо стоимости материалов также транспортные расходы и оплату труда наёмных работников).
При составлении проекта будущей постройки обязательно нужно указывать такие аспекты: состав почвы, уровень промерзания и влагопоглощения, состояние стен и фундамента основного здания.
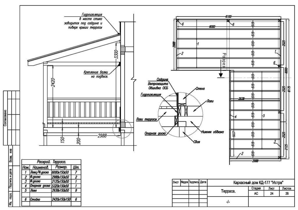
Далее рассмотрим схематически процесс возведения постройки на примере открытой террасы.
Закладка фундамента
Для веранд чаще всего используется столбчатый тип фундамента, а если постройка довольно большая, столбы нужно закладывать через каждые 60 см по периметру.
Ход работ:
- Выкапываются ямы на глубину 100 см. Глубина ям должны превышать глубину промерзания грунта.
- На дно укладывается подушка из слоёв песка и щебня.
- Ямы заливаются бетонным раствором.
- Так как веранда возводится для деревянного дома, из брусьев возводим опорные столбики.

Фундамент веранды с готовой нижней обвязкой.
Возведение каркаса
После укладки фундамента можно приступать к каркасу постройки:
- Сначала монтируется нижняя обвязка, углы которой скрепляются соединением типа “ласточкин хвост”. Для скрепления всей конструкции используются нагели или гвозди. Нижнюю обвязку также можно сделать двойной и на неё уже ставить стойки будущей веранды.
- Монтируются опорные балки. У стены веранды, примыкающей к основному помещению, стойки должны быть выше для сооружения односкатной крыши.
Учитывайте, что угол крыши в 45-60° увеличивает почти в два раза расход кровельного материала. При таком угле выражено сопротивление покрытия ветру, но, с другой стороны, крыша хорошо очищается от осадков.
Если веранда должна быть закрытой, поперечные балки будут определять высоту окон. Монтаж каркаса завершается установкой верхней обвязки.

Каркас деревянной веранды.
Крыша и напольное покрытие
Для веранд, пристроенных к дому, чаще всего используются односкатные крыши. Если же пристройка находится у торца здания, целесообразно использовать двускатную крышу. К верхней обвязке крепятся стропила и обрешётка, на которые затем укладывается кровельный материал.
Виды кровли для крыши:
- Черепица. Традиционный материал для крыш. Долговечный, прочный, износоустойчивый и экологичный. Может быть цементно-песчаная, полимерно-песчаная и мягкая.
Веранда из деревянного бруса, покрытая черепицей.
Металлочерепица. С добавлением алюминия или стали. Долговечный, удобный в работе, износоустойчивый материал, но в отличие от предыдущего отличается плохим шумопоглощением. Рулонные материалы (рубероид). Полимеры (к примеру, поликарбонат). Асбестоцементный шифер.

Практичная крыша из асбестоцементного шифера.
Для обустройства пола на нижнюю обвязку устанавливаются лаги с расстоянием не более 1 м, на которые кладётся доска. Для скрепления используются саморезы. Доску обязательно нужно пропитывать специальным раствором для предотвращения грибковых поражений.
В финале постройку нужно обставить мебелью, декором, цветами на ваш вкус.

После расстановки мебели и декора веранда выглядит очень симпатично и уютно.
Как видите, соорудить красивую, современную пристройку к деревянному дому своими руками на деле не так уж сложно, ориентируясь на готовые проекты и фото. Если у вас есть определённые знания и навыки, вы сможете сделать это своими силами и нанять профессионалов своего дела. Но в любом случае, пристройка — это отличная возможность расширить пространство, преобразить дом и сделать его ещё более уютным!
О том, как соорудить пристройку, вы можете посмотреть на видео:
Что необходимо для строительства пристроя с бруса своими руками
Как и любое строение, пристройка должна начинаться с выбора оптимального проекта и проведения расчетов
При этом особое внимание уделяется стыковке бруса с основным зданием, чтобы избежать возникновения щелей. Также не стоит забывать о получении необходимых разрешений от архитектурного комитета и сбора всей необходимой документации
Что касается создания проекта, то его можно выполнить самостоятельно, если Вы имеете соответствующие навыки. В противном случае придется обратиться за помощью к профессиональным архитекторам, которые смогут реализовать Ваши идеи на бумаге.
Создание плана будущей пристройки
Если Вы являетесь счастливым обладателем участка с большой площадью, то особых проблем с постройкой не возникнет. Чтобы сделать все верно и не сделать ошибок в отношении размеров комнат, необходимо составить подробный план. При этом стоит учитывать следующие рекомендации:
- Первым делом необходимо определиться с основным назначением пристроя, поскольку его не всегда используют в качестве жилого помещения. Подобные пристройки можно использовать в качестве гаража, мастерской или веранды. От этого будет зависеть размер объекта, количество и качество строительных материалов, тип оконных конструкций и многое другое.
- Также в процессе создания проекта стоит продумать о необходимости подвода коммуникационных систем, таких как канализация или водопровод.
- Не стоит забывать и о выборе основного материала. Бревна имеют значительные различия по своему качеству, характеристикам и цене.
- Все это позволит Вам получить относительно точную смету на все строительные работы.
Пристрой из бруса наиболее актуально возводить для деревянных домов. При этом необходимо обустроить отдельный фундамент для пристройки, который будет связан с монолитом основного здания.
Шаг 4: Строительство стен
Размещение газосиликатных блоков начинается от углов пристройки:
- Увлажняется низ пеноблоков для лучшего сцепления с соединяющим раствором;
- Первые 2–3 ряда дополнительно защищаются водонепроницаемым составом для защиты от капиллярной влаги;
- Перед нанесением следующего слоя раствора верх пеноблоков увлажняется;
- Первый ряд укладывается с использованием уровня, если будут небольшие неровности — пострадает качество кладки;
- Наружную кладку принято выполнять с использованием клеевого раствора — слои между блоками получаются меньше 2–3 мм, благодаря чему уменьшается общая площадь «мостиков холода» и снижается вес пристройки. Внутренние перегородки можно делать с использованием бетонного раствора для экономии средств;
- Приготовление смеси расписано на упаковках клея, она наносится на смоченное в воде горизонтальное основание блока, а после — на вертикальное;
- Горизонтальная поверхность кладки выравнивается с помощью шлифования тёркой. Пыль сметается или убирается строительным пылесосом.
Каждые 4 ряда кладки в углах укладывается арматура для связки постройки и предотвращения трещин. С использованием циркулярной пилы делается квадрат со сторонами 3 см и глубиной 5 см. Паз для укладки арматуры выбивается молотком и зубилом. Пространство вокруг арматуры заделывается клеевым раствором.
Как возвести стены для пристройки?
В некоторых случаях достаточно и двух стен, но все зависит от архитектуры дома. Если он деревянный, то соединить его с пристройкой из бруса будет просто. Для крепления при этом можно применять:
- скобы и пластины из металла;
- гвозди;
- саморезы;
- кронштейны и прочее.
Если пристройка будет выполняться из бруса и вы планируете использовать ее для проживания в течение всего года, то для ее строительства лучше брать материалы размером как минимум 200 на 200 мм.
Свежие записи Бензопила или электропила — что выбрать для сада?4 ошибки при выращивании томатов в горшках, которые совершают почти все хозяйкиСекреты выращивания рассады от японцев, которые очень трепетно относятся к земле
Стоит помнить, что брус – это достаточно тяжелый материал, который непременно со временем усядет. Именно по этой причине лучше соединять новую пристройку с домом посредством металлических скоб. А более добротную фиксацию лучше выполнять уже после того, как произошла усадка.
Процесс усадки занимает около года или даже больше. Время усадки зависит от следующих факторов:
- площади пристройки;
- качества строительных материалов;
- состояния основного дома.
Не торопитесь с работами – это самое главное в данном случае.
Итак, когда вы дождались усадки, нужно удалить установленные ранее скобы и закрепить их на новом месте. На время ожидания усадки помещение может быть утеплено с помощью любого утеплителя, который максимально вам подходит, например:
- войлока;
- минеральной ваты или другого материала.
А чтобы улучшить качество теплоизоляции помещения и придать стыкам привлекательный внешний вид, можно взять специальный деревянный нащельник. Если при усадке он слегка перекосится, то его нужно демонтировать и закрепить по-новому.
Вверху стен пристройки и старого здания, если вы планируете сооружение мансарды или устройство кровли, нужно сделать обвязку из брусов, причем тут подойдут материалы более мелкие, размером 150 на 150 мм. Делаем по периметру так называемый пояс, желательно при этом использовать брус, на котором не будет стыков. Однако все зависит от размера помещения. Если будет нужно, то закажите у производителя заранее брус нужного размера, хотя стоить он будет гораздо дороже материалов стандартных размеров от 2 до 6 метров.
Плюсы и минусы
К плюсам можно отнести:
- экологичность материала;
- эстетичный внешний вид;
- легкость конструкции (при небольшой толщине бревен);
- хорошую теплоизоляцию (для пристройки из толстых бревен);
- утепление одной из стен дома;
- большой функционал.
К недостаткам можно отнести то, что:
- крепление бревен к стенам дома может быть весьма проблематичным;
- выравнивание стен из-за сужения деревьев к верхней части;
- подбор качественного материала может занять время, так как правильная толщина бревен и их внешнее состояние сильно влияют на долговечность конструкции;
- длительность усадки пристройки может составлять 1 год и более.
Популярные каркасные стены
Большую популярность среди владельцев домов приобретает постройка каркасных стен, при помощи новейших технологий можно возводить надежные и крепкие помещения. В таких домах возможно как сезонное, так и постоянное проживание, и неплохое и комфортное обитание в зимний период времени. Каркасные дома для постоянного и зимнего проживания строят по нескольким технологиям.
К таким технологиям относятся финская, канадская и американская, обеспечивающие достаточно удобное проживание даже в крепкие морозы. Применяемые в их конструкциях прослойка из теплоизоляции и пароизоляции дают возможность хорошо держать тепло зимой, а также обеспечивать прохладу в летнее время.
Нужно знать, что в пристройки к брусчатым домам делают обычно из брусьев не меньше 200х200 мм, это очень тяжелый пиломатериал дающий усадку. Из-за этого в местах соединения новых и старых стен крепление производят скобой и не укрепляют до окончания усадки.
Время усадки может продолжаться до одного года, а в некоторых случаях и дольше. Все зависит от нескольких условий — это степень влажности пиломатериалов, размеры пристройки и сроки усадки старого здания.
Наберитесь терпения и не торопитесь, по окончании срока усадки между старым домом и построенной пристройкой, возможно вертикальное смещение. По прохождению необходимого времени для усадки нужно выдернуть перекошенные скобы и прибить их по новой без смещения, достаточно будет одноразового перемещения скоб.
Чтобы во время ожидания усадки не было сквозняков и ветра, уплотните вертикальные щели утеплителем, например — пакля, войлок, изовер или минеральная вата. Для увеличения эффекта уплотнения и более эстетического вида прикройте щели нащельником из древесины, в случае его смещения, снимите и прибейте снова.
В верхней части только построенных новых и старых стен нужно сделать обвязку из бруса сечением 150х150 мм, по которому будет возводиться крыша или мансарда. Венец прибивается по всему периметру новостройки хорошо, если обвязку можно сделать без стыков, но это зависит от размеров пристройки.
На рынке строительных материалов в основном реализуются 6-метровые брусья, а по заказу большей длины до 12 метров обойдется очень дорого.
Материалы
Пристройка к деревянному дому может быть возведена из разных материалов. Исходя из этого параметра, можно говорить об эксплуатационных характеристиках постройки, ее надежности и сложности возведения. Рассмотрим подробно, чем характеризуются сооружения из разных строительных материалов.

Пеноблоки
Многие домовладельцы делают выбор в пользу пеноблоков. Работать с этим материалом довольно просто, да и стоит он не слишком дорого. Стеновые блоки имеют небольшой вес. Из них можно строить конструкции самых разных форм и размеров.
Таким образом, получается соорудить качественную пристройку, достаточно устойчивую и без лишних внутренних перемычек. За счет подобных действий деревянный дом как бы увеличится в длину.

Брус
С точки зрения технологии возведение такого сооружения оказывается более сложным и долгим. Сделать дополнительное помещение из кирпича или газоблоков/пеноблоков в разы проще и легче. То же можно сказать и о постройках из бревна. Для их возведения хозяевам придется потратить много времени и сил.

Пристройка из бруса будет нуждаться в очень крепком и качественном фундаменте. Специалисты настоятельно рекомендуют для брусовой пристройки делать такую же фундаментную основу, что и для самого деревянного дома.
Также нужно будет учитывать и усадку деревянных стен. Постройка обязательно даст усадку, даже если сделана из самых качественных материалов и выполнена по всем правилам. Займет этот процесс минимум год. Хозяевам нужно будет держать под контролем состояние компенсационных зазоров на стенах и в стропильной системе крыши.

Кирпич
Часто для возведения пристройки домовладельцы используют кирпич. Строение получается крепким и долговечным, но на его сооружение уходит больше времени. В итоге получается капитальная постройка. Ее нежелательно располагать на переднем плане, потому что кирпичные строения плохо сочетаются с деревянными. Это касается не только кирпичных, но и каменных пристроек, которые также возводятся очень долго, кроме того это влечет за собой и большие финансовые затраты.

Газосиликатные блоки
Неплохие сооружения получаются из газосиликатных блоков. Материал привлекает покупателей своей негорючестью, а также экологической безопасностью. Правда, в условиях постоянных скачков температур и при длительных негативных внешних воздействиях строения из газоблока быстрее изнашиваются, становятся более хрупкими. Кроме того, рассматриваемые блоки не могут похвастаться достаточной гидрофобностью.

Арболит
Это специальный древоблок, представляющий собой одну из легких разновидностей бетона с органическим наполнением. Арболитовые блоки бывают разными: крупноформатными кладочными, пустотелыми, теплоизоляционными.
В их составе предусматривается вода, древесная щепа, цемент и специальные химические добавки.
Арболит отличается высокой паропроницаемостью, низкой водонепроницаемостью, малым весом. Материал не нуждается в дополнительном армировании и является легким в обработке.

СИП-панели
Хорошие пристройки получаются из СИП-панелей. Этот материал считается универсальным, чаще всего он используется при возведении каркасных построек. Отличается хорошими теплоизоляционными характеристиками, достаточной шумоизоляцией, малым весом. Из СИП-панелей можно быстро сделать теплую пристройку, следуя всем необходимым технологиям. Кроме того, рассматриваемый строительный материал является экологически чистым и безопасным.

ОСБ-панели
Ориентированно-стружечная плита используется для строительства пристроек часто. Это особый многослойный материал, который имеет демократичную стоимость, но при этом характеризуется высокой надежностью. ОСБ-панели выглядят аккуратно и привлекательно, отличаются маленьким весом. Работать с ними легко и удобно.
ОСБ-панели бывают разными. В продажу поступают материалы с разной степенью прочности и плотности. Но нужно учитывать, что данные элементы плохо переносят резкие изменения уровня влажности, поскольку в их основе заложены древесные компоненты.

Сэндвич-панели
Еще один строительный материал с трехслойной структурой. Пристройки из сэндвич-панелей возводятся очень быстро. Материал может похвастаться экологической безопасностью, гигиеничностью, а также незначительной нагрузкой, подаваемой на фундаментную основу. Кроме того, сэндвич-панели характеризуются отличными шумоизоляционными качествами.

Монтаж крыши пристройки
Крыша пристройки, как правило, имеет односкатную форму, материал кровли идентичен материалу основной крыши. Стропильная система односкатной крыши проста в изготовлении. Для стропил используют брус 150х150, если пролет больше 4,5 м в длину и 100х150, если длина пролета меньше 4,5 метров.
Обвязка может служить мауэрлатом, шаг стропил 60 – 140см, если угол наклона от 5° до 20°. Величина угла напрямую связана с обустройством примыкания к основной крыше. Более высокий наклон способствует лучшему сходу снега.
В зависимости от материала кровли делают обрешетку, используют тес, горбыль для удешевления конструкции. Приятнее глазу, когда крыша пристройки и дома представляет единую конструкцию, однако, можно не объединять их.
Важно! Если крыша пристройки, ниже основной и существует как отдельная конструкция, следует позаботиться о герметизации и теплоизоляции примыкания. Обустройство крыши заканчивается зашиванием фронтонов, карнизов, монтажом ветровых элементов и кровли.
Обустройство крыши заканчивается зашиванием фронтонов, карнизов, монтажом ветровых элементов и кровли.

Отдельно существующая крыша пристройки
Важные моменты, которые следует учитывать при возведении пристройки из бруса
Особое внимание – стыковке пристройки с домом. Каждый венец крепится к основной стене монтажными элементами
Места стыков следует пропитывать особо тщательно специальными составами, уплотнять места примыкания качественными гидроизолирующими материалами.
Теплоизоляционные материалы лучше располагать с внутренней стороны, так продлится время эксплуатации, и внешний вид деревянной пристройки сохранится во всей красе природного рисунка.
Использование металлического крепежа следует сократить до минимума, или использовать оцинкованный крепеж, чтобы избежать коррозии.
Двери и окна сразу устанавливать не стоит, их монтаж целесообразно производить после окончательной усадки дерева.
Если пристройка сделана как продолжение дома, выглядит единым его продолжением, значит, сделана правильно, эксплуатация её будет долгой и благополучной.

Мечта
Инструменты и материалы для создания каркасного пристроя к дому
Разрешение из БТИ получено. Теперь необходимо подготовить инструменты и материалы для строительства. Вам потребуются:
- цементный раствор;
- деревянные доски;
- песок;
- мелкие камушки;
- ОСБ-плиты;
- утеплитель;
- гидроизоляция;
- шпаклевка;
- краска для ОСБ-плиты;
- материал для устройства крыши;
- деревянная или металлическая дверь (по желанию хозяина);
- окно в пластиковой или деревянной раме (в случае необходимости);
- линолеум, керамические плиты или ламинат для отделки пола;
- перфоратор;
- строительный миксер;
- валики и кисти;
- гвозди и саморезы;
- монтажная пена;
- строительный степлер;
- лопата;
- металлические трубы диаметром 15-20 см, длиной 2,7-3 м.
Цементный раствор реализуют в пакетах по 25 килограммов каждый. Правила использования указаны на упаковке товара. Цена – 700 до 2 тысяч рублей, одни из лучших производителей — «Силка», «Макссил», «Мапей».

Основание пристройки должно быть прочным и устойчивым, поэтому для фундамента выбирайте качественный цемент, а не дешевую смесь
Деревянные доски понадобятся сначала для создания опалубки фундамента. Затем ими можно будет застелить залитый цементом пол, чтобы утеплить его и смягчить. Для подобных целей лучше всего подойдут ель, сосна, дуб. Толщина доски – не менее 5 миллиметров. Длину выбирайте в зависимости от площади каркасной пристройки к дому.
Выбирайте ОСБ толщиной не менее 7 миллиметров с размерами 100 × 100 сантиметров. Сама плита должна быть гладкой и однотонной. Это говорит о высоком качестве изделия.
Как утеплитель можно использовать минеральную вату или пенополистирол. Первый вариант дешевый, но материал быстро приходит в негодность. Пенополистирол имеет длительный срок эксплуатации (до 20 лет). Реализуется в виде плит, размеры одной — 200 × 100 сантиметров.
Выбирайте изделия от 10 миллиметров толщиной от компаний: «Пеноплекс», «Экстрол», «ТехноНиколь».

Пенополистерол для утепления пристройки к дому предпочтительнее, чем минвата. Он не впитывает жидкость, не боится перепадов температур
Гидроизоляция нужна обязательно. В качестве таковой можно использовать полимерный рулонный материал. Толщина – не менее 5 миллиметров.
Цена за квадратный метр – около 500 рублей. Среди фирм пользователи рекомендуют отдавать предпочтение следующим: «Боларс», «Пенетрон», «Полилен», «Зубр».
Шпаклевка и краска нужны для наружной и внутренней отделки. Узнать о выборе краски подробнее можно здесь.
На крышу можно положить металлочерепицу. Это прочный и устойчивый к погодным катаклизмам материал, который прослужит долго, к тому же он выглядит стильно, стоит недорого.
За квадратный метр вы заплатите 200-400 рублей. Толщина черепицы должна быть не менее 5 миллиметров.
Важно: проще всего создать каркасный пристрой к дому с помощью ОСБ. Такая комната будет теплой и прочной, если правильно утеплить ее. Конечно, возвести стены можно из кирпича, пеноблоков или деревянных брусьев
Но это гораздо дороже и энергозатратней
Конечно, возвести стены можно из кирпича, пеноблоков или деревянных брусьев. Но это гораздо дороже и энергозатратней.
Сколько взять материала для стен и пола? Какова сумма затрат? Все зависит от размеров самого пристроя.
Определиться с видом помещения помогут чертежи, представленные ниже:

С помощью такого чертежа можно создать простой пристрой к дому с односкатной крышей. Используйте собственные размеры

Такой чертеж пристройки к дому поможет просто и быстро возвести дополнительную комнату или, например, кладовую





