Оглавление
Подготовительные работы
Перед началом укладки проводки нужно составить план процесса. На подготовительном этапе:
- очищают помещение;
- удаляют облицовочные материалы;
- оценивают состояние имеющейся проводки;
- рассчитывают предполагаемую нагрузку на сеть;
- составляют схему электропроводки;
- рассчитывают нужное количество материалов.
Проверка старой проводки
На первом этапе определяют, в каком состоянии находятся имеющиеся в кухне кабели. В домах прокладывают 1- или 3-фазные сети. Необходимо уточнить это. Затем проверяют присутствие заземляющего контура. При наличии 3-жильного кабеля он имеется. Это же относится к многоквартирным домам, построенным после 1997 г. Также замеряют сечение жил провода. Значение учитывают при вычислении допустимой нагрузки.

Расчет суммарной токовой нагрузки
На этом этапе составляют список всех приборов, которые будут использоваться в кухне. С учетом содержащихся в технических паспортах данных можно сделать расчет суммарной мощности устройств. Полученное число является предполагаемой нагрузкой на проводку. К значению добавляют небольшой запас, что исключает возникновение аварийных ситуаций.
Расчет количества проводов
Существует 2 способа вычисления требуемой длины кабелей. Можно выполнить замеры в соответствии со схемой разводки. Учитывают углы, ниши, выступы, места расположения розеток и выключателей. К полученному значению добавляют 15%.
Подбор сечения кабеля
Расчет этого параметра основывается на информации, полученной при вычислении суммарной нагрузки на сеть. Сечение выбирают с помощью специальных таблиц. К указанному значению прибавляют 10%. Возможно использование кабелей с медными или алюминиевыми жилами. Первые считаются более надежными, однако из-за высокой стоимости применяются реже.

Инструменты и материалы
Помимо кабелей, для формирования электросети потребуются:
- Розетки с заземлением. Для подключения мощных приборов используют элементы с номинальным током 32 А. Для питания более слабых устройств подходят розетки на 16 А. Мощные потребители подключаются через одиночные элементы.
- Выключатели, к выбору которых особые требования не предъявляются. Предпочтение отдают изделиям с гладкими клавишами без рельефа или узоров.
Перед началом работы подготавливают такие инструменты:
- штраборез (при скрытом монтаже кабелей);
- перфоратор;
- вольтметр;
- паяльник;
- пассатижи;
- отвертки с разными насадками;
- молоток.

Чертеж схемы электропроводки
На заключительном этапе на бумаге отмечают места пролегания проводов, расположения выключателей и розеток. При этом учитывают рекомендуемую высоту элементов. Для построения схемы можно использовать специальную программу.
Особенности обеспечения кухни электричеством
Наличие бытовых приборов с большой мощностью (чайник, варочная панель, кондиционер, вытяжка, посудомоечная машина) делает кухню помещением, которое отличается максимальным потреблением электрической энергии. По этой причине нельзя обойтись в комнате только 2-3 розетками и одним выключателем.
Схема электропроводки на кухне, которая предполагает монтаж лишь одной распределительной коробки, зачастую бывает малоэффективной. Она не справится с нагрузкой при включении всех кухонных приборов.

Для качественного функционирования проводки необходимо придерживаться следующих правил:
- Электрические приборы, которые имеют большую мощность, снабжаются отдельной линией и своим автоматом.
- Для осветительных приборов и розеток тянутся разные линии. Каждая ветвь должна быть оборудована отдельным устройством защитного отключения.
- Обязательное заземление розеток. Благодаря этому увеличивается срок эксплуатации сети и кухоннойтехники.
- При креплении только одной распределительной коробки (обычно это происходит в небольшой кухне) используется трехжильный кабель с сечением 4 мм².
На подготовительной стадии проводится расчет суммарной мощности всех приборов и составляется конкретная схема монтажа проводов. На основании этих данных и определяется, прокладка какого типа кабеля будет осуществляться.

При выборе кабеля учитывают мощность каждого прибора. Несмотря на это, лучше всего укладывать трехжильную проводку на кухне. При наличии теплого электрического пола схема разводки может выглядеть следующим образом:
- ветка для люстры и галогеновой подсветки возле мойки или варочной плиты;
- линия на теплый пол;
- ветка для приборов с небольшой мощностью (микроволновая печь, миксер, тостер, кухонный комбайн);
- отдельные линии для мощной техники (духовка, посудомоечная машина, варочная панель);
- ветка для двойной розетки (для вытяжки и холодильника).
Для качественной укладки проводки на кухне своими руками нам потребуются:
- кабель;
- распределительная коробка (или щит);
- розетки с подрозетниками и выключатели;
- УЗО;
- клеммники;
- алебастр и шпатель;
- гофрированные трубки;
- изолента;
- крепежи (саморезы, дюбель-гвозди и скобы);
- отвертки, пассатижи, бокорезы, нож;
- перфоратор;
- болгарка;
- индикатор;
- уровень;
- молоток и зубило.
Нюансы распределения электричества на кухне
Кухонное пространство является помещением, где сосредоточены мощные потребители электроэнергии, поэтому разводка электрики на кухне должна продумываться с учетом всех нюансов. Среди них:
- Мощные потребители рекомендуется снабжать питанием через отдельную сеть с автоматом.
- Розеточную и осветительную линию лучше провести по отдельности, с компоновкой защитными отключающими элементами.
- Для розеток следует проложить защитное заземление. Это позволит не только повысить безопасность эксплуатации кухонной техники, но и продлить ее срок службы.
- Для электроснабжения кухни лучше применять несколько распределительных коробок. При использовании только одной рекомендуется укладывать трехжильную кабельную линию с сечением 4 мм².
Распределительный щиток
Проводка в любой квартире, выполняемая своими руками, начинается от распределительного щитка. Что он собою представляет? Это своего рода бокс, в котором монтируется счётчик электроэнергии и вся защитная автоматика.
Какие бывают щитки?

Этот коробок изготавливают из металла либо пластика. Каждый вариант имеет свои преимущества. Пластиковый щиток практичнее, так как мало весит, и к тому же внешне он выглядит привлекательно и эстетично. Металлический короб отличается долговечностью и надёжностью.
По способу крепления щитки бывают наружного и внутреннего исполнения. Наружный щиток (его по-другому называют накладной) навешивается на стену при помощи саморезов или дюбель-гвоздей. Это значительно облегчает работы по его монтажу, но в то же время такой вариант щитка отнимает свободное пространство в помещении. Внутренний или встраиваемый щиток требует монтажа специальной стенной ниши, но он не занимает комнатное свободное пространство.
Чем щиток укомплектовывают?
Что ещё понадобится для монтажа распределительного щитка, кроме самого бокса:
Вводной автомат, он защищает всю квартирную сеть путём отключения в случае необходимости, к нему подходит питающий кабель на квартиру.
- DIN-рейка – это специальная металлическая пластина, на которую крепится вся автоматика.
- Счётчик электроэнергии, после выполнения всех монтажных работ, надо будет обязательно пригласить представителя энергосбыта, чтобы опломбировал прибор учёта.
- Шинки РЕ и N, на которых будут соединяться все нулевые и заземляющие проводники.
- Автоматические выключатели, они будут защищать определённую группу токоприёмников от короткого замыкания путём отключения при сверхтоках. Также при помощи автоматов можно будет принудительно в случае необходимости отключать ту или иную линию от общей сети.
- Устройства защитного отключения (УЗО), они не монтируются самостоятельно, а подключаются после автоматических выключателей. УЗО выполняет защитную функцию в случае, если корпус какого-то электрооборудования оказался под напряжением. В такой ситуации УЗО защищает человека от возможного поражения электрическим током. Можно использовать совмещённый вариант, который включает в себя автомат и УЗО – дифференциальные автоматы.
- Соединительные провода или распределительные гребёнки.
Чтобы определиться с количеством автоматов, необходимо рассчитать и распределить нагрузку в квартире.
Общие подготовительные работы
Все работы с проводкой на кухне начинают с составления проекта. Сначала определяют количество техники, запланированной для последующего размещения.
К обязательным позициям относятся:
- холодильник;
- плита (духовой шкаф, варочная панель).
Среди дополнительных приборов, делающих быт более удобным и комфортным, фигурируют:
- микроволновая печь;
- посудомоечная машина;
- электрочайник;
- бутербродница;
- мультиварка;
- вытяжка;
- кухонный комбайн;
- миксер;
- кофемашина и пр.
Одни комплектуют кухню всеми этими предметами, другие выбирают отельные позиции, а третьи дополняют список телевизором и стиральной машиной. Все эти варианты считаются допустимыми при условии корректной организации проводки и установки для каждого агрегата отдельной розетки.
Затем на бумаге делают чертеж и отмечают на нем предполагаемое расположение мебели, осветительных приборов и бытовой техники относительно планировки помещения. Там же указывают дислокацию розеток и включателей/выключателей.
На следующем этапе выясняют тип входящей в жилое помещение сети. Если используется однофазное электрообеспечение, подключить одновременно несколько мощных приборов бытовой техники будет проблематично. Придется либо снизить количество используемых агрегатов, либо включать их строго по отдельности, чтобы в сети не возникла перегрузка.
Если в квартире или доме имеется только однофазная сеть, с использованием бытовой техники нужно быть очень осторожными. При включении двух и более приборов может произойти перегрузка, способная спровоцировать выбивание пробок, короткое замыкание и даже возгорание проводки
Как рассчитать оптимальную мощность проводки?
Чтобы обеспечить всю кухонную бытовую и осветительную технику необходимым количеством электроэнергии, нужно на стадии создания проекта проводки просчитать суммарную мощность всех планирующихся к использованию приборов. Номинальная мощность указана в техпаспорте агрегата.
Сложив все показатели, станет ясно, какое количество киловатт потребуется для корректной работы.
Обустройство электрической проводки напрямую зависит от суммарной мощности всех приборов, используемых на кухне. Чем выше этот показатель, тем толще должен быть прокладываемый кабель
Обычно значение колеблется в пределах 8-15 кВт, но фактически может быть как больше, так и меньше. Разумеется, ситуация, когда все приборы включаются одновременно, случается крайне редко, но, тем не менее, проводку рекомендуется создавать с некоторым запасом мощности на случай любых непредвиденных ситуаций
Порядок прокладки электропроводки на кухне
Работу начинают с разметки поверхностей и штрабления каналов. После этого формируют отверстия для установки розеток и выключателей, подсоединяют эти элементы к сети.
Разметка под штрабы
Независимо от способа укладки кабелей необходимо отметить на стенах места расположения проводов, распределительных коробок, розеток и выключателей. Для определения правильности положения элементов используют лазерный уровень или более простые инструменты (уголки, линейки). Разметку делают карандашом или маркером. При этом используют сделанную ранее схему.

Штрабление стен
Лучшим инструментом для выполнения таких работ считается штраборез со встроенным пылесосом. Такие устройства дорогие, покупать их для разового ремонта в квартире нецелесообразно. Поэтому в быту часто пользуются молотком и зубилом. Для формирования каналов в штукатурке используют штраборезы с металлической пластиной.
Разработка отверстий под элементы сети
После штрабления делают посадочные места для розеток, выключателей и коробок. Для этого используют перфоратор с насадкой-коронкой. При отсутствии этого инструмента применяют простое сверло.
Прокладка проводов
Перед началом работы убеждаются в отсутствии напряжения. Укладку кабелей выполняют так:
- Удаляют острые выступы штраб, способные повредить изоляцию. Вводят 3-жильный провод в распределительную коробку или подсоединяют к щиту. При укладке кабелей с разным сечением учитывают соответствие их толщины и мощности подключаемых приборов.
- Укладывают провод в штрабу, подводя к выключателю, розетке или коробке. При соединении кабелей применяют паяльник или специальные зажимы. Скручивать жилы нельзя.
- Закрепляют провод хомутами. Если кабель входит в канал плотно, от фиксации можно отказаться. В местах монтажа розеток и выключателей оставляют запас в 10 см. Скрытые в стене соединения не делают.
Подключение розеток
На первом этапе с помощью раствора закрепляют подрозетники. После этого в них заводят провода, которые подсоединяют к клеммам розетки. Сердцевины закрепляют болтами или распорками. После этого устанавливают декоративную крышку. Число розеток проверяют по схеме расположения электрооборудования.

Установка выключателей
Монтаж элементов выполняют так же, как в случае с розетками. Выключатели устанавливают на расстоянии 90 см от пола, 15 см — от дверной коробки.
Инструменты, необходимые для работы
Для удобного и корректного проведения монтажно-электрических работ домашнему мастеру понадобятся следующие ручные инструменты:
- набор крестовых и прямых отверток;
- паяльник;
- молоток;
- плоскогубцы;
- электрический штроборез, если предполагается делать скрытую проводку;
- электрический перфоратор, оснащенный сверлами с победитовым наконечником (для прокладки каналов в бетонных или кирпичных стенах);
- тестер для проверки наличия/отсутствия напряжения в сети.
Все инструменты должны иметь целостное защитное покрытие на рукоятках, сделанное из прочных материалов, не проводящих ток.
Если, несмотря на советы профессионалов и требования пожарной безопасности, выбран открытый или комбинированный вариант прокладки проводки, понадобятся прочные и выносливые дюбель-гвозди. С их помощью удастся надежно прикрепить кабель-каналы даже к бетонным стенам.
Для поверхностей, имеющих более мягкую, податливую структуру, подойдут самые простые шурупы-саморезы или гвозди маленького либо среднего размера.
Для крепления внешней проводки в кухне к деревянной стене уместно использовать гвозди или саморезы, имеющие декоративную шляпку. Они стоят несколько дороже, но выглядят более привлекательно и гармонично вписываются в общий колорит помещения
Для быстрой, надежной и четкой фиксации проводки в штробах понадобятся гипс или алебастр. Они застывают практически мгновенно и позволяют сразу же продолжить работу, не теряя драгоценного времени. Подробный инструктаж по штроблению стен под электропроводку можно прочесть в этом материале.
Схема электропроводки на кухне
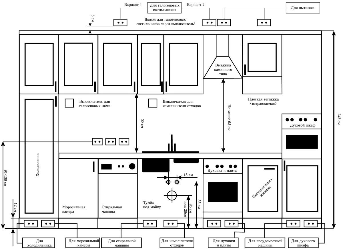
Кухня, из-за обильной оснащенности современными электроприборами, является главными потребителем в нашей квартире. И если приборов у вас много, двумя розетками лучше не ограничиваться. Тем более, что крайне желательно, даже необходимо автономное подключение освещение мойки и воздухоочистительных приборов.

Все ваши приборы будут подвергаться резким перепадам температуры, повышению уровня влажности стен, провода должны иметь двойную изоляцию и находится в пластиковых влагонепроницаемых трубках. Более того, на кухне следует использовать исключительно трехлинейные системы электроснабжения.
Разводка электропроводки на кухне
Проводка на кухне непременно должна быть разветвлена: отдельные розетки должны питать электроплиту, холодильник, бытовые приборы. Хорошо (особенно, если эти приборы вроде кофемашин и аэрогриля), чтобы каждой розетке сопутствовали собственные автоматический выключатель и УЗО.

Сегодня, когда во многих квартирах работают кондиционеры, напряжение в 220 В не способно обеспечить все приборы. Следовательно, в случае превышения общей мощности энергопотребителей всей квартиры показателя в 10кВТ, необходимо установить трехфазное (380 В) питание.
И еще. Прощаясь с электриком, который делал проводку, попросите его начертить план на котором будет указана схема электропроводки на кухне. Тогда с ремонтом без труда справится и другой мастер.
Розетки и выключатели на кухне
Никто не станет спорить с тем, что розетки и выключатели освещения – это тоже предметы интерьера. Приобретаются они обычно еще до начала электромонтажных работ.
Покупая розетки, нелишним будет позаботиться об их внешнем виде, даже если вы не планируете делать из кухни нечто впечатляющее.
Монолитные розетки (двойные либо тройные) обязательно должны быть расположены на безопасном расстоянии от рабочей поверхности и закреплены так, чтобы отключив один прибор, вы не нарушили питание других.
Следовательно, они будут однозначно на виду. К счастью, сегодня в продаже много «интерьерных» розеток, выполненных в художественном ключе, их не нужно стремиться скрыть.
То же относится и к выключателю, который однозначно должен быть у входа на кухню, причем на уровне опущенной руки. Если в доме есть дети, то и им тоже не придется спотыкаться в темноте.
И поскольку штепсели новых моделей кухонной техники – зарубежного производства, лучше покупать евророзетки. Электрифицируя со вкусом оформленную кухню, не нужно скупиться на розетки.
Например, две-три розетки уместны под кухонными полками, особенно открытыми. Полки можно расположить симметрично относительно розеток для вытяжки и мойки.
Любой электрик посоветует вам предпочесть керамические розетки (поскольку они не плавятся и не горят) либо из термоустойчивого пластика. А вот от удлинителей лучше отказаться.
Они создают слишком большие нагрузки на систему электроснабжения и, кроме того, подвержены возгоранию при попадании на них влаги, например, случайно пролитого сока.
Если вы будете обустраивать систему электропроводки на кухне самостоятельно, обязательно помните о том, что и для кухонной вытяжки, и для светильников, «привязанных» к рабочей поверхности, нужны раздельные ответвления.
Отдельные розетки, причем самого лучшего качества, должны быть предусмотрены для варочной поверхности и духового шкафа (если он не совмещен с электрической плитой).
Для гарантии безопасности розетки имеет смысл «утопить», то есть поместить в специально сделанное углубление (если вы не используете пластиковый короб для розетки).
Итак, работая над дизайн-проектом будущей кухни, вы должны в комплексе увидеть желаемое размещение мебели, и розеток, и источников дополнительного освещения.
Похожие материалы на сайте:
- Самонесущий изолированный провод — СИП
- Ремонт электропроводки
ЗАМЕНА ПРОВОДКИ НА КУХНЕ
В домах, которые были построены более 20 лет назад, электропроводка на кухне требует обязательной замены. Основных факторов, ведущих к такому решению, несколько.
Прежде всего, это низкий нагрузочный лимит. Исходя из старых ГОСТов и СНиПов он не превышал 7-10 А на целую квартиру. Сейчас ток потребления только одной кухни может превышать 12-15 А.
При этом такие электроприборы как тёплый электрический пол или проточный водонагреватель вообще нельзя подключать в электросеть старого типа.
На старую электропроводку по нормативам устанавливается автоматический выключатель на 16А. Из-за постоянной перегрузки он систематически срабатывает.
Многие пользователи решают в данную проблему, установкой автоматического выключателя с большим номиналом. Это неизбежно приводит к перегреву проводки, что является основной причиной возникновения пожара.
Второй причиной является физическое состояние кабелей. Как правило, в старых домах вся электропроводка состояла из алюминиевого кабеля в ПВХ изоляции, срок службы которого составляет 30 лет.
Также следует учитывать, что все соединения в распределительных коробках в то время выполнялись методом скрутки. Несмотря на высокую устойчивость к коррозии несколько лет в условиях влажной среды кухни проводники обязательно окисляются, что может привести к потере контакта и перегреву.
Вступление
Эти 10 правил азбука любого кто занялся или занимается электропроводкой на кухне и в квартире. Прочитав эти 10 советов вы сможете понять суть вопроса, а при желании и самостоятельно выполнить простую электропроводку на кухне.
Для загородной кухни не лишним будет сразу продумать источник резервного электропитания. Им может стать классический бензогенератор — небольшая электростанция, удобная в работе и обслуживании. Бензогенератор может остаться с этапа строительства или приобретена для бытовых нужд. Посмотреть и выбрать бензогенератор можно на сайте https://zubilo-perm.ru/elektrogeneratoryi/benzogeneratoryi/.
Электрический расчет электропроводки на кухни
Электрический расчет розеток кухни основывается на нескольких положениях.
- Нельзя все кухонные бытовые приборы запитывать от одной розетки или что, то же самое, нельзя их запитывать от одной питающей линии.
- Желательно, розетки на кухне делать с заземляющим контактом для защиты человека от поражений электрическим током и обязательно нужно заземлить все бытовые приборы, связанные с проточной водой (стиральная машина, посудомоечная машина, измельчитель отходов).
- Для электрической плиты делается отдельная питающая линия. Линия ведется непосредственно от электрического щита квартиры. Если электроплита собирается из варочной панели и духового шкафа, то к ним подводится отдельное электропитание.
- Все бытовые приборы, связанные с проточной водой и корпусами из металла, к которым можно прикоснуться (стиральная машина, посудомоечная машина) запитываются отдельно с установкой на питающие линии устройства защитного отключения (УЗО) или дифференциального автомата защиты (дифавтомат).
Из этих положений и будем исходить в дальнейших расчетах. Начнем с равномерного распределения мощности бытовых приборов или по-другому, разделение электропроводки кухни на группы.
Разделение электропроводки кухни на группы
Группа электропроводки или групповая цепь это несколько розеток и (или) светильников последовательно соединенных и защищенных одним общим автоматом защиты.
- Прежде всего. Для подключения стиральной машины, посудомоечной машины, духового шкафа делаются отдельные питающие линии, что соответствует отдельным группам электропроводки.
- Для варочной панели также нужна отдельная питающая линия.
- Отдельную питающую линию делаем для остальных розеток соединенных параллельно: розеток среднего уровня, холодильника, микроволновой печи, освещения и измельчителя отходов (диспоузера).
Расчет номиналов автоматов защиты и сечения кабеля для электропроводки кухни
В принципе можно не углубляться в физику процесса и принять для исполнения следующие постулаты.
- Все электрические кабели должны быть с медными жилами. Прекрасно подходят электрические кабели марок ВВГ, NYM (НЮМ).
- Электрический кабель для электропроводки должен быть трехжильным. Каждая жила должна быть однопроволочной.
- Для варочной панели сечения кабеля должно быть 3×4 мм² или 3×6 мм². Что означает три жилы сечением каждой жилы 4 (6) мм².
- Для стиральной машины, посудомоечной машины, измельчителя отходов нужно взять кабель 3 × 2,5мм².
- Таким же кабелем (3 × 2,5 мм²) нужно запитать блоки розеток среднего уровня.
Или воспользоваться таблицей, составленной, поверьте, очень профессиональными людьми. Но, можно самостоятельно посчитать номиналы автоматов защиты и сечения кабеля групп.
Как самостоятельно посчитать номиналы автоматов защиты и сечения кабеля групп
Для примера произведем расчет группы розеток среднего уровня, для холодильника, микроволновой печи, освещения и измельчителя отходов с выключателем. Предположим, во все планируемые розетки этой группы включены бытовые приборы. Сначала посчитаем суммарную мощность всех приборов. Для этого воспользуемся таблицей мощности бытовых приборов. Ее вы можете посмотреть тут или найти на сайтах продавцов бытовой техники.
Считаем:
- Холодильник 200Ватт,
- Измельчитель 400Ватт,
- Микровалновка 2000Вт,
- 6 бытовых приборов в двух блоках дополнительных розеток 6×1000 Вт=6000 Вт.
- Итого: 9000 Вт.
Максимальный рабочий ток в сети
Максимально рабочий ток в сети это ток при включении всех приборов в электрическую сеть. В нашем примере этот ток равен: I раб.= Pмощность⁄U напряжение=9000⁄220=41 Ампер.
Ток автомата защиты должен быть не меньше максимальному рабочему току в цепи группы. То есть: I авт.защ.≥I раб. В тоже время, номинал автомата защиты не может быть больше допустимого тока кабеля. То есть, такого тока при котором электрический кабель цепи не будет греться и гореть. I авт.защ≤I кабеля.
В итоге получаем общее условие для выбора номинала автомата защиты: I раб.≤I авт.защ≤I кабеля.
Переходим к таблице соответствия рабочего тока и нужного электрокабеля для проводки. По таблице видим, что ток 41 Ампер, будет «держать» либо кабель с проводами 4мм2 ( при открытой проводке) или 6 мм² ( при скрытой проводке). Расчет электропроводки на кухни таблица рассчета сечения кабеля. В результате получаем. По прямому предварительному расчету, что 41 Ампер≤I авт.защ.≤42 Ампера. Можно считать, что все рассчитано. Автомат берем с чуть меньшим номиналом, 40 А, а кабель берем с проводами 6 мм².
План работ
Независимо от сложности схемы электропроводку в квартире практически всегда можно выполнить самостоятельно. Провода проложить в стенах или по ним в состоянии любой хозяин, обладающий минимальными навыками строительно-отделочных работ. Однако проектирование электрики с расчетами и подбором материалов и устройств защиты лучше доверить профессионалу.
Общая пошаговая инструкция монтажа электропроводки выглядит следующим образом:
- Выполняется разметка с указанием на стенах линий укладки проводов и мест установки выключателей с розетками.
- В созданные каналы (штробы) укладываются электрические кабели.
- Устанавливаются и подключаются электротехнические изделия (розетки, распределительные коробки для электропроводки, выключатели).
- Производится монтаж защитных устройств в этажном электрощите и подсоединение к ним проводов из квартиры.
- Осуществляется проверка электросети на предмет коротких замыканий.
Разметка, подготовка стен
При разметке на стенах мест укладки проводов штробы и кабель-каналы следует делать прямыми и с изгибами только под прямым углом. Это облегчает поиск электропроводки в квартире впоследствии при необходимости выполнения ремонта, а также позволяет избежать по ошибке пробоя жил гвоздями или саморезами во время последующей отделки.

Правила разметки электропроводки в квартире
Монтаж и прокладка проводов
Соединять жилы рекомендуется при помощи клемм. Паять их долго и сложно. А скрутку использовать следует только в крайнем случае, это самый ненадежный способ монтажа. При этом места таких соединений должны располагаться в распределительных коробках для электропроводки, чтобы до них можно было легко добраться при необходимости.
Подключение автоматов и УЗО
При наличии грамотно разработанной схемы электропроводки автоматы и УЗО по ней смонтировать в щитке можно без привлечения электрика. Однако для проверки, насколько правильной получилась в итоге сборка, все же стоит привлечь профессионала.

Как распределить УЗО в квартире по группам
Подключение осветительных приборов и фурнитуры
Самым простым этапом электромонтажа является подключение приборов освещения и фурнитуры. Для этого на каждом электротехническом устройстве имеются винтовые либо пружинные зажимы. Достаточно вставить в них оголенную жилу и зажать ее в такой клемме.





