Оглавление
Как сделать шлагбаум своими руками
Сделать шлагбаум совсем не трудно, если есть опыт в работе с металлом, древесиной, сварочным аппаратом, навыки строительства и необходимые инструменты. В Интернете можно найти множество чертежей, чтобы построить механический шлагбаум, и большое количество информации, с помощью которой можно осуществить самостоятельное изготовление автоматического шлагбаума.
Для изготовления самого простого деревянного заграждения, состоящего из двойной стрелы, понадобится тумба, выполненная из массивного куска деревянного бруса со сторонами не меньше 10 см. Высота такого бруса должна быть более 140 см, 30 см длины должны быть закреплено под землей. Поворотный механизм ручного шлагбаума крепится на расстоянии не менее 10 см от верхнего края. Для создания ограждающей стрелы нужны 2 одинаковых деревянных бруса, которые будут соединены через каждые 0,8 м плашками.
При самостоятельном изготовлении металлического заграждения нужно взять стальную трубу; в зависимости от материала определяют длину стрелы. Противовесом чаще всего служит плотный лист металла, который крепится к краю болтами. Для того чтобы сделать осевой механизм, используется втулка с подшипниками.
Чтобы закрыть более широкий проезд, металлическую стрелу делают в виде треугольника с усилением. В месте крепления стрелы со столбом ставится поворотный механизм. Чтобы стрела была устойчива к различным погодным условиям, металл стоит брать прямоугольной формы, а не круглой. В любом варианте крепления запорного механизма чаще всего используется штырь из металла со специальным отверстием, на которое крепится замок.
Проект ручного шлагбаума
Прежде чем приступить к проектированию нужно выбрать, какой вариант шлагбаума будет стоять на участке, определиться со строительными материалами. Только после этого стоит самостоятельно, или воспользовавшись интернетом, делать чертеж. Проектировать можно на бумаге старым методом или при помощи компьютера при владении навыками работы в специальной программе. От точности чертежа зависит, насколько удачным будет проект.

Определяемся с материалами
Прежде чем приступать к строительству и планировать чертеж, нужно определиться с материалом, из которого будет выполнена основа шлагбаума. Если решено изготовить его из дерева, это обойдется гораздо дешевле, чем металлическая конструкция; в изготовлении это заграждение будет более примитивным. Достоинством является небольшой вес конструкции.
Для дачного поселка такой вариант оптимален. Но у такого заграждения есть и минус — маленький срок эксплуатации, т.к. дерево не лучшим образом реагирует на различные погодные условия и насекомых. Поэтому древесину обрабатывают специальной пропиткой и окрашивают.
Подготавливаем инструменты
Тем, кто решил ограничить въезд своими руками, потребуются, помимо основного строительного материала, следующие инструменты и строительные принадлежности:
- бетон;
- станок;
- фуганок;
- крепежные материалы;
- электрическая дрель;
- краска и лаковое покрытие;
- противовес;
- по необходимости набор датчиков.

Подготовка участка
Процесс установки шлагбаума не менее важен, чем проектирование и сбор самой конструкции. Подготовка места установки и заложение фундамента заключаются в следующем: если планируется ставить деревянное заграждение, достаточно просто выкопать глубокую яму, но если конструкция состоит из железа, нужно выкопать яму и забетонировать квадратную площадку со сторонами 50 см и заданной глубиной. Часто используют металлическую закладку, к которой в дальнейшем крепится опора.
Установка опор
При установке опоры для деревянного заграждения в получившуюся яму вкапывается деревянный брус соответствующего чертежу размера. Опора для металлического заграждения крепится массивными болтами к заложенной плите на бетонной заливке.
Настройка стрелы
Настройка и крепление стрелы делаются одновременно. Устанавливают подъемный шлагбаум с противовесом, который крепится к той стороне стрелы, которая выступает на 0,5-0,8 м от стойки основания. Нужно делать это после того, как бетон застынет, чтобы не было перекоса. Механизм нуждается в систематическом смазывании, чтобы свободно передвигать стрелу.
Настройка электроподключения
Если по проекту шлагбаум имеет электрическое подключение и открытие происходит посредством нажатия на пульт, предварительно нужно произвести настройку системы. Во-первых, все провода, ведущие к заграждению, должны быть заземлены и проведены в специальных каналах. Во-вторых, пульт управления должен быть расположен не ниже чем 30 см от земли. Установка пульта должна проводиться специалистами, которые разбираются в данной системе.
Определение материала для изготовления
После принятия решения об установке шлагбаума самостоятельно прежде всего требуется определиться с материалами для его изготовления. Как правило, для того чтобы сделать шлагбаум своими руками, выбирают два материала, которые являются наиболее распространенными. Такими материалами является металл и дерево.
Фундамент с армированием для установки шлагбаума.
Дерево в качестве материала для самодельного шлагбаума имеет ряд неоспоримых преимуществ, среди которых основными являются следующие:
- невысокая стоимость материала, требуемого для установки конструкции;
- предельная простота изготовления механизма работы механического шлагбаума;
- небольшой общий вес изделия.
Все эти преимущества, как правило, владельцев склоняют к использованию именно дерева в процессе изготовления и установки шлагбаумов, ограничивающих проезд. Работа такого шлагбаума является очень простой, и его закрыть и открыть сможет каждый человек.
Однако одновременно с преимуществами такой материал, как дерево, имеет ряд свойственных ему недостатков. Основные недостатки деревянной модели преграждающего устройства следующие:
- дерево является материалом, сильно подверженным негативному влиянию внешней среды;
- для обеспечения относительно длительного срока службы устройство требуется подвергать пропитке спецрастворами и покраске;
- относительная хрупкость устройства, которая для придания ему жесткости требует дополнительного своего утяжеления;
- чередование действия негативных факторов способно очень быстро вывести устройство из строя.
Устройство стрелы шлагбаума.
Помимо этого, деревянный шлагбаум не обладает устойчивостью к вандальным проявлениям — ее можно легко сломать и распилить.
Более стойким в этом отношении является изделие, изготовленное из металла. Но изготовление металлического устройства требует гораздо больших финансовых затрат, однако и служить такое изделие будет значительно более длительное время по сравнению с деревянным.
Правильно разработанный чертеж позволяет пренебречь большим весом, который имеет металлическая модель. Если правильно разработать схему, то механической работой осевого механизма с легкостью может управлять человек.
Использование в качестве антикоррозийных покрытий различных лаков и красок позволит сберечь устройство конструкции от воздействия неблагоприятных факторов окружающей среды в течение длительного времени. Помимо этого, шлагбаум, изготовленный из металла, является очень устойчивым к вандализму.
Подготовительные мероприятия
Прежде чем приступать к изготовлению заградительного устройства, нужно сделать его эскиз. Готовая схема содержит элементы барьерного блока. Это обеспечивает дальнейшую эффективность конструируемого устройства. Воссоздать схематическое изображение можно самостоятельно или с применением специальной программы.

Шлагбаум механический откатной

После выбора дислокации для заграждения, его нужно указать на схеме. В точке размещения устанавливаются опоры, одна из которых служит креплением для блока, а вторая защищает стрелу от слишком быстрого опускания. Шлагбаумная стрела обычно имеет размер, равный промежутку между опорными столбами.
Механический поворотный усиленный шлагбаум
Готовое проекционное изображение должно содержать такие элементы:
- осевой механизм;
- стрела;
- опорный блок;
- стойка уловителя;
- блок крепления.

Механический поворотный стандартный шлагбаум
Для подробного описания деталей, они должны быть изображены на чертёже в виде сверху. При этом важным моментом становится демонстрация разрезов деталей. В основном это касается тех случаев, когда в качестве материала выступают металлические трубы различного диаметра. Такие действия облегчают поиск лучшего варианта сочетания элементов конструкции. Отдельный чертёж разрабатывается для устройства осевого механизма. Во избежание ошибок, размеры всех элементов в нём указываются в миллиметрах.
С чего начать
Самостоятельное изготовление подъемного механизма во двор не обходится без составления проекта, разработки подробной схемы. Чертежи лучше сделать при помощи компьютерных программ. Чтобы сделать барьер быстро, учитывайте такие особенности подготовительного этапа:
- На чертеже нужно показать элементы конструкции с реальными величинами, указанными в масштабе. Рисунки должны содержать структуру тумбы, крепежи, осевой механизм, стойку улавливателя и стрелу.
- Напишите на отдельном листе, сколько присутствует одинаковых деталей.
- Если конструкция планируется во двор многоквартирного дома или дачный кооператив, изделие должно быть внушительных размеров. Чтобы оно оказалось устойчивым и прослужило долго, сначала заливают бетонное основание. Глубину фундамента тоже указывают на чертежах. Оно может быть меньшим, если планируется небольшая стоянка со шлагбаумом.
- Определитесь с тем, насколько глубоко нужно утопить в грунт основу приспособления.
- Изготовление подъемного механизма будет наиболее понятным, если отобразить на чертеже функциональные компоненты в разрезе. Также подумайте над тем, какие крепежи и соединения станут самыми надежными.
Изготовление шлагбаума своими руками
Большинство владельцев загородных домов или дач сталкивалось с насущной проблемой: въезд чужих машин на личную территорию. И если площадь участка не ограничивается только самим домом и огородом, то вопрос #8220 обособленности#8221 и вовсе встает весьма остро.

Шлагбаум – приспособление, предназначенное для контроля въезда на территорию. Двор, дачный или гаражный кооператив, стоянка городского офиса – он будет смотреться органично везде.
Что же можно предпринять в этом случае? Отличный выход для тех, кто согласен с выражением #8220 мой дом #8211 моя крепость#8221 , #8211 это самодельный шлагбаум.
Ведь для большинства людей наличие шлагбаума на частной территории #8211 это недвусмысленный знак того, что посторонним вход сюда точно воспрещен. А это существенно отражается и на культуре, и на безопасности, и на прочих важнейших вещах. Так как же все-таки сделать шлагбаум своими руками? Шлагбаум не так сложен в исполнении, как может показаться сразу.
После установки шлагбаума поток беспрепятственно проезжающих транспортных средств сократится в несколько раз.
Для начала необходимо запастись необходимым и самым главным материалом. Для изготовления шлагбаума понадобятся следующие материалы и инструменты:
- опоры
- деревянные доски
- лопата
- бетонный раствор
- станок
- фуганок
- болты, гайки
- дрель с твердосплавными сверлами
- противовес
- лак, краска
- датчик и пульт управления.
Подготовка участка
Первым делом своими руками разрабатывается проект будущего устройства. Нужно четко продумать все детали, определиться с задачами, которые должен выполнять шлагбаум в том или ином конкретном случае. План чертежа прорабатывается заранее. Это можно сделать от руки или в каком-либо специальном графическом редакторе на компьютере.
На месте предполагаемого нахождения будущего преграждения устанавливаются опоры.
Одна из них будет предназначена непосредственно для фиксации самого шлагбаума, а вторая станет выполнять роль удержания его при опускании.
При этом длина шлагбаума должна быть равна расстоянию между опорными столбами. Но в несобранном и необработанном состоянии его длина должна иметь запас примерно в 10 см.
Если шлагбаум будет автоматическим, то опоры для большей фиксации необходимо будет забетонировать.
Установка опор
Самодельный шлагбаум чаще всего выполняется из отходов оставшихся после строительства дачных домов.
Доски для шлагбаума нужно обработать на станке, а потом пропустить через фуганок. Именно здесь и #8220 потеряются#8221 заранее оставленные 10 см.
Затем от одного края отступается небольшое расстояние, а две доски соединяются между собой болтами и гайками. Полученный шлагбаум прикрепляется к поворотной оси или к подъемному механизму. Его можно приобрести отдельно.
Как делается подъемный механизм? Для этого необходимо в главной опоре просверлить ось. Сделать это можно при помощи твердосплавного сверла. На другой опоре устанавливается любой вид ограничителя, сделанный из того, что есть под рукой. Это необходимо для того, чтобы шлагбаум опускался только до определенного момента. Затем в полученную ось крепится сама #8220 стрела#8221 шлагбаума, в которой также просверлена необходимая ось. К задней части конструкции нужно прикрепить противовес.
Обработка и завершение работы
Теперь настало время покраски и химической обработки, что также делаем своими руками. Все же шлагбаум предназначен для длительного нахождения на улице, поэтому доски нужно покрыть лаком, а позже покрасить. Цвет должен выделяться из общей среды. Обычно он бывает красного цвета полностью или с чередованием красных полосок с белыми.
Важная составляющая #8211 это тип управления ограждением. Сделать его автоматическим поможет специальный и тоже автоматический пульт управления. Его приобретение не составит труда. Автоматический шлагбаум работает на специальных датчиках, которые улавливают движение. Их придется докупать отдельно. Кроме того, нужно установить автоматический шлагбаум на необходимое количество подъемов. Иными словами, необходимо рассчитать частоту его открытий, например, за каждые пять минут. Если автоматический шлагбаум предполагается открывать нечасто, то можно обойтись более простой и дешевой системой.
Таким образом, можно достаточно легко и своими руками сделать шлагбаум. При этом своеобразные ворота в определенной мере будут защищать от приезда непрошеных гостей на личную территорию.
Виды шлагбаумов
Отечественные и импортные устройства делятся на такие виды:
- автоматический;
- электромеханический;
- откатной;
- распашной;
- ручной;
- гидравлический.

Аккуратный шлагбаум гармонично смотрится и на въезд в дачный кооператив, и на стоянке возле городского офиса
Все они различаются по принципу работы, а также стоимости, и состоят из таких элементов:
- блок управления;
- редуктор;
- мотор;
- стойка;
- балансир;
- стрела.
В дополнение эти защитные агрегаты могут иметь в своем составе следующие компоненты:
- фотоэлементы и другие устройства безопасности и контроля;
- ловители;
- автоматику;
- защитную «юбку».
Электромеханический шлагбаум – это наиболее востребованное устройство для быстрого преграждения и освобождения пути. Его характеристики:
- может работать в самых суровых условиях;
- обладает несложной конструкцией;
- отличается бесперебойностью работы.

Специализированные организации предлагают множество вариаций готовых шлагбаумов
Гидравлический шлагбаум – устройство, которое часто используется для ограничения въезда автомобилей. Оно выгодно отличается от подобных решений такими параметрами:
- работа производится непрерывно;
- обладает износостойкостью;
- высокий коэффициент использования;
- бесшумность;
Представленные устройства чаще всего используются на таких объектах:
- аэропорты;
- въезды на охраняемый объект;
- административные организации;
- стоянки рядом с крупными торговыми центрами;
- вокзалы и т. д.
Откатной шлагбаум называют «антивандальным» устройством. Он оберегает объект от механических воздействий. Стрела, являющаяся его элементом, движется по горизонтали. При выборе этого вида конструкции решающим фактором становится количество пространства, которое имеется на въезде. Такой вид заградительных устройств считается довольно удобным в использовании, так как каждый водитель (даже женского пола) сможет без проблем его открыть и закрыть.

В качестве светоотражающих элементов может быть использована, как специальная полимерная плёнка, так и катафоты, закреплённые на шлагбауме
Автоматический дорожный шлагбаум применяется для ограничения подъезда к таким объектам:
- частная территория;
- двор загородного дома;
- многоквартирное строение;
- промышленное предприятие и т. д.
Он оснащен автоматическим управлением. Открытие стрелы осуществляется через нажатие специальной кнопки.
Ручные шлагбаумы являются конструкциями, которые не оснащены вспомогательными приводами. На стреле этого устройства предусмотрен специальный противовес, который помогает производить её подъем. Эти ограничители движения транспортных средств применяются в местах с очень низким соотношением количества проходящих машин за единицу времени.
Существуют дополнительные категории, к которым относятся типы шлагбаумов (кроме ручных):
- Конструкции с малой пропускной способностью, которые применяются там, где их подъемы осуществляются не чаще ста раз в день. Эти устройства устанавливаются в частных домовладениях или дачных кооперативах.
- Шлагбаумы, которые отличаются средней пропускной способностью, применяются там, где число подъемов не может быть больше пятисот раз в день. Эти конструкции устанавливаются в гаражных кооперативах, в парковых зонах, возле офисных зданий и т. д.

Конструкция будет состоять из тумбы и стрелы
Высокой пропускной способностью отличаются ограничители движения, которые могут производить подъем стрелы около 1200 раз в день. Они применяются на парковках, размещенных рядом с вокзалами, крупными торговыми центрами, в аэропортах и т. д. Такие устройства отличаются возможностью беспрерывной работы и обеспечивают до 100% пропуска.
Конструкция шлагбаумов делает их простыми в обслуживании. Компактность и скорость выполнения функций позволила постепенно отказаться от применения ворот, которые ранее использовались повсюду.
Особенности и преимущества
Ручной механический шлагбаум – один из самых простых и экономных средств регулирования движения и ограждения частной территории. Подобная конструкция, отличается лёгкостью монтажа и использования. По сравнению с автоматическим шлагбаумом, ручной имеет очень много преимуществ:
- максимально незамысловатая конструкция, которая не содержит мелких деталей и обеспечивает надёжность;
- для создания стрелы можно использовать практически любой материал;
- такое устройство можно устанавливать в любом месте, вне зависимости от наличия электричества и источника питания;
- строительство и управление шлагбаумом не требует особых навыков;
- механизм ручного шлагбаума исправно работает при любой температуре окружающей среды;
- стрелу можно оборудовать замком и фиксировать её положение на длительное время.
Управление
Виды шлагбаумов отличаются способом открывания/закрывания. Ручное (механическое) управление подходит для участков, не оборудованных электрической линией. Оно не очень удобно, хотя надежно.
Дистанционно управлять шлагбаумом, не считая постоянного поста с охранником, можно такими способами:
- ключом-выключателем, открывающим замковое устройство установленной возле шлагбаума стойки;
- магнитной картой, действующей аналогично ключу, причем считывающее устройство находится на стойке перед въездом таким образом, чтобы водителю приходилось выходить из машины;
- кодовой клавиатурой, закрепленной на стойке;
- радиопультом;
- считыванием автомобильных номеров.
Автоматический шлагбаум фиксирует проезд автомобиля фотоэлементами, после чего опускается стрела. Каждый из перечисленных способов имеет свои достоинства и недостатки. Так, пульт неуместен при большом количестве пользователей, при применении магнитной карточки приходится вплотную подъезжать к устройству и открывать окно в машине, а считыватель номеров с трудом распознает их, когда идет дождь.
Удобно и комфортно управление шлагбаумом при помощи мобильного телефона. Звонок на номер устройства фиксирует сигнал, сверяет данные с внутренним списком и при совпадении дает команду на открытие.
В каждой модели предусмотрена возможность поднять шлагбаум, работающий на электричестве, если оно пропадет.
Установить шлагбаум самостоятельно совсем не сложно – это по силам практически всем! А с нашей инструкцией вы справитесь быстро и без лишних затрат.
1) Подготовка фундамента
Для подготовки такого постамента вам нужно выкопать (вырезать в асфальте) яму размером примерно 600*500 мм и глубиной 400 – 500 мм.
В нее устанавливается специальная металлическая закладная с заранее подготовленными загнутыми шпильками на 12 и заливается бетоном (с щебнем и песком в сочетании 1/3).
Для изготовления подходящих шпилек вам понадобится одна порезанная на отрезки, эти отрезки нам нужно будет согнуть для более надежного крепежа в бетоне.
Очень желательно, что бы такая пластина была выставлена ровно по уровню для простой последующей установки. Что бы фундамент получился аккуратным и не рассыпался по краям, можно сварить опалубку из стального уголка (50*50 ).
Аналогично шлагбауму готовят фундамент для подставки под стрелу. Этот фундамент может быть меньше (300*300) и не таким надежным.
Закладная обычно выстаивается около недели. После того как бетон выстоялся можно приступать к установке. 2) Электропроводка Вместе с подготовкой фундаментов, будет не лишним, позаботится о проводах. Рекомендуется прокладывать их в водопроводных шлангах с заранее заведенной стальной проволокой (или сразу с проводами, хотя в таком случае есть риск воровства).
1 – стойка (тумба) 2 – плата управления 3 – стрела 4 – светоотражающие наклейки 5 – сигнальная лампа 6 – стойка под фотоэлементы 7 – фотоэлементы 8 – стока под кнопку-ключ 9 – кнопка ключ
Как вы уже догадались, не все элементы из этой схемы обязательны. Например, мало кто использует стойки, а фотоэлементы крепят на тумбу шлагбаума и на подставку для стрелы. Лампу можно установить сверху на тумбу, так удобнее и ее хорошо видно. 3) Установка шлагбаума и подставки под стрелу После того как мы подготовили фундамент можно устанавливать стойку (тумбу). Это делается очень просто – к шпилькам при помощи металлических пластин устанавливается стойка.
При этом проверяем все плоскости по уровню (по необходимости регулируем).
После того как мы выставили по уровню можно надежно зажимать гайками к шпилькам.
Поставку под стрелу устанавливают на заранее забетонированную площадку на анкера.
Для этого сначала высверливают отверстия в бетоне, а потом забивают заранее купленные 4 анкерных болта. Те болты, которые идут в комплекте лучше не использовать, они не из самых надежных 4) Регулировка стрелы.
Правильно отрегулированная стрела должна оставаться в заданном положении в трех точках – в нижнем (горизонтально), под углом в 45 градусов и в верхней точке поднятии стрелы (вертикально). При этом стрела не должна падать или подниматься.
Регулировка стрелы в китайский моделях 306, 806 производится крайне редко, так как они уже настроены на заводе. Если вам все же понадобилось подрегулировать стрелу – это очень просто сделать. Для этого вам понадобится два ключа на 14. Если в положении под углом 45 градусов стрела поднимается, значит нужно немного ослабить пружины.
Если опускается немного подтянуть.
5) Регулировка концевых выключателей. Такая регулировка нужна крайне редко, если вам не подходят настройки которые установлены на заводе: Горизонтально (стрела опущена), вертикально (стрела поднята).
Когда может понадобиться такая регулировка – если сверху над стойкой находится карниз или другое препятствие. Что бы стрела, не ударялась в него, один из концевиков передвигают так, что бы стрела немного не доходила до препятствия. Электроподключение и настройка.
Электроподключение очень простое и покажется легким даже для не специалистов.
Плата настолько проста, что удивительно, почему все не настраивают сами…
Питание – к клеммам L и N.
В принципе теперь можно подытожить, у вас абсолютно рабочий проезд и закрытая территория. Остальные детали будут интересны для тех, кто захочет, подключить фотоэлементы, подключить кнопку, сигнальную лампу, прописать большое количество пультов.
Если вы хотите установить кнопку на пост охраны или других нужд, то нужно будет провести двухжильный провод сечением 0,5 – 1.
Кнопка подключается к контактам GND – Push
На встроенный приемник в плату управления можно записать максимально около 22-24 пультов. Если вам нужно использовать большее количество брелков, то вам понадобится внешний приемник на 124 пульта.
Подключение внешнего приемника:
Мы надеемся, что наша инструкция будет вам полезна, и вы установите шлагбаум сами, качественно и без особых трудностей.

Как изготовить шлагбаум для дома своими руками?
Вы уже знаете, что только два вида материала может использоваться для реализации такой идеи. Каждый имеет свои отличия, которые отражаются на подготовительном этапе нарезки деталей и на процессе сборки.
Особенности металлической поворотной системы
- Для перекрытия большого пролета установите металлический поворотный шлагбаум, со стрелой в виде фермы.
- На ней закрепите поворотный механизм.
- Для устойчивости стрелу оформите из трубы с прямоугольным сечением.
- Стойку сделайте из трубы 200*100 либо 200*200 мм.

Особенности деревянного подъемного механизма
- Чтобы добиться максимальной прочности и надежности, делайте его с двойной стрелой.
- Усильте подъемный механизм, зафиксировав его прочными втулками и болтами с гайками из стали.
- Оптимальная длина стрелы — расстояние между опорами + 100 см.
- Основу-тумбу выполните из большого бруса со стороной более 100 мм и высотой более 1,5м. Для устойчивости продумайте ее заглубление в почву на 40 см, а поворотной механизм крепите ниже верхней части на 10 см.
- Стрелу оформите из двух досок одинаковой длины. Закрепите их друг к другу деревянными втулками через каждые 70 см.

Технология установки
Этапы установки одинаковы для любого механического шлагбаума, но все же у деревянного и металлического шлагбаумов процесс работы несколько отличается.
Чтобы правильно установить шлагбаум своими руками, ознакомьтесь с инструкцией:
- Подготовьте место установки:
- забетонируйте площадку с подходящей глубиной при использовании металла;
- выкопайте глубокую яму при установке деревянного шлагбаума.
- Подготовьте предварительно все детали для повышения прочностных характеристик:
- покрасьте все металлические части и дайте им высохнуть;
- обработайте антисептиком древесные элементы.
- Установите и зафиксируйте опоры:
- металлический шлагбаум крепите к полностью застывшему бетону анкерными болтами;
- деревянный шлагбаум вкапывайте в подготовленную яму. Для большей устойчивости присыпьте его щебнем и утрамбуйте вместе с грунтом.
- Установите осевой механизм и смонтируйте стрелу по правилам, указанным выше под конкретный тип механизма.
- Закрепите противовес в том месте, где стрела выходит за основание на 40-70 см.
- Проверьте, правильно ли работает шлагбаум и прочны ли все соединения.

Строим улей своими руками
Если вы не хотите тратить бешеные деньги на магазинный улей, в интернете есть множество видео, где показаны различные способы изготовления ульев своими руками со всеми чертежами и необходимыми размерами.












Пошаговая инструкция по построению пчелиного домика на 16 рамок Дадана:
- 1 шаг. Пилим заготовки для внутреннего корпуса.
- 2 шаг. Делаем пропилы для соединения боковин. Подгоняем боковины друг к другу. Скрепляем боковины внутреннего корпуса.
- 3 шаг. Делаем вставки для наращивания высоты боковин и наращиваем их до нужной высоты.
- 6 шаг. Делаем ножки для нашего улья. Прибиваем ножки к внутреннему корпусу.
- 7 шаг. Подготавливаем заготовки для днища улья, аккуратно прибиваем 1-ый ряд досок. Отрезаем прослойку из рубероида. Скрепляем 1-ый и 2-ой ряд досок. Тем самым, днище улья готово.
- 8 шаг. Прикрепляем заднюю стенку корпуса.
- 9 шаг. Вырезаем коридор для летка. Вырезаем леток в наружной стенке.
- 10 шаг. Заколачиваем переднюю и боковую стенки.
- 11 шаг. Делаем упор для крыши. Пилим заготовки на крышу. Подгоняем и сколачиваем их.
- 12 шаг. Далее, изготавливаем магазины и подрамник.
- 13 шаг. Обжигаем корпус улья изнутри и снаружи.
- 14 шаг. Окрашиваем улей и обиваем крышу. Корпус улья готов.
- 15 шаг. Остались маленькие детали. Прикручиваем ручки для переноски.
- 16 шаг. Боковины заливаем монтажной пеной и «запечатываем» верх
- 18 шаг. Прикручиваем сетку вентиляции, крепим задвижку.
- 19 шаг. Покрываем крышу оцинкованной жестью.
- 20 шаг. Сверлим верхний леток. Прикручиваем летковый заградитель.
- 21 шаг. Прикручиваем прилетную доску и летковую задвижку.
- 22 шаг. Улей готов к применению.

Примерно по такой же методике можно сооружать ульи на 14-ть и 16-ть рамок. Они очень надежные, пчелам в них очень комфортно. Единственный недостаток подобных моделей – вес.







Области применения
Ограничительные приспособления встречаются на территории таких объектов:
- многоквартирных зданий;
- стоянок автомобилей;
- дачных поселков;
- запрещенные для въезда территории;
- заповедники;
- частные владения и т. д.
Мнение специалиста
Самостоятельный монтаж шлагбаума – достаточно непростая задача, требующая немало времени и усилий. Особенно это касается автоматического варианта, которому требуется специальная настройка и подключение – велик риск подключить его неправильно. Поэтому, если есть возможность, лучше всего будет доверить эту задачу специалистам.
Константин Котовский
Выбор варианта конструкции
Шлагбаум может быть вертикальным (подъемным) или горизонтальным (поворотным). Двумя основными частями, независимо от варианта конструкции, являются тумба (или стойка) и стрела – собственно, та часть механизма, которая и перегораживает проезд.
Чтобы изготовить ворота из профлиста своими руками не потребуется обладать какими-либо специфическими навыками работ.
В этой статье вы найдете много полезной информации о секционных гаражных воротах Alutech.
Поворотная модель
Горизонтальное открытие стрелы обязательно требует дополнительного свободного места с той стороны, куда осуществляется поворот. Но нет никаких ограничений места над конструкцией.
Такой вариант не сложнее в исполнении, а иногда даже проще. И часто гораздо удобнее во время эксплуатации.
Стрелу не нужно поддерживать с помощью специальных блокирующих устройств в открытом состоянии, поэтому даже без посторонней помощи, в одиночку, водитель сможет освободить проезд и закрыть его за собой.
Подъемная модель
Вертикальный шлагбаум подразумевает открытие стрелы вверх. Это актуально, если ограничено свободное пространство перед устройством.
Если не предполагается, что шлагбаум будет постоянно обслуживаться находящимся в непосредственной близости работником, желательно обеспечить механизм фиксации его в положении «открыто».
Здесь возможно использование множества версий: простая защелка, шпингалет, зацеп для противовеса. Подойдет любой удобный и надежный вариант.
В обоих случаях, если длина стрелы более 4 м, нужно, кроме двух основных частей, устанавливать еще и улавливатель – стойку, которая снимет большую часть нагрузки с осевого механизма, когда установлено положение «закрыто».
На улавливателе удобно крепить замок. Проезд таким образом можно временно надежно закрыть, если он в какой-то период не используется.
Откатная модель
Третьим вариантом может быть откатный шлагбаум, конструкция которого представляет собой стойку с движущейся по направляющим перпендикулярно дороге стрелой. По принципу работы такой механизм напоминает откатные ворота.
Но этот вариант не стоит рассматривать подробно ввиду сложности всего устройства, непосредственно его монтажа и повышенной стоимости из-за большого количества используемого металла.
Автоматические шлагбаумы, марки CAME GARD
Этот вид шлагбаума был сконструирован итальянской фирмой CAME. Он стал самым ярким представителем этого типа.

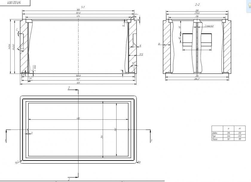
Чертеж устройства шлагбаумов марки САМЕ GARD
Шлагбаум GARD обычно монтируется в тех местах, где ширина проезда, не превышает 4 метра. Этот тип шлагбаума изготавливается двух типов, зависящих от положения стрелы — правосторонний и левосторонний. GARD имеет несколько моторов, которые могут работать от разных источников питания.
Если внезапно произойдёт отключение подачи электроэнергии, стрелой шлагбаума можно управлять вручную, причём не нужно будет открывать корпус, так как разблокировочный механизм расположен снаружи. Шлагбаум Gard оснащается стрелой разного сечения. Она может быть круглой или прямоугольной. Такая стрела чаще всего устанавливается в тех районах, где постоянно дуют сильные ветра.

Пример шлагбаума came gard круглой формы
Шлагбаум GARD оборудован электромеханическим приводом, благодаря которому шлагбаум может эксплуатироваться при особо низких температурах. Его корпус, толщиной два миллиметра, изготовлен из стали, подвергшейся гальваническому анодированию. В некоторых случаях GARD оснащается корпусом, изготовленным из нержавейки. Это спасает его от появления коррозии. Он может противостоять дождю, снегу и туману. Такой шлагбаум, отлично подходит для российского климата, где перепад температуры в течение одного года очень велики.






