Оглавление
Основные правила электромонтажа
Прежде всего, их необходимо знать, чтобы иметь возможность самостоятельно выполнять монтажные и ремонтные работы, а так же контролировать ход монтажа, выполняемого малограмотными специалистами.
Главные требования
Построив деревянный дом проводка его должна отвечать следующим основным требованиям:
- Технические характеристики кабелей и электрооборудования должны соответствовать потребляемой мощности приборов каждой отдельно взятой группы.
- Эксплуатировать следующие элементы: выключатели, розетки, приборы аварийного отключения нужно с учетом возложенной на них нагрузки.
- Использовать кабели, провода, клеммные соединения при их регулярном нагреве запрещено.
А так как мы рассматриваем электропроводку именно в деревянном доме, то эта тема особенно актуальна из-за разночтений в толковании ПУЭ (Правила Устройства Электроустановок) и СП (Свода Правил). Чтобы не возникло путаницы, в данной статье мы ответим на следующие вопросы:
- В чём заключаются базовые принципы монтажа электропроводки в деревянном доме.
- Как монтируется электропроводка в деревянном доме в соответствии с правилами ПУЭ и СП.
- Технические особенности монтажа скрытой электропроводки.
Правильная электропроводка в деревянном доме
Испокон веков дерево — это общестроительный материал. Из дерева строят и небольшие гостевые домики, и коттеджи большой площади. Есть распространённое мнение, что при множестве достоинств бревенчатых домов, основу которых составляют деревянные стойки, эти строения обладают повышенной пожароопасностью. Но это не совсем так.
Независимо от материала, из которого построен дом — кирпич, газобетон, брус или оцилиндрованное бревно, первой загорается мягкая мебель, шторы, занавески, предметы интерьера, бытовая техника. То есть всё, что сделано из сгораемых материалов.
Монтаж электропроводки в каменном доме
В каменном доме электропроводка, идущая от распределительного щита к потребителям, монтируется в несгораемом материале (кабель закладывается в штробы, которые затем заделываются и штукатурятся и т.д.).
Электропроводка открытого типа в деревянном доме
В этом случае застройщику приходится выбирать между наружной проводкой и внутренней, то есть внутрь деревянных стен или между стоек каркаса.
Как проложить кабель в деревянном доме
Рассмотрим случаи, изображенные на картинках выше. В первом случае электропроводка размещается на виду, благодаря чему легко обнаружить любую внештатную ситуацию (короткое замыкание и т.п.), то во втором варианте она спрятана за облицовкой или в деревянном массиве. Соответственно, мы не видим того, что происходит с кабелем. Это вызывает волнение как застройщика, так и самих хозяев — вдруг что-то случится с проводкой и этого не будет видно?
На самом деле, самым «слабым» местом в электросети является не сам кабель (если он не поврежден и с нормальным сечением), а те места, где проходят соединения: распаечные коробки, розетки, выключатели и прочее.
Слабые места электропроводки — места соединения
ПУЭ и СП: нормативы и правила монтажа электропроводки в деревянных и каркасных домах
Такой вариант, как наружный монтаж электропроводки в кабель-каналах дело затратное, подходит далеко не всем и по дизайну, и по финансовой составляющей .
Наружная проводка подходит не под все стили интерьера.
Поэтому, для владельцев деревянных срубов главная задача – смонтировать скрытую электропроводку безопасным и регламентируемым способом.
Перечень инструментов и расходников
Для работы потребуются:
- Перфоратор и оснастка для него: бур, коронка и лопатка.
- Штроборез или болгарка с алмазными дисками.
- Указатель фазы (индикаторная отвертка).
- Мультиметр.
- Кусачки.
- Плоскогубцы.
- Инструмент для удаления изоляции.
- Плоская и крестовая отвертки.
- Молоток и зубило.
- Кельма, емкость для замешивания раствора (заделки штроб).
- Рулетка.
- Детектор скрытой проводки.

В ходе работ используются такие материалы и изделия:
- Гофра.
- Стальная труба. Нужна для изготовления гильз, устанавливаемых в местах прохода проводов сквозь строительные конструкции.
- Дюбель-хомуты для крепления кабелей.
- Новые розетки, рассчитанные на ток в 10 или 16 А, выключатели.
- Соединительные элементы: самоизолирующие зажимы (СИЗ), опрессовочные гильзы, клеммы Wago или болты с гайками.
Как сделать проводку в доме своими руками
Перед началом работ ознакомьтесь с Правилами устройств электроустановок (ПУЭ), где прописаны основы работы с оборудованием.
- Электропроводка в доме, выполняемая самостоятельно, требует соблюдения следующих условий:
- необходим свободный доступ к учетному оборудованию, распредкоробам, розеткам и выключателям.
- монтируются они на уровне 60-150см от пола; открывающиеся двери не должны закрывать доступ.
- кабель подводят сверху;
- Высота установки розеток варьируется от 50 до 80 сантиметров от пола. По технике безопасности нельзя их ставить меньше, чем 50 сантиметров от электрических и газовых плит, отопительных радиаторов, труб.
- Подводка питания осуществляется снизу.
- Количество розеток определяется из расчета 1 штука на 6 кв.м. К кухне это правило не относится, здесь ставят розетки по числу бытовой техники.
- Для питания ванной комнаты лучше предусмотреть отдельный трансформатор, находящийся вне этого помещения (для понижения напряжения).
- кабель прокладывается со строгим соблюдением вертикали и горизонтали (без изгибов и диагоналей, чтобы при монтаже и перфорации не повредить его).
- горизонтальные укладываются на расстоянии 5-10 сантиметров от перекрытий и карнизов и 15 см от потолка и пола. Вертикально расположенные кабеля укладываются не меньше 10 см от края дверного или оконного проема.
- Расстояние до газовых труб не должно быть меньше 40 сантиметров;
- Проводка не должна соприкасаться со строительными конструкциями из металла.
- применяются специальные короба для разводки и соединения кабелей. Соединения должны быть надежно заизолированы. Запрещено соединять медные провода с алюминиевыми.
Обзор схем электропроводки для жилых помещений
Существует несколько стандартных чертежей, применяемых для разводки электрической сети квартиры или дома. Места установки комплектующих выбирают произвольно, однако есть рекомендации, касающиеся высоты монтажа.
Однокомнатное жилье или студия
Количество потребителей в однокомнатной квартире минимально, однако это не значит, что укладывать проводку проще. Простая схема включает отдельные линии для комнаты, кухни и санузла. На каждое помещение приходится по 1 светильнику. При необходимости разделения пространства предусматривают несколько осветительных приборов. Перед укладкой проводов нужно:
- выбрать устройство защитного отключения (УЗО), рассчитать параметры сети;
- определить нагрузку и сечение проводов;
- составить схему подсоединения приборов.
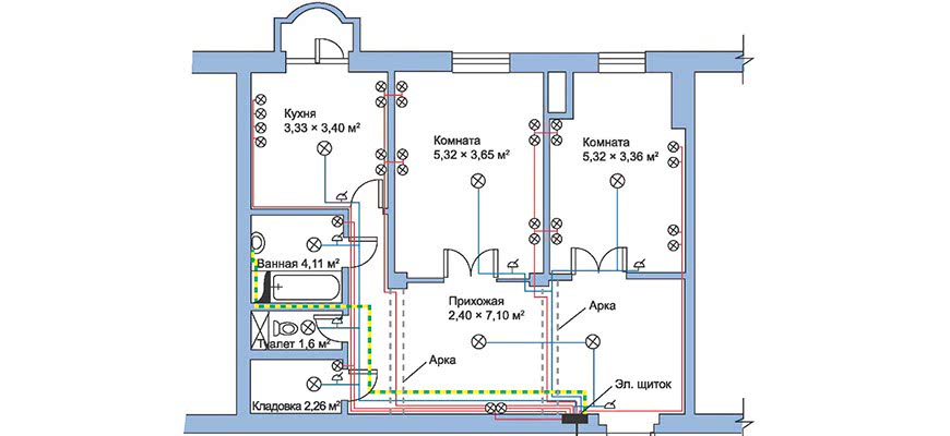
Схема электропроводки для однокомнатного жилья.
Трехкомнатная квартира
Разделение электрической цепи в трехкомнатной квартире выполняется по функциональному принципу. При этом учитывают такие рекомендации:
- Сеть розеток делят на группы с учетом числа комнат. Тот же принцип используют при разветвлении осветительной линии.
- Кухонную сеть снабжают отдельным автоматом. Она делится на линии для освещения и бытовых приборов.
- Электрическую цепь санузла разветвляют с учетом числа помещений.
- Отдельную ветку обустраивают для охранных и противопожарных систем. Она должна функционировать отдельно от остальных групп.
Схема электропроводки для трехкомнатной квартиры.
План электрики на даче
Для электроснабжения летнего дома подойдет простая однолинейная цепь. Однако при укладке проводки учитывают такие особенности:
- Линии электропередач, находящиеся вблизи дачных поселков, не рассчитаны на высокую нагрузку. Подключение мощных потребителей приводит к перепадам напряжения. Поэтому схему дополняют стабилизаторами и автоматическими выключателями.
- Дачи не используются в зимнее время. В этом период контакты и провода окисляются, выходят из строя. Поэтому кабели укладывают открытым способом, дающим доступ для быстрого ремонта.
Схема электропроводки на даче.
Электроснабжение в частном доме
В этом случае схема составляется так же, как для квартиры. Однако при выборе способа укладки учитывают материал изготовления стен и потолка. Для отопительного оборудования укладывают отдельную силовую линию. При расчете нагрузки учитывают мощность устройств, работающих на придомовой территории.
Схема электропроводки в частном доме.
Какой тип проводки выбрать скрытую или открытую?
Выбирая тип электропроводки для своего дома, следует обратить внимание на сырье, из которого выстроен дом. Например, деревянные стены и потолки, требуют исключительно открытой проводки, которая скрывается специальными коробами и кабельканалами
Для домов из кирпича и каменного блока, может применяться как открытая, так и , однако в обеих случаях должен иметься доступ для ремонта, если образовались неполадки либо при подсоединении новых элементов к основной сети. Учитывайте и сечение кабелей, так как соблюдение нагрузки электричества и параметров проводов обязательно.

Разводка электропроводки с установленными автоматами
РАСЧЕТ СЕЧЕНИЯ КАБЕЛЕЙ
Зачем производить расчет сечения кабелей?
С одной стороны, если взять кабель недостаточной площади сечения, то при подключении мощного электрооборудования он гарантировано перегреется и станет причиной пожара. С другой стороны, стоимость кабельной продукции напрямую зависит от количества используемого металла – толщины проводника.
Подбор сечения производится по таблицам ПУЭ по суммарной мощности или номинальной силе тока.
Расчет по силе тока более точный, так как учитывает больше факторов.
Производится по формуле: I=(P×K)/(U×cosφ), где
- P – суммарная потребляемая мощность (Вт);
- K = 0,75, коэффициент одновременного использования электрооборудования;
- U – 220 Вольт;
- cosφ для бытового электрооборудования принимается за 1.
По правилам следует принимать во внимание длину кабеля и способ прокладки – в гофре, под слоем штукатурки, открытым способом. Однако на практике распределительный электро щиток квартиры находится на столь близком расстоянии от кухни, что величиной потерь напряжения можно пренебречь.. Чаще всего электрики используют следующие типы проводов для подключения различных групп электроприборов:
Чаще всего электрики используют следующие типы проводов для подключения различных групп электроприборов:
- 3×1,5мм2 – для освещения, суммарной мощностью не более 4 кВт. Номинал защитного автомата 10А (2,3кВт);
- 3×2,5 мм2 – для розеток маломощного потребления, суммарно до 5,9 кВт. Номинал защитного автомата 16А (3,6кВт);
- 3×6 мм2 – для мощных приборов потребления (бойлер, электроплита) с максимальным показателем 10 кВт; Номинал защитного автомата 32А (7,3кВт).
РАЗРАБОТКА СХЕМЫ ПОДКЛЮЧЕНИЯ
Создавая индивидуальную схему разводки и расположения розеток и выключателей, необходимо руководствоваться правилами разделения линий электроснабжения:
- осветительная;
- для обогрева (теплый пол);
- розеточный блок для маломощного, периодически использующегося оборудования (миксер, кухонный комбайн, тостер и т.п.). Как правило, располагается на высоте 1-1,2 м, врезается в кухонный фартук;
- розеточный блок для маломощного постоянно использующегося оборудования (вытяжка, холодильник). Могут быть использованы двойные розетки, расположенные в труднодоступном месте;
- отдельные ветви для подключения мощной бытовой техники.
Способы размещения проводки
В деревянных сооружениях проводка может быть сделана открытым или закрытым способом. Под этим понимается внешний вид электропроводки. Проводку можно прокладывать в плинтусах с кабель каналом, коробах, трубах ПВХ и металлических.
Наиболее безопасным считается открытая электропроводка. Она же потребует и меньших вложений. Провода протягиваются по поверхности стен и потолка. Часто их прячут в короба из самозатухающих материалов или оформляют в виде ретро (кабель переплетают косичкой).
Сегодня короба представлены в различных размерах и расцветках, которые легко подобрать под интерьер комнат. Лучше остановить свой выбор на коробах с толстыми стенками и одним замком. Они послужат дольше, чем короба с двумя фиксаторами. Короб, крышка которого легко снимается, крепится саморезами через каждые полметра. При таком способе прокладки используются розетки и выключатели, навешивающиеся на стену. Кабель укладывается в короб с запасом, если позволяет место.
Скрытая проводка более затратная и её установка желательно должна быть продумана ещё на этапе строительства дома. Большинство из-за эстетических соображений выбирают именно её. При таком виде работ кабели укладываются в металлические трубы. Идеальными считаются медные трубы. Они дороже стальных, но с ними легче работать. Полностью нужно исключить давление и механическое воздействие на кабель. Следует учитывать, что это может произойти, так как деревянный дом со временем дает усадку. Протяжка проводов сквозь деревянные стены делается только через металлические трубы (проходные гильзы). Гофрированные трубы не подходят, так как легко повреждаются. Стены просверливаются, и гильзы в отверстия вставляются так, чтобы их края немного выступали над стеной. На гильзы надеваются пластиковые насадки, они защищают провода от повреждений. Затем выступающие концы гильзы помещают в короба.
Диаметр труб для кабелей выбирается с учетом, что после протаскивания проводов в нём должно остаться место ещё на столько же.
[ot-video type=»youtube» url=»https://www.youtube.com/watch?v=K2NxVMMwf9o&feature»]
Важно! Гильзы из металла помешают возгоранию при замыкании
При любом виде монтажа проводки ряд работ проводятся одинаково
- Рекомендуется начинать протяжку от розеток до щитка, используя провод с сечением 2,5. Провод с сечением 1,5 протягивается от выключателей и осветительных приборов к распределительным коробкам.
- Для скручивания проводов в коробках сначала необходимо срезать слой изоляции на 0,8 см и зачистить жилы. Жилы скручиваются друг с другом и изолируются или зажимами или изолентой. Лучше скручивать пассатижами, так более надёжен будет контакт.
- При установке розеток и выключателей в деревянном доме следует думать о пожаробезопасности. Поэтому обязательно на месте где будут они размещаться, устанавливают металлические пластины. На глазомер лучше не полагаться при такой работе, лучше воспользоваться уровнем.
- Розетки монтируются на небольшом расстоянии от приборов, которые будут к ним подключены. На кухне делаются розетки для каждого вида бытовой техники.
- В каждой комнате устанавливается минимум одна распаячная коробка. Но и много их быть не должно. Ведь каждая коробка это нарушение целостности цепи. Коробки должны быть легкодоступными.
- Свести к минимуму количество поворотов и изгибов кабеля.
Важно! Скрывать распределительные коробки нельзя
Трёхфазный ток и схема электропроводки
Особенность его в том, что его напряжение находится между нулевым и фазным проводом (220 Вольт). Значит, его можно применять для однофазной проводки. Напряжение между парой соседних фаз будет уже 380 Вольт из-за сдвига на треть. Это позволяет сделать передачу безопасной и сэкономить на кабелях.
Трансформаторы для трёхфазного тока меньше других и при передаче от магистральной 1000-вольтной сети к местной 380-вольтной только они и пригодятся.
Трёхфазные жилы имеют цветовую маркировку. Базовые жёлтый, зелёный и красный для первой, второй и третьей фазы. Синий – для нулевой. С желтыми и зелеными полосками – это заземление.

Схема электропроводки на даче здесь может быть смешанной. Напряжение в 380 Вольт нужно для больших приборов, например нагревателей, а 220 Вольт – для бытовых и освещения. Иногда нужны все провода, но не в однофазных приборах. Поэтому мощность нужно будет выбрать. Если у приборов она большая, то и понадобится несколько фаз. На каждую потребуется хотя бы один автомат. С него передастся мощность на сеть.
Подбор мощности лучше всего производить ещё до подключения трёхфазных приборов, таких как станки, насосы, двигатели и другие. Если одна из частей выйдет из строя, то однофазная сеть будет продолжать работать, когда сработает трёхфазный автомат защиты. Дополнительно рекомендуется установить автомат перед входом.
Проводка в бане
Вопрос, как сделать проводку в бане своими руками, еще более сложен. К тому, как провести проводку в бане применяются рекомендации и по проведению электричества в деревянные дома и по проведению электричества в ванную комнату.
Монтаж проводки осложняется тем, что кроме сгораемого основания и влаги, присутствует еще и сильный тепловой фактор. Следует помнить, что над печкой вести проводку нельзя. Провод выбирается негорючий и термостойкий.
Как и в ванной, электроустановочные изделия нельзя устанавливать непосредственно в парной. Распределительные коробки, розетки и выключатели с высокой степенью защиты монтируются в предбаннике. Светильник для парилки должен быть не ниже IP-44 по степени защиты. Можно установить низковольтные светильники, соответственно с понижающим трансформатором.
Фото 2 — Подходящий светильник для бани — стеклянная крышка, металлическое основание
Выбор фурнитуры
Чтобы электропроводка в квартире своими руками прослужила не один год без нареканий и сбоев, следует взвешенно подойти к выбору фурнитуры. Она должна соответствовать требованиям норм. Правильно подобранная толщина изоляции кабеля, его сечение обеспечат долговечность и безопасность электросети. Розетки и выключатели должны не только соответствовать стилю квартиры, но и обеспечивать безаварийную службу бытовых приборов.
Чтобы подобрать сечение жилы, потребуется узнать силу тока. С этой целью складывают мощности всех приборов, которые предполагается установить в доме. Затем найденное значение делят на напряжение. По таблицам подбирают сечение, учитывая способ прокладки. Чтобы определить длину сети, рекомендуется схематично показать ее на плане квартиры. Полученный результат увеличивают на 3-4 м.
Второй важный вопрос, который приходится решать при монтаже электропроводки в доме своими руками, заключается в выборе материала токопроводящей жилы. Это может быть медь или алюминий. Раньше для проводки использовали только алюминий. Этот металл мягкий, хорошо гнется, недорогой. Его минус: со временем окисляется, образуя на поверхности пленку с низкой токопроводимостью. За счет этого повышается сопротивление, область контакта начинает греться. После нескольких сгибаний алюминий попросту ломается. Физические характеристики меди намного лучше, что делает ее лидером при обустройстве внутридомовых сетей.
Розетки и выключатели
Основными элементами электросети являются розетки и выключатели. На них возложена двойная функция: обеспечить надежное подключение электроприборов, гармонично вписаться в интерьер
Поэтому при выборе обращают внимание на технические характеристики и дизайн. Собираясь за покупкой в магазин, необходимо ответить на несколько вопросов:
- Тип проводки. Конструкция накладных и внутренних элементов кардинально отличается, что принципиально влияет на выбор.
- Заземление. Если электропроводка в частном доме своими руками выполнена с заземляющим контуром, то стоит приобрести евророзетки, предусматривающие подключение защитного провода.
- Рабочие характеристики. Для домов и квартир подойдут розетки, рассчитанные на силу тока 10, 16 А.
- Количество. Нормы рекомендуют брать 1 розетку на каждые 6 метров квадратных площади. На практике их число можно увеличить, исходя из реального числа приборов.
- Влагозащищенность. Для ванной, чердака, подвала потребуется фурнитура, защищенная от влажности. Уровень защиты обозначен IP.
Для жилых помещений достаточно IP20, при повышенной влажности – IP44, на улице – от IP65.
Промышленность предлагает огромное разнообразие розеток: с заземлением, защитными шторками или крышками, таймером отключения. Для удобства можно приобрести панель с возможностью одновременного включения нескольких потребителей.
Не менее широк ассортимент выключателей. Популярностью пользуются клавишные модели. Их выпускают с одной, двумя и более клавишами для возможности комфортного управления источником света, с подсветкой, позволяющей без проблем передвигаться в темноте. Многие потребители успели оценить удобство проходных моделей, позволяющих включать и выключать свет с разных мест. Чтобы регулировать яркость освещения, пользуются диммерами. Правда, они подойдут только для галогенных или обычных ламп накаливания.
Как грамотно подобрать выключатели и розетки
Как избежать нарушений и ошибок
На самом деле, это несложно. Есть свод основных правил, соблюдая которые, проводка в квартире легко прокладывается хоть по потолку, хоть по стенам, безо всяких сложностей и проблем.
Прежде всего, следует понять, что прокладывать все электротехнические составляющие в запотолочном пространстве следует в соответствии с требованиями к прокладке наружной проводки. Это значит, что все токопроводящие элементы системы должны быть уложены в специальную гофру из пластика или металлический короб. При этом, крепление проводки к потолку очень удобно осуществлять при помощи специальных монтажных клипс.

Еще до начала монтажа, необходимо составить подробный план размещения всех потребителей, которые будут подключены к этой проводке. В соответствии с этим планом, на каждую группу потребления электричества необходимо запланировать одну распределительную коробку.
На потолке нужно наметить все места, где такие коробки будут располагаться. Весь монтаж стоит начинать именно с установки распределительных коробов. От них, в гофре, прокладываются кабели, подводящие ток к светильникам и прочим потребителям электроэнергии. Все каналы или гофры, расположенные на потолке, должны проходить параллельно друг другу. Это упростит обслуживание в дальнейшем. Пересекаться провода не должны. В местах соединений нескольких линий, необходимо смонтировать распаечную коробку.

В ванных, кухнях и других помещениях с высоким содержанием влаги в воздухе, необходимо применять специальные распаечные коробки, которые дают достаточную защиту от воздействия влаги. То же самое относится и к гофротрубе, в которой будут уложены провода – она должна защищать уложенные кабели от воды.
Отдельного упоминания стоит монтаж электрических проводов с использованием скрытого метода. В этом случае, кабели укладываются в специально пробитый в перекрытии канал. Здесь необходимо соблюдать требования по безопасности, предъявляемые к скрытой проводке.

Лучше всего, скрытый тип проводки применять в кухнях, ванных и прочих влажных местах. Так будет намного безопаснее. Однако, даже при монтаже скрытым способом, необходимо использовать кабель каналы или гофрированные пластиковые трубки.
Учитывая, что после скрытого монтажа будет затруднен доступ ко всем составляющим системы, нужно заранее продумать и рассчитать нагрузку потребителей и подобрать соответствующее сечение проводов.
Укладка кабеля
Укладывать кабель по полу не сложно, достаточно прихватить его к полу любым способом, чтобы он не всплывал когда будут делать стяжку. Обычно укладывают кабель вдоль стен (на расстоянии 10-15 см от стены), чтобы потом точно знать где кабель идет.
Укладка кабеля в штробе также не представляет особой сложности. Закрепить кабель в штробе можно с помощью дюбель-хомутов или обычного алебастра (строительного гипса). Алебастр быстро застывает, поэтому его также удобно использовать для монтажа подрозетников. Но прежде чем мазать им штробы, необходимо удалить из них пыль и смочить водой.
Если кабель надежно закреплен в штробе и нигде не выпирает, штробы можно замазывать обычной штукатурной смесью это сэкономит кучу времени.
Прокладка проводки своими руками
Проводка в квартире укладывается скрытым методом. Для этого:
- Размечают стену по составленной ранее схеме. Указывают места расположения выключателей, розеток, светильников.
- Формируют каналы штроборезом. Укладывают провода, фиксируют их раствором.
- Устанавливают подрозетники. Монтируют все компоненты электрической сети.
- Заделывают штробы штукатуркой, сравнивая их с поверхностью.
При обшивке стен листовыми материалами штробление не требуется. Кабели остаются в пространстве между отделкой и стенами. В таком случае обязательно используют гофрированные рукава, которые хомутами прикрепляют к каркасу.





