Оглавление
Домик
Домик — любопытная форма дачного туалета, допускающая самые разнообразные дизайнерские изыски.В сравнении со всеми остальными вышеперечисленными формами домик представляется самым теплым и комфортным вариантом. К тому же он отличается повышенной прочностью, а затраты земли и материалов такие же, как при постройке менее теплого и комфортного скворечника.
6 чертежей дачного туалета типа «Домик»
Встречаются и такие чертежи. По этой схеме удалось собрать туалет всего за 7500 рублей. Как? Смотрите ход постройки и результат здесь
Также дачный туалет в зависимости от площади, им занимаемой, и особенностей постройки, может быть как одноместным, так и двухместным.
Пример двухместного туалета
Пристроенные к гаражу либо любому-другому зданию — более сложные туалетные конструкции, не столь часто востребованные дачниками.
На основании чертежей строим туалет на даче своими руками по типу «Шалаш»
Надземная конструкция «Шалаш» имеет более сложное строение, чем у «Скворечника». Но все труды, потраченные на ее строительство, оправдывают себя, ведь в конечном итоге вы получаете эффектный внешний вид туалета.
Многие дачники выполняют стилизацию такой конструкции под сказочный домик. Благодаря этому на участках можно встретить очень интересные варианты оформления. Для вдохновения можно использовать фото туалетов для дачи своими руками, которых немало в сети интернет.
Строительство такого объекта как «Шалаш» начинается с формирования выгребной ямы. Размерные параметры могут быть взяты из предыдущего типового проекта. В зоне размещения углов ямы следует сделать углубления. В них будут помещены бетонные блоки
Очень важно при этом соблюсти точную геометрию. Чтобы конструкция получилась прямоугольной, необходимо измерять расстояние между бетонными блоками
Не забывайте проверять основание по диагоналям. Они также требуют измерения и должны в конечном итоге получиться одинаковыми.

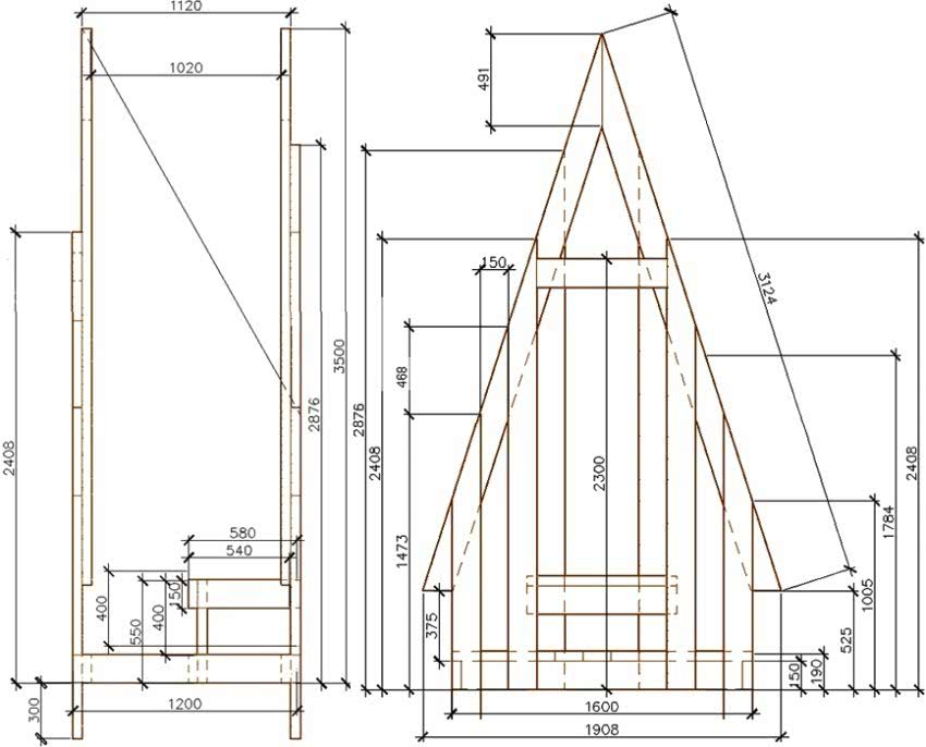
Туалет «Шалаш», рисунок 1: чертеж с размерами, вид сбоку и спереди
Согласно этой простой инструкции можно без проблем выполнить монтаж туалета на основании подготовленных чертежей.
Поэтапное строительство:
монтаж фундаментного основания на изолирующий от влаги материал. Достаточно воспользоваться рубероидом, который предназначен как раз для этих целей. Укладка материала осуществляется в несколько слоев. 2-3 прослоек будет достаточно;

Туалет «Шалаш», рисунок 2: передняя стенка
- сборка нижней части каркаса. Для этого используется брус с сечением 50х50 мм. Размер основания составляет 1х1 м. Заколачивание делается с помощью обрезных досок. Эта своеобразная опалубка покрывается настилом из половых досок;
- изготовление технологического отверстия. В днище выполняется прорезь любой понравившейся формы. Здесь действуют такие же размерные ограничения, как и в случае со «Скворечником»;
- обработка деревянного основания антисептическими средствами. Нужно со всех сторон нанести на поверхность основания антисептическое средство. При выполнении туалета своими руками руководствуйтесь инструкцией, чтобы удостовериться в том, что все выполняемые вами действия верны;
- сборка задней и передней частей каркаса. Для выполнения этого этапа используйте чертежи, которые у вас имеются, или эскизы. Подойдут даже фото, взятые из сети, если вы достаточно хорошо разбираетесь в размерах и обладаете навыками в обращении с древесиной.

Туалет «Шалаш», рисунок 3: задняя стенка
Заключительные этапы строительства «Шалаша»
На заключительных этапах строительства выполняется установка всех деталей и доработка каркаса. Дальнейшая работа выглядит следующим образом:
- отделка деталей «Шалаша». Задняя и передняя стенки с внутренней части отделываются вагонкой;
- монтаж передней и задней стенок. Эти детали устанавливаются на пол и скрепляются с помощью обрезков, оставшихся от работы с досками;
- монтаж деревянной обрешетки из досок. После изготовления этого элемента выполняется его обшивка;
- организация крыши. С помощью досок, длина которых должна быть не меньше 1,8 м выполняется кровля для «Шалаша». Для этого материал следует упереть на заднюю и переднюю части конструкции и зафиксировать его крепежными элементами на деревянных рейках. В результате получится крыша;
- укладка кровельного материала;

Туалет «Шалаш», рисунок 4: каркас, обшивка пола и помоста
- монтаж конька (элемент крыши). Коньковую часть кровли можно украсить фигуркой, выполненной из древесины. Она позволит создать единый стиль оформления;
- установка дверной конструкции. Перед монтажом двери следует заранее закрепить на ней ручку и крючок. С наружной стороны можно прибить ветряную вертушку, имеющую произвольную форму;
- нанесение заключительной отделки. Древесину следует покрыть лакирующим или красящим составом на масляной основе.
Этот вариант туалета на приусадебном участке позволяет разгуляться фантазии и не налагает существенных ограничений в отношении дизайна. Используйте многочисленные фото и видео материалы для того, чтобы найти интересные идеи для своего сказочного домика.

Туалет «Шалаш», рисунок 5: внешняя обшивка
Как самостоятельно сделать торфяной пудр-клозет?
Поскольку мы уже знаем, что из фекалий, обработанных торфом, получаются качественные удобрения, то до строительства пудр-клозета подумайте о том, где будет находиться площадка для компоста.
Этап #1. Подготовимся к работе
Для сооружения пудр-клозета нам понадобятся:
- доски;
- фанера;
- крепеж (саморезы и гвозди);
- сиденье для унитаза.
Готовое сиденье можно купить в магазине.
Этап #2. Основные правила сооружения пудр-клозета
Перед тем, как сделать торфяной туалет на даче, необходимо собрать короб. Для этого нам понадобятся четыре доски, которые следует скрепить друг с другом саморезами. Чтобы можно было устанавливать накопитель фекалий внутрь короба, в его передней части делают вырез.
Далее берём лист фанеры и вырезаем в нем отверстие. Этот лист используем для обшивки верхней части короба. Устанавливаем фанеру так, чтобы техническое отверстие располагалось непосредственно над накопительным резервуаром.
Для удобства размещения накопителя под техническим отверстием совсем не обязательно делать вырез в передней части короба: можно просто сделать элемент из фанеры откидным
К коробу нужно приделать ножки, рассчитывая их высоту так, чтобы можно было легко устанавливать и извлекать накопитель. Осталось закрепить вокруг технического отверстия удобное сиденье. Как уже было сказано, сиденье для пудр-клозета можно купить в магазине. В зависимости от материала изготовления оно вам обойдется в сумму от 250 до 5000 рублей.
Под отверстием размещается ёмкость для фекалий. В неё сразу нужно насыпать примерно в пять сантиметров торфа. Лучше иметь несколько накопительных ёмкостей, чтобы их можно было менять по мере заполнения.
Как и любому другому, торфяному туалету необходима вентиляция. Для этой цели можно использовать уже известную нам трубу с закрепленным на ней дефлектором. В саму ёмкость опускать её не нужно. Отверстие в двери кабинки тоже будет не лишним. Оно повысит уровень вентиляции и позволит использовать дневной свет для освещения кабинки.
С чертежами дачных деревянных туалетов, выполненных в форме шалаша, ознакомит следующая статья, с содержанием которой мы советуем ознакомиться.
Дачный туалет из дерева – чертежи с размерами
Конечно, чаще всего, решив построить уличный туалет своими руками, в качестве основного строительного материала используют древесину. Она дешева, доступна, легка в обработке и дает немалый простор для творчества. Тем более, что вариантов строительства тут много. Давайте изучим наиболее интересные из них, а заодно выделим размеры дачного туалета.
Теремок
Этот туалет для дачи также известен, как избушка. Считается наиболее сложной архитектурной формой, но в то же время одной из самых красивых. Материалов на строительство придется потратить немало – подрезать приходится много.
Но перерасход древесины компенсируется не только внешней красотой, но и тем, что туалет типа «теремок» хорошо сохраняет тепло даже зимой, да и дождь со снегом доставляют меньше хлопот, чем в других постройках подобного типа.
Домик
Ещё одно удачное решение, если вы хотите построить комфортный туалет на дачном участке своими руками. Места он занимает не больше, чем простейший скворечник, но при этом имеет более высокую прочность, да и по уровню комфорта не сравнится с ним.
Скворечник
А вот тем мастерам, которые при строительстве выбирают проекты максимальной простоты, наверняка понравится деревянный скворечник. Возвести его на участке своими руками проще всего. Односкатная крыша и примитивная схема позволяют уменьшить расход строительных материалов. К тому же, крыша дачного туалета дает возможность легко разместить напорный бак – полезная вещь, если вы планируете строить туалет с унитазом.
Но недостатков у конструкции немало. В первую очередь – постройка получается шаткой. К тому же, она легко продувается ветром. Наконец, при обильных осадках влага наверняка просочится внутрь, что также не добавит комфорта.
Шалаш
Желаете красивый деревенский туалет, удобный в эксплуатации и простой в строительстве? Тогда вам подойдет шалаш. Архитектурная форма выглядит просто, благодаря двускатной крыше. Но при этом постройка обладает устойчивостью к осадкам и ветрам. Особый дизайн делает её ещё и прочной. Расход материалов также сравнительно невелик.
Фото дачных туалетов своими руками
- https://arbolit.org/materialy-i-instrumenty/chertezhi-derevyannyh-tualetov-dlya-dachi.html
- https://dom-i-remont.info/posts/pridomovaya-territoriya/razmeryi-dachnogo-tualeta-chertezhi-i-pravila-stroitelstva/
- https://lmerlin.ru/svoimi-rukami/dom-dacha/dachnyj-tualet-svoimi-rukami.html
- https://b-online.ru/malye-formy/derevyannyy-tualet-dlya-dachi-kak-postroit-svoimi-rukami-foto-na-uchastke.html
- https://comfortdacha.ru/kak-postroit-tualet-dlya-dachi-svoimi-rukami-chertezhi-s-razmerami/
- https://TrubaNet.ru/kanalizacionnye-truby/tualet-na-dache-svoimi-rukami.html
- https://kanalizatsiyavse.ru/dachnyj-tualet-dush/tualet-na-dache-svoimi-rukami-chertezhi-razmery
- https://kak-sdelano.ru/dachnyij-tualet/postroit-tualet-svoimi-rukami
- https://postroika.biz/38990-tualet-na-dache-svoimi-rukami-chertezhi-i-razmeryi.html
- https://saucyintruder.org/tualet-dla-daci-svoimi-rukami-posagovaa-instrukcia-stroitelstva/
- https://gidstroitelstva.ru/dachnyj-tualet-svoimi-rukami/
Разновидности дачных туалетов

Перед постройкой туалета следует выбрать его тип. На садовом участке можно возвести две разновидности санузла:
- с выгребной ямой;
- без ямы.
Уличный туалет с выкопанной ямой является проверенной временем постройкой. Он состоит из обустроенного домика и выгребным котлованом, находящимся под ним.
Яма при заполнении чистится ассенизаторской машиной или же самостоятельно вручную. Некоторые просто делают переносной дом и каждые 6–7 лет меняют место расположения постройки. В этом случае выкапывается новая яма, а старая засыпается. Через 6–7 лет нечистоты перегниют и туалет разрешается вернуть на прежнее место.
Разновидностью туалета на улице с обустроенной выгребной ямой считается люфт-клозет. Его главное отличие – яма делается герметичной. Такой вариант подходит, если постройка будет стоять вблизи дома или же к ней близко подходят подземные воды.
Пудр-клозет делается без организации выгребного котлована. Он возводится, если подземные воды близко подходят к уровню земли или же при нечастом использовании постройки. Вместо ямы используется емкость для накапливания нечистот. Ее роль может выполнять что угодно. Это может быть бочка, ведро или же старый бак. Объем выбранной емкости определяется на основании интенсивности использования туалета.
Каждый раз посещая пудр-клозет нечистоты необходимо засыпать высушенным торфом, а также опилками или же золой. Емкость с «маскирующей пудрой» должна находиться внутри санузла. При наполнении заменитель ямы чистится, а его содержимое переносится на компост. При использовании торфа нечистоты через некоторое время превращаются в хорошее удобрение.
Из чего строить туалет на даче?
В большинстве случаев лучше всего строить деревянный туалет для дачи, это связанно с дешевизной этого материала, кроме того дерево очень легко обрабатывать, оно имеет хорошие теплоустойчивые характеристики и при грамотном подходе не несет человеку никакого вреда. За счет правильной обработки можно сделать его стойким к погодным условиям и непригодным для развития на нем каких-либо бактерий или насекомых.
Кроме того, легкая деревянная конструкция позволяет сэкономить на фундаменте, который в ряде случаев вообще может не пригодиться, ведь размеры туалета на даче своими руками могут быть небольшими, в таком случае его кабину можно просто поставить на железобетонные монолиты или кирпичи.
Чтобы построить простой туалет на даче своими руками необходимо определится с видами материалов.
Для строительства каркаса зачастую используют обычный брус, пол и стульчак удобно покрывать шпунтованной доской, для внешней обшивки подойдут обрезанные или шпунтованные доски, а для обрешетки крыши хорошо подходят обрезанные и необрезанные доски.
В строительстве обшивки могут быть эффективны доски из водостойкой фанеры или ОСП, которую к тому же можно использовать в создании реек для обрешетки. Хорошим материалом может стать шпунтованная доска, которая при незначительно большей цене превосходит большинство других материалов по своим свойствам.
Для криволинейных участков оптимальным является использование морской шлюпочной доски, которая помимо всего еще и значительно дольше прослужит в той местности, где часто бывают осадки, однако по сравнению со шпунтовой доской она хуже сдерживает порывы ветра.
Все без исключения деревянные элементы должны быть обработаны сначала против гнили, после чего от сырости. Именно такая последовательность является наиболее правильной, при которой доски будут служить наибольшее время.
Те части туалета, которые будут обращены вовнутрь (в сторону выгреба и грунта), необходимо так же обработать битумной мастикой или горячим битумом.

Правила выбора места под туалет

Перед тем как установить туалет на даче, выбирают подходящее место для него с учетом типа сооружения, а также характеристик выгребной ямы
При поиске территории для строительства обращают внимание на следующие моменты:
Важно учитывать, насколько глубоко залегают грунтовые воды на дачном участке. При высоте УГВ более 2,5-3 м делать выгребную яму нельзя, подойдет только вариант уборной с обработкой отходов специальными порошками.
В процессе выбора места для устройства туалета на даче учитывают расположение построек на соседских участках и собственной территории. Клозет возводят вдали от других сооружений.
Обязательно учитывают действующие санитарно-гигиенические нормы и соблюдают нормируемые расстояния от других построек на даче.
Сооружение возводят в таком месте, к которому несложно обеспечить подъезд машины ассенизаторов.
При выборе места учитывают ландшафт территории
В случае размещения в самой низкой точке участка постройку будут заливать талые воды в осенне-весенний период. На возвышении часто присутствуют сильные сквозняки и ветра.
Клозет возводят вдали от других сооружений.
Обязательно учитывают действующие санитарно-гигиенические нормы и соблюдают нормируемые расстояния от других построек на даче.
Сооружение возводят в таком месте, к которому несложно обеспечить подъезд машины ассенизаторов.
При выборе места учитывают ландшафт территории. В случае размещения в самой низкой точке участка постройку будут заливать талые воды в осенне-весенний период. На возвышении часто присутствуют сильные сквозняки и ветра.
Какой туалет выбрать для дачи: садовый сухой пудр-клозет
Сухой туалет (пудр-клозет) представляет собой небольшую конструкцию, в которой находится обычный деревянный стульчак с крышкой, а под ним расположена легко извлекаемая емкость. Рядом со стульчаком устанавливают емкость с торфом, опилками или другим сухим материалом для присыпки (припудривания) нечистот после каждого посещения туалета. Для такого припудривания отходов можно также использовать золу, сухой торф или торфяную крошку. При недостатке этих компонентов в данном виде туалетов для дачи разрешено использовать смесь этих материалов с сухой садовой землей. Из-за такого процесса припудривания и появилось название этого типа туалета.
С помощью присыпки можно избавиться от неприятного запаха, предотвратить размножение мух и получить полноценное удобрение.
Правильно оборудованный сухой туалет при правильном его использовании станет наиболее подходящим дешевым в эксплуатации вариантом. Принцип действия канализации такого туалета заключается в действии земного притяжения при наличии естественного уклона.
Если туалетом пользуются 4-5 человек и более, то рекомендуется опорожнение емкости проводить чаще. Желательно удалять содержимое ежедневно, чтобы легче было поднимать емкость. Впоследствии из него можно получить компост, пригодный для удобрения огорода.
Решая, какой туалет сделать на даче, учитывайте, что возведение пудр-клозета вместе с затратами на оцинкованное или эмалированное ведро считается самым дешевым вариантом. Кроме того, существует и еще одно преимущество такого типа туалета: для его строительства не требуется никаких согласований
Важной особенностью пудр-клозета является отсутствие выгребной ямы, поэтому только такой тип туалета разрешено сооружать даже при высоком уровне грунтовых вод
Пудр-клозет на даче является идеальным дачным вариантом, особенно если на участке выращивается большое количество растений, для которых предполагается использование удобрений, потому что содержимое накопительной емкости такого туалета легко можно переместить в компостную кучу.
Сухой туалет для дачи может находиться в любом месте участка, его разрешено совмещать с баней или другими хозяйственными постройками. Кроме того, он может располагаться вблизи жилого дома или в пристройке под одной крышей с ним при наличии соответствующей вентиляции.
Дачный сухой туалет очень удобен в том случае, если на участке отсутствует водопроводная сеть. При использовании торфа или торфяной крошки для припудривания отходов получается подобие самодельного торфяного биологического туалета, у которого есть свои существенные преимущества перед туалетом с традиционной выгребной ямой.
При этом не нужно затрачивать лишние средства на покупку пластикового торфяного биотуалета.
Схемы оборудования дачных туалетов
Здесь представлены схемы и чертежи, возможно, пригодятся, если возникнет потребность в постройки соответствующего помещения.
Место для туалета
Важно выбрать правильное место для туалета, ведь всегда есть вероятность, что нечистоты попадут в грунтовые воды, что, как сами понимаете, чревато неприятностями не только вам, но и соседям. Если грунтовые воды залегают выше, чем 2,5 метра, то вообще запрещено обустраивать обычную выгребную яму, только биотуалет или другой вид туалета, где содержимое ямы не соприкасается с напрямую с грунтом
Плюс, следует учитывать и преимущественное направление потоков воздуха, по понятным причинам. На этой схеме показаны некоторые правила размещения, которые желательно соблюдать.
Виды дачных туалетов
Основной признак, который используется для классификации уличных туалетов, – это способ утилизации накопившихся отходов. Все остальные, включая материал изготовления конструкции, вторичны.
Построенные своими руками дачные туалеты подразделяются на две большие категории: имеющие выгребную яму в своей конструкции и те, у которых она не предусмотрена.
Конечно, упомянутые ниже типы кабинок – это далеко не полный перечень, ведь существует ещё и фантазия, полёт которой невозможно ограничить. Например, вот кабинка-карета, в которой установлен биотуалет и умывальник
Кабинки для отхожих мест можно купить в готовом виде или сделать самостоятельно.
Их подразделяют на несколько типов:
- домик;
- избушка;
- шалаш;
- скворечник.
Друг от друга они отличаются внешним видом, размерами и т.д. Обычно дачники выбирают такую кабинку, которая больше всего отвечает их эстетическому восприятию.
Что потребуется для постройки
Для постройки уличного санузла нужны следующие материалы:
- деревянные доски, кирпичи, блоки и т. д. Выбор материала зависит от вида домика;
- саморезы и гвозди;
- металлические уголки. Они усилят конструкцию;
- профнастил, шифер для крыши;
- любой утеплитель (например, пенопласт или минеральная вата);
- стульчак, оснащенный крышкой.
Для обустройства выгребной ямы понадобятся:
- щебень, песок и цемент;
- арматура для фундамента;
- рабица из металла. Ею обтягивают яму. Вместо нее стенки можно обложить кирпичом. Также внутрь можно поместить кольца из бетона или большие покрышки;
- бетон для оштукатуривания стен нижней части сооружения;
- скобы из металла для фиксации сетки.
Из инструментов нужны лопаты, ручной бур, молоток, электролобзик, перфоратор, линейки, рулетка, строительный уровень, маркер и карандаш.
Схема уличного туалета
Наиболее распространенным вариантом дачного или садового туалета является прямоугольная постройка. Ее еще называют «скворечник» так как в варианте с односкатной крышей она очень его напоминает.
Проект дачного туалета из дерева типа «Скворечник»
На чертеже туалета, представленном на фото выше, для отделки использовалась доска толщиной 40 мм. Сооружение получается совсем недорогим. Двери можно сделать из тех-же досок, скрепленных планками вверху, внизу и наискосок. Петли можно поставить наружные — амбарные, оформив строение в нарочито грубом стиле.
Образцы дачных туалетов: чертежи одинаковые, исполнение разное
Несмотря на то, что постройка утилитарная, при желании ей можно придать привлекательный вид и скворечник превратится во вполне привлекательное небольшое здание. Например, можно сделать из этой постройки маленькую мельницу.
Дачный туалет-мельница — немного фантазии и неприглядная постройка становится украшением участка
Тот же скворечник, но из сруба — уже совсем другой вид. Особенно гармонично все будет смотреться, если здание на участке выстроено (или будет выстроено) тоже из бревна.
Даже самый простой туалет из бревна смотрится почти как экзотика
Для регионов, где древесина — роскошь, и расходовать ее на постройку туалета нерационально, ту же конструкцию можно обшить другим материалом. Например, каркас обшивается любым листовым материалом — фанерой, ДВП, ГВЛ. На них снаружи можно уложить отделочный материал — плитку или декоративный камень. Еще более бюджетный вариант — обшить профнастилом.
Туалет на даче своими руками строят из любого материала. Этот — из профнастила
Это тот тип туалета, Который несложно построить из кирпича. Делают их обычно в полкирпича. Никаких сложностей даже для неопытного каменщика нет. Кладка со смещением, раствор — цементно-песчаный.
По тому же проекту и чертежу можно построить туалет из кирпича
Туалет на даче из поддонов – схема + фото по шагам
Если на дачном участке откуда-то появилось несколько не нужных поддонов, то это прекрасный материал для строительства своими руками уютного туалета. По размеру они подходят – от 80×120 до 120×120 см.
Конечно, в первую очередь пошаговая инструкция предусматривает устройство фундамента. Одни мастера предпочтут залить ленточный фундамент, а другие – обычный столбчатый из бетонных блоков или кирпичей. Второй вариант дороже, зато не нужно ждать, пока бетон наберет прочность.
Первый поддон с прорезанным отверстием укладывается на фундамент и послужит основанием для всей постройки.
Если вам не нравятся щели между рейками, то их всегда можно аккуратно снять и повторно прибить, подгоняя более плотно и добавив несколько новых от других поддонов.
Построить стены совсем не сложно. С поддонов нужно удалить поперечные перемычки и поставить их один на другой на попа. Затем каркасы соединяют между собой рейками, брусками или металлическими скобами. Таким образом несложно изготовить четыре стены.
Под дверной проем необходимо пропилить отверстие в одной из стен. По периметру его обязательно нужно усилить брусом – подойдет каркас, удаленный с паллет, которые пошли на стены. Кстати, выпиленный кусок также можно усилить, навесить на него петли и получится готовая, подходящая к данному туалету, дверь. Также в стенах стоит проделать несколько небольших отверстий для вентиляции.
Если форма паллет не подходит для строительства стен, то их следует просто разобрать своими руками. Из бруса собирается каркас, который тут же обшивается рейками.
Следующий этап – создание крыши. Если под рукой есть кусок поликарбоната от теплицы, то ничего лучшего и не найти. В верхней части стен фиксируется ещё один поддон – с него убирается большая часть реек. А поверх укладывается поликарбонат – подойдет как цветной, так и прозрачный. Зафиксировать его нужно шурупами с шайбами или широкими шляпками. В результате вы получаете водонепроницаемую и хорошо пропускающую свет крышу.
Осталось только собрать рундук – тот самый «постамент», на котором предстоит восседать, делая то, что обычно делают в дачном туалете. К стенам крепится несколько брусков, которые обшиваются рейками. Для удобства можно также уложить пластиковое сиденье – в магазинах оно стоит всего несколько сотен рублей.
Туалет из поддонов готов! Наверняка фото, показывающие пошагово весь процесс строительства, облегчат для вас эту работу.
Видео
Идеи для дизайна и декора
Можно построить стандартную, ничем не примечательную кабинку – а можно украсить ручки и крышу резьбой или росписью. Оригинальная форма и украшения превратят обычный дачный туалет в сказочную избушку.
Туалет в форме шалаша на участке загородного дома в лесу;
Простая конструкция и собирается быстро, главное все хорошо закрепитьИсточник perfectforhome.com
Туалет-ёлка выглядит не столь необычно – но тоже весьма занятно;
Своеобразный теремок может стать даже украшением двораИсточник serhio.amohost.ru
Туалет с хозяйственным блоком – удобная и практичная модель;
Такая конструкция позволит сохранить место на участке и время на возведение отдельных конструкцийИсточник fishki.net
Уборная с душем – отличный вариант для тех, кого не устраивает простая обливка из шланга.
Уборная может быть обустроена вместе с душевой кабинкой, где после работ на участке можно освежитьсяИсточник yandex.ru
Видео описание
Чтобы дачный туалет не стал скучным уголком на даче, его можно необычно преобразить, примеры в видео:
Заключение
Туалет для дачи из дерева – простое и недорогое решение проблемы обустройства отхожего места. Древесина – это надёжный и проверенный временем материал. Дерево хорошо и для декора, и для благоустройства. Туалетная кабинка, помимо выполнения своих основных функций, может радовать глаз необычным внешним видом.
О выгребе
Устройство уличного туалета
Подробнее о выгребных ямах, ухищрениях при их постройке и способах обходиться без выгреба вовсе поговорим ниже; вообще же септик локальной канализации – большая отдельная тема.
А пока – см. схему на рис., пригодную для дворового туалета и хозблока
Обратите внимание на отражатель 1, для туалета он совершенно необходим, т.к. направляет сброшенные фекалии в переднюю часть ямы. Далее они потихоньку сползают в карман под выкачку, по пути перерабатываясь бактериями
Без отражателя весь биоценоз в яме перепутается, и понадобится примерно вдвое больший ее объем. Серые стоки выводятся в яму без отражателя, но тоже в переднюю часть. Глухая бетонная коробка 4 и глиняный замок 3 на даче также совершенно необходимы для предотвращения инфильтрации в грунт, а назначение ревизионно-прочистной дверцы 2 пояснений не требует
Далее они потихоньку сползают в карман под выкачку, по пути перерабатываясь бактериями. Без отражателя весь биоценоз в яме перепутается, и понадобится примерно вдвое больший ее объем. Серые стоки выводятся в яму без отражателя, но тоже в переднюю часть. Глухая бетонная коробка 4 и глиняный замок 3 на даче также совершенно необходимы для предотвращения инфильтрации в грунт, а назначение ревизионно-прочистной дверцы 2 пояснений не требует.
Обшивка каркаса
Перед началом обшивки замеряется и размечается материал. На месте стыков прорезают пазы, чтобы избежать проблем с герметичностью. Укладку начинают от краев боковых стенок. Их рекомендуется декорировать длинными панелями, а заднюю с передней – короткими. Подходящие материалы для обшивки:
- деревянные доски;
- сайдинг;
- панели из пластика;
- гипсокартон;
- металл;
- сэндвич-панели.
Обшивка помогает украсить внешний вид, придать конструкции прочности, устойчивости, долговечности. На ней не стоит экономить, устанавливая уличный туалет в местности с неблагоприятными климатическими условиями.
Дачный туалет – хорошее решение для частных домов без подключения к канализации. Разнообразие видов подобных конструкций – от простого домика с выгребной ямой до сложных биосистем и санузлов с автономной канализацией — позволят выбрать вариант в зависимости от бюджета, частоты использования, особенностей грунта и других факторов.





