Оглавление
Устройство и конструкция вентилятора

Схема работы радиального вентилятора
Для движения воздуха иногда недостаточно крыльчатки и силового агрегата. В условиях ограниченного пространства следует применять особый вид конструкции вытяжного оборудования. Он приставляет собой спиралевидный корпус, выполняющий функцию воздушного канала. Ее можно сделать своими руками или приобрести уже готовую модель.
Для формирования потока в конструкции предусмотрено радиальное рабочее колесо. Оно соединяется с силовым агрегатом. Лопатки колеса имеют загнутую форму и при движении создают разряженную область. В нее поступает воздух (или газ) из входного патрубка. При продвижении по спиралевидному корпусу возрастает скорость на выходном отверстии.
В зависимости от области применения центробежный вентилятор улитка может быть общего назначения, термостойкий или защищенный от коррозии. Также необходимо учитывать величину создаваемого воздушного потока:
- низкого давления. Область применения – производственные цеха, бытовые приборы. Температура воздуха не должна превышать +80°С. Обязательное отсутствие агрессивных сред;
- среднее значение давления. Является частью вытяжного оборудования для удаления или транспортировки материалов небольшой фракции, опилок зерна;
- высокого давления. Формирует приток воздуха в зону сгорания топлива. Устанавливается в котлах многих типов.
Для мощных моделей необходимо сделать своими руками надежное основание с фиксацией корпуса. Промышленная установка будет сильно вибрировать, что может привести к ее постепенному разрушению.
Виды оборудования
Прежде всего, вытяжки-улитки отличаются по показателям давления. Вентиляция может осуществляться в условиях:
- низкого давления – до 100 кг/м2;
- среднего – от 100 дл 300 кг/м2;
- высокого давления – более 300 кг/м2 (может достигать 1200 кг/м2).
Первый тип вытяжек подходит для использования и в промышленных, и в бытовых условиях. Как правило, такая техника достаточно компактна, поэтому может устанавливаться и без дополнительной помощи.
Внимание! Вытяжки с низким давлением достаточно для обеспечения качественного вентилирования воздуха в шахтах многоэтажных зданий.
Вентиляторы со средним давлением используются в промышленных целях. Такое оборудование легче выдерживает сложные условия эксплуатации, оно оборудовано в соответствии с основными пожарными и техническими требованиями на производстве.
Третий вариант используется не только в цехах, но и в лабораториях, складах, помещениях, где осуществляется покраска и т.д. Их можно устанавливать для обдува систем кондиционирования или рабочих станков, а также для нагнетания воздуха в котельных системах.
В зависимости от качества и степени износа конструкции выделяют общие вытяжки-улитки, термостойкие, коррозионностойкие системы, а также сверхпрочное оборудование, которое выдерживает даже взрывные реакции.
В большинстве случаев системы вентилирования воздуха в форме улитки применяются для удаления из помещения галечника, деревянной и металлической стружки, щепок и других остатков производства. Их монтаж должен осуществляться с учетом требований безопасности и охраны труда.
Принцип действия
Эффективность вытяжных систем с применением улиток основана на их простом принципе действия.
В процессе работы электродвигатель запускает вращение рабочего колеса.
Турбинное колесо с радиальными лопатками, благодаря центростремительному движению, засасывают через патрубок и придают газо-воздушным массам ускорение.
Их движению передается вращательный характер центробежного усилия лопаток. Это обеспечивает разный вектор входящему и выходящему потокам.
Вследствие этого выходящий поток направляется в спиральный кожух. Конфигурация спирали обеспечивает торможение и последующую подачу потока под давлением в вытяжной канал.
Из вытяжного канала газо-воздушные массы выводятся в воздуховоды для дальнейшей очистки и выброса в атмосферу.
Если в воздуховодах предусмотрены перекрывающие клапаны, то радиальный вентилятор может работать как вакуумный насос.
Ограничения в эксплуатации
Несмотря на прочность и надежность промышленных «улиток», существуют некоторые ограничения по их использованию. Итак, центробежные вентиляторы, в быту называющиеся «улитками», не рекомендуется устанавливать если:
- В воздухе имеются взвеси липкой консистенции более 10 мг/куб.м.
- В помещении находятся частички взрывоопасных веществ.
- Температура в помещении выходит за рамки диапазона от -40 до +45°С.
Более того, рационально использовать вентиляцию «улитку» в больших помещениях, в быту такие приборы лучше ставить в шахтах вентиляции, куда поступает весь отработанных воздух из дома.
Делаем своими руками
Построение вентилятора-улитки — дело не самое сложное, если вы решите взяться за самодельный агрегат своими руками.
Есть несколько важных рекомендаций, которые следует учесть перед построением своими руками вентилятора улитки.
- Функциональное назначение. Для оснащения системой вентиляции части помещения, небольшого участка или оборудования, корпус допускается собрать из подручных материалов. Если это центробежный агрегат, который будет формировать воздушные потоки для обеспечения работы котельного оборудования, тогда корпус изготавливается своими руками на основе нержавеющей стали или жаропрочного металла.
- Мощность. Этот параметр напрямую зависит от функций, которые будет выполнять центробежный агрегат. Многие домашние умельцы используют улитки, снятые со старого оборудования, вентиляционных систем, вытяжек или пылесосов. За счет использования такого агрегата, вы гарантируете точное соотношение мощности и характеристик корпуса.
Если вы хотите сделать улитку для бытового применения, использования внутри мастерской, тогда собрать своими руками устройство можно. Все остальные ситуации подразумевают необходимость использования только заводских, проверенных улиток.
Чтобы своими руками собрать эффективный самодельный вентилятор-улитку, вам потребуется выполнить следующие задачи:
- Рассчитать габариты будущего оборудования. Если это центробежный агрегат для установки на ограниченном пространстве, обязательно воспользуйтесь демпферными прокладками. Они позволят компенсировать образующиеся вибрации в процессе его работы, уберегут улитку от преждевременного износа. Если это крупный стационарный агрегат, защита от вибраций происходит за счет массы оборудования и его фиксации;
- Изготовить корпус вентилятора-улитки. Если у вас нет готового короба, который идеально подойдет для вентилятора, используйте подручные материалы. Для данных целей подойдет пластик, фанерные листы, сталь. Если вы решите взять листы фанеры, убедитесь, что в процессе сборки конструкции полностью отсутствуют зазоры, все швы качественно загерметизированы;
- Продумать схему силового агрегата улитки. Задача силовой установки — вращать лопасти вентилятора. При выборе учитывайте, какую мощность имеет улитка. Если это центробежный вентилятор высокой мощности, используйте ременной привод. В небольших установках актуально применять вал, который соединяет редуктор мотора с ротором;
- Использовать крепежные элементы. При установке вентилятора-улитки на внешнем корпусе конструкции, используют П-образные монтажные пластины. Если мощность агрегатов внушительная, тогда обязательно примите на вооружение массивное, прочное основание;
- Минимизировать шум. Улитка высокой мощности характеризуется тем, что такой центробежный вентилятор излучает достаточно много шума. Объективно лучший способ защититься от шума улитки — собрать оборудование максимально качественно. Уже после сборки улитки компенсировать шум проблематично. Самыми шумными являются модели, корпус которых изготовлен из пластика и металла. Деревянные корпусы уменьшают шум улитки, но существенно уступают металлическим и пластиковым аналогам длительностью эксплуатации.
Согласно представленной схеме вы можете создавать вытяжные центробежные устройства различной мощности назначения своими руками. При необходимости можно вносить изменения в схему, менять комплектующие, добавлять вспомогательные элементы.
Наиболее значимым моментом при сборке вентилятора своими руками — это надежная герметизация всех имеющихся в конструкции швов и защита самого двигателя. С течением времени и по мере эксплуатации на двигатель, не имеющий надлежащей защиты, может попадать различный мусор, пыль, грязь и влага. Не секрет, что это приводит к износу, постепенному разрушению и выходу оборудования из строя.
В основе механизма любого вентилятора лежит ротор с закрепленными на нем лопастями. Назначение их — перемещение больших масс воздуха с целью циркуляции воздуха.
Сфера применения центробежных вентиляторов «улитка» очень широка. Их используют в инженерных системах зданий, промышленных системах вентиляции, сушильных камерах, бытовых приборах, покрасочных, при обдуве станков.
Конструкционные особенности
Вытяжка улитка – это радиальный вентилятор, встроенный в корпус особой формы, напоминающий панцирь улитки. Воздух в него направляется под действием центробежной силы.
Центробежный вентилятор состоит из следующих частей:
- Корпус спиральной формы.
- Всасывающий патрубок круглой формы, размер диаметра совпадает с размером рабочего колеса.
- Вытяжной канал, оканчивающийся выходным патрубком.
- Выходной патрубок прямоугольной формы, располагается зевом вверх.
- Рабочее колесо с лопастями.
- Электромотор.

Центр корпуса занимает крыльчатка вентилятора. Ее лопасти отличаются от привычно больших, начинающихся от оси вращения. В радиальном вентиляторе лопасти рабочего колеса прямоугольные, прямые или выгнутые определенным образом, располагаются по ободу круга вращения.
Форма лопастей вытяжки улитка в зависимости от назначения:
- прямые – для удаления летучих взвесей (пыли, мелкой стружки);
- с загибом лопасти назад – для увеличения скорости вращения колеса при пониженном шумообразовании;
- с загибом лопасти вперед — для повышения давления и КПД двигателя.
Особенности конструкции радиального вентилятора заключаются в разном способе передачи крутящего момента от двигателя к рабочему колесу:
- Рабочее колесо «посажено» непосредственно на вал двигателя. Такая конструкция отличается простотой и доступностью. Однако в случае поломки вентилятора требуется полный разбор его для ремонтных работ.
- Крутящий момент передается посредством ремня. Распространенный вид взаимодействия двигателя с вращающимися частями механизма, который открывает много возможностей для манипуляции с размерами шкивов и скоростями. Ременная передача делает устройство более громоздким и дорогим.
- Рабочее колесо соединяется с моторным валом через муфту. Такая посадка снимает нагрузку с подшипников двигателя, не увеличивая сложность и металлоемкость конструкции. Этот тип вытяжки улитка можно считать лучшим по ремонтопригодности и цене.
Рекомендуем ознакомиться: Система вентиляции в многоквартирном жилом доме
Скорость работы вытяжки типа улитка регулируется не только мощностью мотора, но и количеством лопастей на рабочем колесе. Корпус вентилятора изготавливают из стали, сплавов или алюминия. Для защиты от коррозии стальные детали красят или покрывают специальной защитой.
Обзор и сравнение производственных моделей
Готовые вентиляторы имеют стабильные и устойчивые рабочие характеристики, обеспечивают качественную работу с низким уровнем шума
При наличии разветвленной системы воздуховодов, распространяющих звук по всем помещениям, использование малошумящего оборудования очень важно. Рассмотрим эксплуатационные характеристики нескольких промышленных образцов, чтобы знать, от чего следует отталкиваться при проектировании собственного изделия:
Радиальные вентиляторы низкого давления ВР 80-75
Имеют достаточно высокую производительность (от 370 до 71000 м3/ч в зависимости от номера вентилятора). Давление находится в пределах 0,37-1820 Па. Используются в системах общеобменной вентиляции или в составе технологического оборудования.
Радиальные вентиляторы среднего давления ВЦ 14-46
Показатель давления у этого модельного ряда увеличен, как и производительность, доходящая у крупных номеров до 127000 м3/ч. Такие установки используются в крупных разветвленных вентиляционных системах с большой протяженностью воздуховодов.
Пылевые вентиляторы ВЦП 7-40
Используются в составе технологического цикла для перемещения сыпучих материалов мелкой фракции. Применяются для транспортировки зерна, крупы, для удаления древесных опилок или стружки. Особенность этой группы состоит в конструкции рабочего колеса, имеющего малое число лопаток. Это позволяет исключить опасность застревания материала между элементами крыльчатки.
Вентиляторы улитки свое название получи по форме корпуса, которая напоминает панцирь этого моллюска. Сегодня этот вид оборудования применяется и в промышленности, и в жилищном строительстве в вентиляционных системах. Производители предлагают сегодня несколько моделей улиток для вентиляции. Но все они работают по одному и тому же принципу – центробежная сила, создаваемая вращением лопаток на роторе, захватывает воздух через входное отверстие виде улитки и выталкивает его через прямолинейное выходное отверстие, расположенное под 90° в другой плоскости к входному.
Конструкция и принцип работы
Устройства вентиляторов, используемых для перемещения разнообразных смесей газов и воздуха, бывают нескольких типов. Наиболее востребованным является центробежный радиальный агрегат «улитка».
Он имеет в сборке вращающееся колесо и закрепленные на нем лопасти. Разные модели вентиляторов содержат разное количество лопастей.
Принцип действия вытяжки «улитки» таков:
- Воздух засасывается внутрь ротора сквозь входное отверстие;
- Воздушная масса получает вращательное движение;
- Далее, посредством центробежной силы, которую создают вращающиеся лопатки, воздух под давлением нагнетается к выходному отверстию. Оно расположено в спиральном кожухе.
За счет сходства кожуха с улиткой вентилятор и получил свое название.
Материалы корпуса
Промышленная «улитка» может включать разные материалы — в зависимости от агрессивности среды применения. Обшивка агрегата общего назначения, эксплуатируемого в неагрессивных смесях газов с содержанием частиц менее 0,1 г/куб. м, производится из листовой оцинкованной или углеродистой стали разной толщины. Если среда содержит агрессивные газовые смеси, характерна присутствием активных газов и испарением кислот, применяются коррозионно-устойчивые стали. Вентилятор «улитка» в таком исполнении работает при температуре до 200 градусов тепла по Цельсию.
Есть взрывозащищенный вариант корпуса вытяжки. Он собран из пластичных металлов: меди или алюминиевых сплавов. Здесь при работе вытяжки исключается искрение, являющееся основной причиной взрывов.
Рабочее колесо
Требования к материалам для рабочего колеса с лопатками — пластичность и защищенность от коррозии. Тогда колесо выдержит вибрационные нагрузки и химическое воздействие среды
Для проекта формы и количества лопаток, во внимание берутся аэродинамические нагрузки и скорость вращения. Большая скорость вращения большого количества слегка изогнутых либо прямых лопаток, формирует устойчивый воздушный поток. При этом создается меньше шума
При этом создается меньше шума.
Центробежную вытяжку следует классифицировать как оборудование с повышенной вибрацией. Причина вибрации — низкий уровень сбалансированности вращающегося колеса. Вибрация несет в себе такие негативные факторы: разрушение основания в месте установки оборудования и высокий шумовой уровень. Минимизирует вибрацию установка амортизационных пружин. Пружины монтируются под основание корпуса. Кроме того, для некоторых моделей вместо пружин применяются резиновые подушки.
Электродвигатели
Оборудование для вентиляции типа «улитка» снабжается электродвигателями со взрывобезопасными крышками и корпусами. Для окраски корпусов двигателей используется специальный защитный состав. В большинстве своем — это асинхронные механизмы с фиксированной частотой вращения. Подключаются они к однофазной или трехфазной сети, в зависимости от конструкции. В особых случаях применяются двигатели с регулируемой скоростью вращения.
Размеры
Размеры вытяжек «улитка» могут быть различными. Диаметр агрегата варьируется от 250 до 1500 мм. «Улитки» могут представлять единое целое либо быть разделены на несколько частей. В случае с маленькими вентиляторами с цельной улиткой, углом поворота можно пренебречь. Достаточно открутить болты и развернуть ее в нужное положение. Модели побольше в основном разборные. Для них угол поворота — важный параметр, который следует учитывать.
Вентиляция промышленных помещений – это необходимость, которая позволяет сохранить здоровье работников и обеспечить бесперебойность работы цеха. Для очистки воздуха от различных примесей, металлической и деревянной стружки, пыли и грязи, чаще всего используются мощные вентиляционные установки «улитки». Конструкция данных установок включает в себя несколько вентиляторов разной мощности, а потому «улитка» может справиться практически с любыми загрязнениями.
Вентилятор центробежный: конструкция оборудования
Вентиляционные системы, снабженные данным оборудованием, обладают высоким потенциалом даже в сложноклиматических условиях. Центробежный вентилятор представляет собой конструкцию, состоящую из нескольких компонентов:
- спиралевидного корпуса;
- рабочего колеса;
- лопаток рабочего колеса;
- электродвигателя.
Все части конструкции соединяются точечной сваркой, клепками и болтами, что обеспечивает надежность. Вентилятор центробежный зачастую имеет корпус из нержавеющей стали с порошковым покрытием, что сводит к минимуму возможность возникновения коррозии. От направления изгиба лопаток зависят такие показатели, как экономичность и уровень вибрации.
Сообщества › Гараж Мечты › Блог › Гараж-ракушка.
Прошу совета, гараж 6*3, обычная ракушка, с боков, тоже стоят гаражи, зимой сильно промерзает задняя стенка, много инея, можно ли утеплить изнутри и закрыть допустим пластиковой панелью? Снаружи утеплить нет возможности.
Комментарии 24
Я железный пенопластом утеплил все ок… перестало мокреть… и иния нет…
Ага… ну у меня не ракушка… но думаю ракушки тоже можно так утеплить…
Или такой хрень задуть)))
Я железный пенопластом утеплил все ок… перестало мокреть… и иния нет…
У самого металлический гараж. В 2011 утеплил изнутри плитами экструдированного полистирола 30мм. Стены и потолок. Клеил на монтажную пену прям к металлу. Пену лил от души. Пол из досок 50мм. Как таковой специальной вентиляции не делал. Снизу ворот есть щель, продувает маленько и через пол, есть щели между досками. Этого хватает, что бы не было сырости. Зимой значительно теплее чем на улице. Плюсовой температуры конечно в морозы нет. Всё живое и функциональное по сей день.
Виды центробежных радиальных вентиляторов
Принципиальной разницы в конструкции между вентиляторами радиального типа нет. Их делят на несколько видов по назначению и мощности.
По мощности
Рабочее давление, на которое способна вытяжка улитка, зависит от мощности двигателя устройства, количества и конфигурации лопастей рабочего колеса.
Различают 3 типа радиальных вентиляторов по данному параметру:
- Устройства относительно низкого давления (до 100 кг/см²). Это небольшие вентиляторы, применяемые для создания принудительной вентиляции в жилых зданиях, маркированные как ВР 80-75. В многоквартирных домах такие устройства монтируют на крыше, в общий вентканал.
- Устройства, которые работают в интервале среднего давления от 100 до 300 кг/см². Используют в вентиляционных системах производственных цехов без особых требований к безопасности. Общая маркировка вытяжек этой группы ВР 300-45.
- Мощные (рабочее давление в интервале от 300 до 1200 кг/см²) вытяжки улитки устанавливают на вредных производствах, где есть необходимость интенсивного отвода едких, огне- и взрывоопасных газовых смесей. Общая маркировка этого класса ВР 12-26.
Рекомендуем ознакомиться: Выбор вытяжки для кухни: типы устройств и принцип их работы
На то, какой вентилятор следует выбрать для данной вентиляционной системы, влияет множество параметров: длина каналов, их разветвленность, пропускная способность, требуемая интенсивность воздухообмена в единицу времени. Такие расчеты проводятся специалистами на этапе разработки проекта вентиляционной системы.
По назначению
Вторая система классификации радиальных вентиляторов делит их по назначению:
- Вытяжки улитки общего назначения. Эксплуатируются при температуре до +80 градусов в атмосфере, где нет специфических или опасных загрязнений. Устанавливают в жилом или промышленном секторе.
- Взрывозащищенные – корпус и детали механизма изготовлены из материалов, исключающих появление искры при работе. Используются в помещениях, где есть взрывоопасные газовые смеси. Допустимый температурный интервал эксплуатации от -30 до +40 градусов.
- Противопожарные или жаростойкие вытяжки устанавливают на производствах, которые используют в технологическом процессе повышение температуры. Устройства изготавливают из углеродистой стали и покрывают жаростойкими составами. Эксплуатируются при температуре до +200 по Цельсию.
- С усиленной антикоррозийной защитой. Это вентиляторы, которые устанавливают на химических производствах с агрессивной средой.
- Пылевые (маркировка ВРП) – вентиляторы для удаления воздушных масс с взвешенными частицами. Устройства имеют больший зазор между корпусом и рабочим колесом, сниженное число лопастей, чтобы в процессе работы устройство не забивалось отходами. Особенности конструкции здесь приводят к падению КПД устройства. Выбирать вытяжку требуется с запасом рабочей мощности.
- Для удаления дыма (маркировка ВРДУ). Эти вентиляторы устанавливают для дымоудаления, если произойдет пожар. Устройства работают в диапазоне температур 400-600 градусов.

Особенности вытяжки улитка
Запоминающаяся форма и отличительный принцип работы выделяет такую вентиляцию из подобных. Наиболее востребованной улитка будет для помещений с минимальной площадью и свободным пространством. Конструкция вентилятора в виде спирали, служит воздушным каналом в любом складском или промышленном помещении.
На ваш выбор предоставлены заводские агрегаты «улитка» разной комплектации, но при желании – соорудить очистительную систему собственными руками вполне реально. Как установить улитку и чем она лучше остальных очистительных систем? Ответы на эти вопросы кроются в особенностях строения устройства.
Выбираем тип вентиляции
Есть несколько разновидностей вентиляций, которые можно воплотить в жизнь. Они имеют свои положительные и отрицательные стороны. Создание как одного, так и другого вида требует усилий и тщательного планирования. Давайте же рассмотрим эти виды:
Естественная вентиляция в гараже. Это самый простой и эффективный способ проветривания гаража. Он заключается в естественных процессах, основанных на физических законах.
Принудительная вентиляция. В этом случае используется целая система приборов (вентиляторы) благодаря которым и выполняется отвод отработанного воздуха и наполнения помещения свежим.
Комбинированная вентиляция. В этом случае используется как один, так и второй вид вентилирования
Мы обратим свое внимание именно на естественную вентиляцию. Для ее устройства потребуется наименьшее количество средств
В чем же принцип работы естественного типа вентиляции? Он основан на физических законах. Все знают, что теплый воздух поднимается верх, в то время как холодный опускается. Ниже приводится схема естественной вентиляции.
Как видно, система основывается на использовании двух труб или каналов, которые служат для вентилирования воздуха. Одна из труб – приточная, а вторая – вытяжная. При этом вытяжная труба находится у потолка погреба, а приточная на небольшом расстоянии от пола (не меньше 10 см). Итак, основываясь на законах физики делаем вывод: теплый воздух поднимается вверх и попадает в вытяжную трубу. В то же время свежий воздух подается через приточную трубу, замещая собой количество вышедшего воздуха. Таким образом и происходит вентилирование. Это напоминает процесс, при котором открывается одно окно на кухне и дверь на коридоре. Получается, что для гаража не потребуется установка дорогостоящего оборудования. Работы по созданию просты, воздухообмен происходит естественным образом.

Есть еще один важный момент, который способствует правильному функционированию системы. Речь идет о размещении труб внутри гаража
Очень важно, чтобы они располагались по диагонали в противоположенных местах. А еще важно рассчитать оптимальный диаметр отверстий
Ведь можно сделать сквозняк внутри, а не качественный воздухообмен. Есть некоторые стандарты, которые говорят о том, что на 1 м 2 площади помещения нужно отверстие, диаметром 1,5 см. Например, если размер помещения 4х6 м, то его площадь будет равняться 24 м 2 . Путем несложных математических решений, получаем оптимальный диаметр вентиляционной трубы – 36 см (24х1,5=36). А если их будет две, что вполне логично, то рекомендуемый диаметр каждой трубы 18 см, так как сумма делится на два.

Многие считают этот вид вентилирования лучшим, так как для его воплощения не нужно много средств, а все работы можно сделать своими руками. Нужно только закупить трубы, сделать отверстия в стене и перекрытии, если таких нет, и выполнить установку системы вентиляции в гараже.
Варианты вентиляции в гараже
Проще всего своими руками смонтировать вентиляцию в собственном гараже в исполнении с естественной воздушной тягой. Для этого необходимо рассчитать диаметр труб на вытяжку и приток, а после пробить отверстия в стенах и/или крыше и установить эти воздуховоды. Главное потом не забыть про необходимость надежной герметизации просветов между трубой и бетоном, кирпичом или металлом стены.

Варианты оборудования вентиляционной шахты
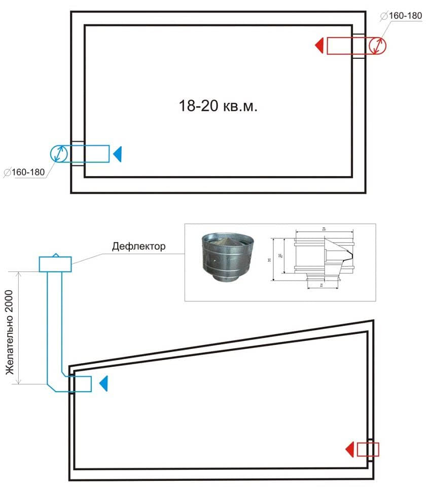
Приточное отверстие вентиляции следует располагать на высоте 15–20 см над землей на стене с дверью. Вытяжное должно размещаться напротив первого в крыше или в стене под потолком с подъемом воздуховода над кровлей порядка полуметра. Так тяга выйдет максимальной. При этом труба притока в сечении должна быть равной, а лучше немного меньше диаметра воздуховода-вытяжки. Если размеры сделать наоборот, то возможно опрокидывание тяги.

Схема расположения вентиляционных труб в гараже с ямой
- разницы температур воздуха внутри и снаружи;
- наличия на улице ветра и его силы;
- разницы давления между верхней точкой вытяжки и нижней притока;
- места расположения вентиляционных труб на фасаде и степени их утепления.

Как расположить вентиляционную шахту для лучшей тяги
Факторов влияния немало. Поэтому нередко приходится делать систему вентиляции, функционирующую благодаря принудительной тяге воздушных масс. Здесь расчет параметров еще проще.
Трубы можно взять вдвое меньше, чем в рассматриваемом выше варианте. Все равно обмен воздуха будет производиться за счет работы вентилятора. Его мощность подбирается исходя из кубатуры гаража и необходимой кратности воздухообмена. В подавляющем большинстве случаев вполне хватает осевой канальной модели на 100 Вт.
Трубы и отверстия располагаются так же, как и в варианте с естественной тягой. При этом самостоятельно сделать вентиляцию с принудительным обменом зачастую проще. Воздуховоды требуются меньше в диаметре. А значит и дырки в стенах пробивать придется меньшего размера. Однако по затратам такая вентиляция за счет наличия электрооборудования выйдет дороже обычного аналога.

Схема воздушных потоков потоков при разных типах вентиляции
Если устанавливается вентилятор, то следует брать модель с таймером. Оставлять его постоянно включенным невыгодно по деньгам (счета за свет выйдут немалыми) и опасно из-за риска пожара. Работающее электрооборудование без присмотра надолго бросать не стоит.

Схема естественной вентиляции в гараже
А так можно задать нужный режим, чтобы вентилятор включался на некоторое время для полного замещения воздуха в помещении, а потом сразу отключался. Ведь выстраивается система вентилирования гаража, а не вентиляция в ванной комнате и туалете, где воздушная циркуляция должна быть непрерывной.





