Оглавление
Сборка сверлильного станка своими руками: видео как сделать конструкцию, рекомендации
Хороший чертеж сверлильного станка из дрели своими руками – основное условие, чтобы обзавестись необходимым инструментом. Для создания такого станка не нужно применять особенные материалы и покупать дополнительные комплектующие.
Составляющие для конструкции самодельного сверлильного станка своими руками:
- станина (основание);
- вращательный механизм (дрель);
- приспособление, обеспечивающее подачу;
- вертикально расположенная стойка для фиксации дрели.

Для создания сверлильного станка из дрели не нужно применять особенные материалы и покупать дополнительные комплектующие
В освоении технологии изготовления сверлильного станка из дрели своими руками видео — материал может оказать неоценимую помощь.
Руководство по созданию сверлильного станка своими руками (как сделать простейшую конструкцию):
Для стойки лучше использовать ДПС, чтобы деталь получилась массивной или мебельную плиту толщиной более 20 мм. Это позволит свести на нет вибрационное воздействие инструмента. Допускается использование основания от старого микроскопа или фотоувеличителя.
Точность сверлильного станка из дрели своими руками зависит от направляющих (2 шт.). Они служат основой для перемещения колодки, на которой располагается дрель. Для изготовления направляющих лучше всего взять стальные полосы. Впоследствии они будут надежно прикручены шурупами к стойке.
Для колодки нужно взять хомуты из стали, благодаря которым на данной детали будет надежно закреплен вращательный механизм.
Для изготовленного своими руками сверлильного мини — станка необходим механизм подачи вращательного инструмента. Классическая схема конструкции предполагает использование пружины и рычага. Пружина закрепляется между колодкой и стойкой.
Существует множество приспособлений для заточки сверл своими руками, видео — материал поможет разобраться в этой теме.
Самая простая мышеловка в мире

Это название можно присвоить многим самодельным мышеловкам, изобретенными умельцами. Их объединяет одно – это гуманное обращение со зверьками, попавшими в ловушку. Устройство не убивает животное, а изолирует его. Несколько примеров, как сделать простую мышеловку:
Пластиковая воронка
Разрезают пластиковый 3 литровый баллон пополам. Отрезанную горловину переворачивают и вставляют её в нижнюю часть бутыли. На дно насыпают приманку (семечки, зерно и прочее).
Ловушку ставят вплотную предмету, по которому мышь могла бы взобраться. Грызун, провалившись в воронку, уже не может выбраться из бутыли.
Консоль
Конструкция представляет собой опрокидывающуюся площадку. Её делают из куска картона или пластика. Планку помещают на плоскости так, чтобы её половина повисала в воздухе.
На край консоли помещают приманку так, чтобы планка была на грани равновесия. Зверёк, дойдя до приманки, опрокидывает планку и падает вместе с ней в подставленное ведро.
Подвеска
На край стола кладут пустую пластиковую бутылку с приманкой на дне. К горлышку крепят шнур, проткнув пластик крючком из канцелярской скрепки. Другой конец шнура привязывают к какой-либо опоре.
Мышь, привлечённая запахом пищи, проникает в ёмкость. Бутылка опрокидывается под тяжестью грызуна и повисает на шнуре.
Простейшие приспособления для подзарядки аккумулятора
Иметь полноценную автомобильную зарядку хорошо, но иногда довольно накладно, тем более, что ее функцию могут выполнять и более дешевые устройства. Так с полноценной зарядкой автомобильного аккумулятора емкостью до 75 ампер-часов вполне может справиться зарядное устройство от ноутбука.
Причем, переделок никаких производить не нужно, а достаточно включить в цепь автомобильную 12-вольтовую лампу мощностью 55 ватт и периодически контролировать степень заряженности аккумулятора мультиметром.
При достижении показателя в 13 – 13,5В следует прекратить зарядку – аккумулятор полностью заряжен
Кроме этого крайне важно не перепутать полярность. Такое использование адаптера нисколько ему не вредит. Вообще без всяких переделок с функцией подзарядки довольно хорошо справляются зарядные устройства для 12-вольтового аккумуляторного электроинструмента, а на большинстве из них и светодиоды, сигнализирующие о полном заряде аккумулятора, имеются
Вообще без всяких переделок с функцией подзарядки довольно хорошо справляются зарядные устройства для 12-вольтового аккумуляторного электроинструмента, а на большинстве из них и светодиоды, сигнализирующие о полном заряде аккумулятора, имеются.
Старый блок питания от компьютера также способен немного подзарядить севший аккумулятор до уровня, достаточного для запуска машины. Он имеет выходное напряжение 12В, а для полной зарядки нужно, чтобы оно было до 14В, но незначительные переделки могут это напряжение обеспечить.
Оборудование спецназначения
Любой спец по ремонту автомобилей использует приспособы, которые сложно назвать штатными, но они здорово облегчают вашу жизнь. Рассмотрим некоторые из них:
ворот для мест с трудным доступом. Если вам сложно добраться до болта, ворот с трещоткой поможет вам справиться с ним без лишних усилий;

- игольчатый пневмоударник. Снимает любую окалину, ржавчину и краску не хуже пескоструйного аппарата. Иглы (12 или 19 шт.) расположены на рукоятке, которая присоединяется к компрессору. При помощи пневматики это приспособление очень эффективно выстукивает и очищает поверхность;
- гайколом — накидное кольцо с режущим зубом внутри. Если проржавевшая гайка не поддаётся, накидываем кольцо, прижимаем режущий зуб и прилагаем усилие, пока гайка не сломается. Резьба болта при этом остаётся целой: надеваем новую гайку, делаем проход со смазкой — и проблема решена;

- набор крючков для отсоединения пластиковых креплений электрических разъёмов;
- электронный цифровой адаптер для ключа с трещоткой — он показывает момент, с которым вы затягиваете резьбовое соединение;
- магнитная пластина — складывайте на неё все гайки и болты. Тогда они не потеряются;
- зеркало и рукоятка с магнитами. Используются для визуального контроля работы с гайками в труднодоступных местах. Для вынимания гаек применяем ручку с магнитной насадкой;
- обычный динамометрический ключ;
- набор для высверливания болтов со сломанной шляпкой;
- цифровой электрический тестер.

Переносной ящик для пива
Ящик для напитков в стеклянной таре — удобное приспособление для одновременной переноски нескольких бутылок на природе или на пикнике. Чтобы сделать такую коробку своими руками, вам потребуются следующие инструменты и материалы:
Инструменты
- болгарка;
- головоломка;
- отвертка-дрель;
- дрель;
- пила по дереву;
- молоток;
- перьевое сверло.
- стамеска;
Материалы (править
- полоски из фруктовой коробки — 5 шт.;
- обрезной край — 1050 х 170 х 15 мм;
- ручка ø 36 мм и длина 350 мм;
- пятно;
- винты;
- гвоздь.
Пошаговая инструкция по сборке коробки
- Доска обрезная распиливается на три одинаковые части (нижняя и две боковые стенки) длиной по 350 мм каждая.
- Две доски вырезаются лобзиком так, чтобы от центра боковые стенки становились тоньше и заканчивались овальной вершиной.
- В верхней части боковых стенок перьевым сверлом просверливаются отверстия ø 36 мм.
- Все деревянные детали очищаются шлифовальной машиной с абразивным кругом. Ручка отшлифована вручную наждаком.
- по краям дна просверливается 4 отверстия тонким сверлом. Снизу гнезда отверстий зенкованы.
- Борта устанавливаются по бокам днища. Саморезы прикручиваются снизу снизу. Головки винтов «прячутся» в пазах отверстий.
- По бокам прибиваются по две планки шпильками с каждой стороны ящика. Они станут вертикальным ограждением для бутылок.
- В трех планках сделаны прорези так, чтобы, сложив их, получился ящик с квадратными отверстиями для стеклянной тары.
- Поворот укладывается снизу между боковыми стенками.
- Гвоздики прибивают в тех местах, где торцы обрешетки упираются в боковые стенки и перила.
- В отверстия в верхней части боковых стенок вставляется шток диаметром 36 мм.
- Забивая гвозди под углом, зафиксируйте ручкой боковые стенки.
- Вся поверхность коробки обработана морилкой.
Коробка готова к использованию. В портативном контейнере можно бесплатно разместить 6 бутылок пива или другого напитка. Обрешетка и перила ящика предотвратят поломку или падение бутылок во время транспортировки.
Создание полезных приспособлений для гаража своими руками
Чтобы осуществлять ремонтные и сервисные работы, потребуется соорудить смотровую яму в гараже своими руками, размеры которой будут соответствовать габаритам авто, а также верстак для удобной работы, плюс снабдить помещение станками.
Основной набор инструментов и материалов для создания самодельного верстака для гаража включает:
- доски и деревянные бруски;
- крепежные элементы и стяжки;
- рубанок и другие инструменты для обработки дерева;
- лакирующий и столярный клеевые составы;
- наждачную бумагу и олифу.
Пример размещения в гараже полезных приспособлений: 1 — верстак с ручными станками, 2 — стеллажи и шкафы, 3 — стол для проведения различных ремонтных работ, 4 — полка для хранения шин, 5 — смотровая яма
Технология изготовления верстака в гараже своими руками: фото, чертежи
Верстак состоит из столешницы и подстолья, а также нескольких устройств зажимного типа. Высоту верстака в гараже следует подбирать с учетом собственного роста. Можно взять в качестве ориентира высоту кухонного стола в доме, за которым удобно работать. Обязательно составьте для создания верстака для гаража своими руками чертежи.
Обустройство гаража: как сделать верстак в помещении:
| Этап работы | Детали, размер в см | Тип крепления |
| Сборка столешницы | 20 досок (5х10х200) с пазами 2,5х2,5 в 5-ом и 16-ом элементе (шаг 25) | Клеевой состав металлические стяжки |
| Сушка | — | — |
| Изготовление ножек (4 шт.) | Брусок (10х10х80) с пазами под кронштейны на передних опорах | Кронштейны |
| Сборка основания подстолья | Рамы (2 шт.) из досок (5х10) | Соединение «в шип» на глубину 2,5 см и болты |
| Фиксация боковых и задних опорных стенок | Плиты ДСП (толщина 10 мм) | Шурупы |
| Фиксация столешницы к верхней раме | — | Болты |
Заключительная обработка предполагает пропитку готового изделия олифой и вскрытие лаком.
Рекомендации по созданию смотровой ямы в гараже своими руками
Не существует определенных размеров смотровой ямы в гараже. В качестве основы берутся габариты автомобиля.
Как сделать смотровую яму в гараж с оптимальными параметрами:
Ширина подбирается с тем расчетом, чтобы внутри было достаточно места для работы. Размер ограничен расстоянием, на которое посажены колеса авто. Каждое колесо нуждается в небольшой площади для выполнения маневров. Средняя ширина ямы составляет 0,8 м. Длина ямы ограничивается длиной машины. К этому показателю следует добавить 1 м. Для расчета глубины используется рост владельца гаража. К нему прибавляется еще 10-15 см.
Как правильно сделать смотровую яму в гараж с использованием разных материалов:
| Материал | Толщина стенок, см |
| Керамический кирпич | 12-25 |
| Бетон | 15 |
| Строительные блоки | 20 |
Котлован вырывается с учетом оптимальной ширины ямы, материала, выбранного для стенок, а также толщины гидроизоляционного слоя. Этапы создания ямы:
- разметка;
- строительство котлована;
- обустройство котлована;
- строительство стен;
- прокладка освещения.
Для гидроизоляции стен применяется специализированная гидрофобная пропитка.
Схема обустройства смотровой ямы: 1 — стенки из пеноблоков, 2 — гидроизоляция, 3 — бутовая кладка. 4 — уголок размером 50х50х4 мм
Изготовление пресса для гаража своими руками
Для создания пресса следует изготовить из 4 отрезков металлических труб каркас размером 178х80 см. Эти элементы соединяются методом сварки. В работе рекомендуется руководствоваться чертежами, заранее подобранными или составленными. После этого нужно установить:
- фиксатор;
- съемный упор;
- бутылочный домкрат (гидравлический).
Можно использовать для рассмотрения подробной технологии создания полезных приспособлений для гаража своими руками видео-материалы. Такие наглядные рекомендации помогают сориентироваться в размерах, освоить пошаговые инструкции и представить, какой внешний вид должна иметь готовая конструкция.
Схема изготовления гидравлического пресса: 1 — верхняя силовая платформа, 2 — гайки, 3 — нижняя платформа, 4 — шпильки диаметром 30 мм, 5 — нижняя резьба шпилек, 6 — гидравлический домкрат бутылочного типа; 7 — основание толщиной 20 мм
Обустройство гаража можно сделать собственными руками. На этом список полезных приспособлений не заканчивается. Его всегда можно дополнить любыми интересными идеями. Главное, чтобы гараж полностью соответствовал личным требованиям в отношении комфорта и удобства.
https://youtube.com/watch?v=D1BKvgCBg8Q
Ударная отвёртка из стартера
Бывают ситуации, когда открутить заржавевший болт или винт обычным инструментом невозможно. Ударная отвёртка с этим делом отлично справляется. Инструмент изготавливают своими руками из деталей автомобильного стартёра:
- Из корпуса стартёра извлекают вал и втулку.
- Часть вала срезают, оставляя стержень со шлицами.
- На втулку одевают отрезок трубы, подходящего размера.
- К концу трубы приваривают обрезок болта равного диаметра.
- Конец вала обтачивают в форме четырёхгранника, на который одевают головки нужного размера. Для винтов в головку вставляют биту.
При ударе молотком по головке болта, вал скользит скошенными шлицами внутри втулки, совершая вращательное движение. Чем сильней удар, тем с большим усилием проворачивается вал.
Фрезерные станки с ЧПУ для дерева и по металлу
При фрезеровании деревянных деталей программное обеспечение позволяет значительно расширить возможности станка и качество обработки. Для его формирования устанавливаются такие элементы, как порт LPT и блок ЧПУ. Для изготовления копировального блока можно использовать каретки старого матричного принтера.

Сборка фрезера для дерева осуществляется в следующем порядке:
- Столешница изготавливается из ДСП или фанеры толщиной не менее 15 мм.
- Делается вырез для фрезы и ее установка.
- Закрепляется привод, трансмиссия и шпиндель станка.
- Устанавливаются упоры и ограничители.
Сборка фрезера по металлу требует более прочного основания для станка:
- Монтаж колонны и станины в форме буквы «П». Элементы делаются из стального швеллера. В П-образной конструкции перемычку образует основание самого инструмента.
- Направляющие элементы выполняются из стального уголка и на болтах устанавливаются на колонну.
- Направляющие консоли выполняются из прямоугольной трубы. В них вставляется винтовой штырь. Движение консоли обеспечивается с помощью автомобильного домкрата на высоту до 12-15 см.
- Рабочая столешница изготавливается из ДСП или фанеры.
- На столешнице закрепляются тиски, направляющие из металлического уголка, штыревые фиксаторы.
- Вращающаяся часть устанавливается так, чтобы вал располагался вертикально.
Создание самодельного станка для ковки

Что касается размещения шаблонов – нужно размещать их так, чтобы они были на расстоянии друг от друга, но и не стоит располагать их слишком близко, тесня при этом. Во время процесса ковки детали могут смещаться из-за нехватки места, а если детали будут слишком далеко друг от друга, процесс ковки может значительно усложниться.








Насадки же можно менять при помощи прорези формы прямоугольники. В нее можно будет совать модели для ковки на смену.

Приделаны они должны быть к металлическим планкам, которые, в свою очередь, будут иметь форму прямоугольника. Что касается насадок, их крепление будет осуществляться с помощью обычных болтов.

Распылитель из шприца
Когда столяр заканчивает выпиливать какую-либо фигуру, следующим шагом является покраска своего творения. В этом деле поможет распылитель из шприца. Этот инструмент является дешевым аналогом специальных пистолетов. Инструкция по изготовлению:
- Самый кончик шприца отпиливается, чтобы шарик упал.
- С помощью маленького лезвия стержень разделяется на две равные части.
- Часть ручки с пружиной убирается.
- Спереди стержня делается овальное отверстие.
- Половины паяются друг с другом под углом в сорок пять градусов.
- Отверстие в носу необходимо расширить под иглу номер пять или номер восемь — небольшие иглы используются для окрашивания небольших участков, в то время как крупные иглы — для больших поверхностей.
- Хвост пистолета расширяется до конуса, чтобы туда крепко вошла игла.
- С переднего конца прикрепляется проволока для удобной центровки иглы в носу стержня.
- По завершении паяния корпуса выступающая часть иглы обрабатывается так, чтобы она была идеально ровной, после чего проволоку можно вытащить через кольцевую щель.
При работе с данным приспособлением нет никаких сложностей. В корпус иглы помещается заполненный краской шприц, после чего можно спокойно окрашивать все необходимые детали.
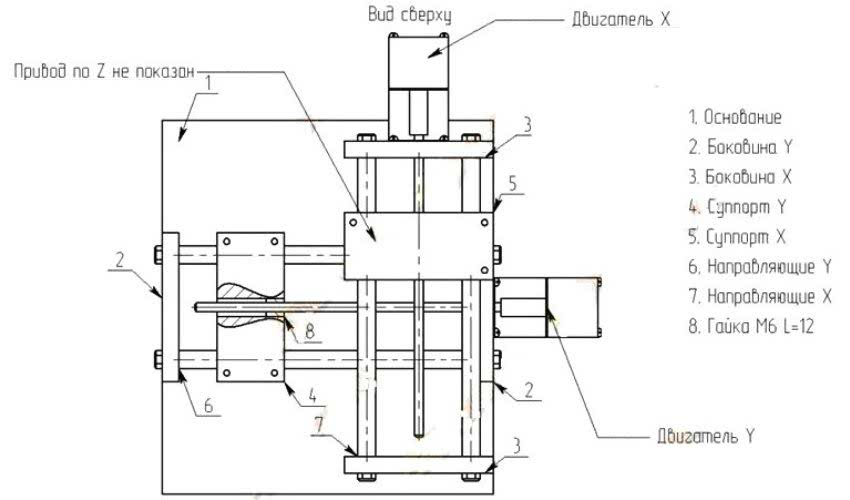
Особенности фрезерных станков с ЧПУ своими руками
Программное обеспечение считается важной составляющей во фрезерном станке с ЧПУ по дереву своими руками. Чертежи обычной конструкции с учетом этого условия должны включать дополнительные элементы под него:
- порт LPT;
- блок ЧПУ.
Сборка фрезерного станка по дереву для домашней мастерской
На первом этапе составляются для фрезерного станка по дереву своими руками чертежи, которые включают информацию о размещении всех компонентов конструкции, их размеры, а также способы фиксации.

Схема фрезерного станка с ЧПУ
Далее собирается опорная рама из труб, заранее нарезанных на детали необходимого размера. Для скрепления нужно использовать сварочный аппарат. Затем выполняется контроль размерных параметров, чтобы приступить к изготовлению рабочей поверхности.
Действовать нужно в рамках следующей схемы:
На ДВП плиту наносится разметка и вырезается из нее столешница.
Если фреза будет размещаться вертикально, в плите нужно сделать вырез для нее.
Выполняется монтаж шпинделя и электрического двигателя. При этом шпиндель не должен выходить за плоскость рабочей поверхности.
Устанавливается ограничительная планка.
Обязательно перед работой стоит провести испытания станка. Включенный фрезер не должен слишком сильно вибрировать. Чтобы скомпенсировать этот недостаток рекомендуется дополнительно устанавливать ребра жесткости.

Важнейшим требованием к станкам для мастерской является безопасность эксплуатации
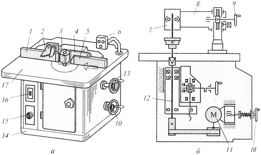
Сборка фрезерного станка по металлу своими руками
Пошаговая инструкция по изготовлению самодельного фрезерного станка по металлу:
Колонна и станина изготавливаются из металлического швеллера. В результате должна получиться конструкция П-образной формы, где в качестве нижней поперечины выступает основание инструмента.
Из уголка выполняются направляющие. Материал необходимо отшлифовать и соединить с колонной болтами.
Из профильной трубы с квадратным сечением изготавливаются направляющие для консоли. Сюда нужно вставить штыри, имеющие навинченную резьбу. Перемещение консоли будет осуществляться за счет автомобильного домкрата ромбовидного типа на высоту в 10 см. При этом возможности амплитуды в сторону составляют 13 см, а столешница может перемещаться в рамках 9 см.
Рабочая поверхность вырезается из фанерного листа и крепится винтовым способом. Головки крепежа нужно утопить.
На рабочую поверхность выполняется монтаж тисков, изготовленных из трубы с квадратным типом сечения и металлического уголка, сваренных между собой. В качестве фиксирующего заготовки элемента лучше использовать штырь, покрытый резьбой.

Схема устройства фрезерного станка (а — общий вид, б — кинематическая схема): 1 , 5 — направляющие линейки; 2 — зубчатый сектор; 3 — фреза; 4 — ограждение; 6 — пульт управления; 7 — дополнительная опора шпинделя; 8 — кронштейн; 9 — маховичок подъема кронштейна; 10 — маховичок натяжения ремня; 11 — электродвигатель; 12 — шпиндель; 13 — маховичок настройки шпинделя по высоте; 14 — станина; 15 — переключатель частоты вращения шпинделя; 16 — выключатель; 17 — стол
После этого нужно прикрепить к шпинделю конус (Морзе 2) и выполнить на него установку цангового или сверлильного патрона.
Простое копеечное самодельное приспособление для сбора ягод
Рекомендуем это приспособление для Самоделкиных.

Крыжовник – ягода вкусная и полезная. Само по себе растение вполне неприхотливое, никакого особенного ухода не требует. Ягоды вырастают крупные, собирать их достаточно удобно. И все бы ничего, если бы не колючие ветки крыжовника. Из-за этих огородных “кактусов” раньше руки постоянно были в мелких царапинах. И несколько раз еще подумаешь “а надо ли оно тебе – столько ягод” прежде чем полезешь вглубь куста за урожаем. Но несколько лет назад муж облегчил мне жизнь. Он подсмотрел в интернете одно очень простое, но полезное приспособление для сбора ягод. Для чего оно пригодится и чем полезно?

На самом деле такой сборщик можно использовать не только для сбора крыжовника. Я использую его и для сбора любых других ягод/фруктов в труднодоступных местах, куда так просто рукой не дотянуться. Например, чтобы снять сливы, вишни или яблоки с высоких веток. Как сделать приспособление для сбора крыжовника?Все гениальное – просто! Берем пластиковую бутылку и сбоку вырезаем отверстие в форме капельки. В зависимости от того, для каких ягод/фруктов у вас предназначен сборщик, такой и делаем диаметр капли. Для крыжовника достаточно и 5-7 см, для яблок и слив побольше, чтобы не приходилась долго целиться и стараться попасть в плод. Объем бутылки будет также зависеть от того, что вы будете собирать. Для ягод лучше подойдет бутылка 0,5 л.

Носик капельки должен быть направлен ко дну бутылки. Можно еще сделать надрез пару сантиметров в продолжение носика, чтобы лучше захватывалась веточка. Все, наше приспособление готово! Собирать ягоды будем держа его за горлышко.
С ним делать это действительно гораздо проще. Мало того, что руки остаются без царапин, так еще и работа идет быстрее. Ведь собранный урожай будет ссыпаться в верхнюю часть бутылки. Соответственно не нужно после каждой ягодки “вылезать” из куста, складывать урожай в бидон или банку и лезть снова. Плюс мы сможем достать ягоды даже с самых труднодоступных мест. А самое главное – что такое приспособление делается за 3 минуты, не стоит ни копейки, а жизнь упрощает в разы. Если оно потеряется, испачкается, не беда – без проблем сделаем другое! Так что, садоводы, берите на вооружение! Если статья была вам полезна, ставьте “палец вверх” и подписывайтесь на канал для дачников и садоводов “САДОёЖ”. Источник
Не выбрасывай старый амортизатор, если у тебя нет обратного молотка. Полезная самоделка
Из старой стойки амортизатора может получиться весьма полезная вещь, поэтому не стоит ее выбрасывать при замене. Сегодня я расскажу о том, как изготовить очередную самоделку, которая способна облегчить быт автовладельца в плане ремонта его транспортного средства. А именно, как изготовить обратный молоток.
С его помощью очень удобно разбирать детали, снимать подшипники, шрусы или осуществлять запрессовку. Даже вмятину не сложную можно вытянуть, но если к такому молотку будет еще прилагаться и мощный магнит.
Разборка стойки амортизатора.
Чтобы можно было сделать со стойки полезную вещь нужно правильно его разобрать. Лучше всего для этой цели подходит ВАЗовская стойка. С нее пригодится верхняя часть и сам шток. Зажав стойку в слесарные тиски, болгаркой нужно аккуратно отпилить часть трубки до тарелки, где стоит пружина
Пилите осторожно, не забывая что внутри есть масло! Поэтому лучше подставить посудину. Со стойки нужно снять все элементы, разобрать и оставить один шток и верхнюю крышку (вынув из нее сальник и втулку)
Изготовление обратного молотка.
Чтобы сделать полноценный обратный молоток, к штоку из амортизатора необходимо приделать ручку, подвижную гирю и насадки которые будут использоваться.
Как сделать рукоятку.
Удобнее всего прикрепить хомут ручки от дрели или перфоратора, если же такой нет, то прикрепите любой хомут, который бы напоминал ручку. Главное чтобы было удобно держаться.
Этот хомут нужно закрепить на той части штока, где имеется резьбовое соединение. Для этого наденьте две гайки – они будут в качестве втулок. Затем нужно их хорошо приварить. Потом к тем гайкам приварить верхнюю крышку штока. Для аккуратности вида можно сточить болгаркой лишние капли, оставшиеся от сварки. После чего можно прикрутить ручку (хомут).
Как сделать подвижную гирю.
Чтобы сделать подвижную гирю, пригодится отрезанная верхняя часть стойки, а еще необходимо подобрать трубу нужного диаметра. Таким образом, чтобы она входила в трубку части стойки и осталось место для залива свинцом. Ведь такая конструкция будет легкой, а гирька должна весить хотя бы килограммчик.
Зачистите поверхности, отцентрируйте гайками и соединив основания двух цилиндров, можно приваривать их внизу. После сварки также нужно все зачистить (для эстетического вида). В свободное пространство, для увеличения веса, залейте свинец (думаю валяется старый АКБ). Как плавить учить никого не буду, наверняка каждый имеет такой опыт, ведь хоть раз в детстве плавил в консервной банке свинцовые пластины от аккумулятора.
Так как все парни уже повзрослели, то вместо банки можно использовать корпус от старого масляного фильтра, а дабы не разводить костер, возьмите горелку. Аккуратно залив свинец в имеющееся пространство, дайте ему остыть, а затем можно зачистить получившуюся гирю болгаркой. Должна получится достаточно красивая вещь. Теперь можно устанавливать гирю на шток.
Чтоб такой молоток можно было использовать по максимум в различных целях наделайте насадок, которые бы накручивались. Это могут быть как зацепы с болтов, для съема подшипников, так и насадка под головку. В итоге можно будет снимать подшипники, запрессовывать их стягивать ШРУС и располовинить генератор. Поэтому, вместо того, чтобы выбрасывать старую стойку, лучше сделать из нее такое вот нужное приспособление.
Многие автовладельцы используют свой гараж в качестве мастерской, наполняя его постепенно практичными приспособлениями, облегчающими ремонт и обслуживание авто. Многие из них можно изготовить самостоятельно, используя рекомендации, представленные в данной статье.
Многие приспособления для гаражной мастерской можно сделать самостоятельно, видео ниже, демонстрирует некоторые из них.
Гаражные самоделки – приспособления, существенно облегчающие гаражную жизнь, кроме того работают они не хуже заводских станков. Оснастив свою мастерскую такими приспособлениями, можно самостоятельно изготовить нужные детали для авто, а также различные поделки для дома или дачи.
Самодельный циркулярный пильный станок
Отрезной станок из болгарки, сделанный своими руками, не уступает некоторым образцам заводского изготовления. Болгарка представляет собой довольно мощную ручную циркулярную пилу.
Станок на основе болгарки выполняет точные резы пиломатериалов и металлопрофиля. Для его изготовления понадобится сам электроинструмент, сварочный аппарат и металлопрофиль.
Пошаговая инструкция сборки станка
- К отрезку трубы приваривают две металлические планки, в которых просверливают монтажные отверстия.
- Соответственно, в кожухе болгарки тоже делают два отверстия.
- Планки прикручивают болтами к кожуху.
- Делают станину станка из металлического листа с приваренными снизу опорными уголками.
- Сваркой крепят к станине вертикальный отрезок уголка, в котором просверливают отверстие.
- К нижнему концу рычага приваривают отрезок уголка и просверливают вместе с трубой насквозь.
- Болт продевают через отверстия и гайкой затягивают шарнирное соединение вертикальной стойки с рычагом. Дополнительно устанавливают контргайку.
- В вертикальном положении рычаг болгарки принимает устойчивое положение.
- В месте соприкосновения пильного диска со станиной делают пропил, чтобы диск мог полностью разрезать заготовку.
- Ручку электроинструмента переставляют на конец рычага.
- В качестве дополнительных приспособлений, на станине устанавливают поперечный и угловой упор.

При необходимости электроинструмент снимают со станка и используют циркулярную пилу в ручном режиме.
Самодельная лучковая пила
Лучковая пила удобный инструмент для распиловки стволов деревьев и пиломатериалов. Конструкция пилы простая, сделать ручной инструмент своими руками несложно. Для этого нужно приготовить инструменты и материалы:
Инструменты
- дрель;
- пила-ножовка;
- стамеска;
- молоток;
- нож.
Материалы
- шнур;
- деревянная рейка 20 х 40 мм;
- шплинты – 2 шт.;
- черенок ø 10 мм;
- пильное полотно;
- морилка;
- лак по дереву.
Пошаговая инструкция по изготовлению лучковой пилы
- Рейку распиливают на три части (две вертикальные боковые планки и среднюю горизонтальную планку).
- В боковых ручках стамеской делают пазы.
- На концах средника стамеской вырезают выступы под пазы.
- Средник соединяют с боковыми ручками.
- В местах соединений просверливают сквозные отверстия. В них забивают деревянные шплинты.
- Шплинты образуют шарнирные соединения. Это нужно для подвижности нижних концов боковых реек при натяжении полотна.
- В нижних концах боковин делают пропилы – параллельно среднику.
- В отверстия пильного полотна вставляют короткие болтики и затягивают их гайками.
- Полотно заводят в пропилы таким образом, чтобы болты оказались снаружи конструкции.
- На верхних концах ручек вырезают круговые канавки.
- На концах двойного шнура делают петли, которые одевают на канавки.
- Между тетивами шнура вставляют черенок, длинный конец которого упирается в средник.
- Тетиву пилы закручивают с помощью черенка, добиваясь нужной степени натяжения пильного полотна.
- Древесину покрывают морилкой и двумя слоями лака.
- После высыхания лака пила готова к работе.
Инструмент самодельщика всколыхнул сеть

Это видео всколыхнуло сообщество любителей изобретений в мировой сети. Мастер годами думал над этой идеей и наконец вынес на всеобщее обсуждение гениальную по простоте и радикально выгодную идею для тех, кто раньше долбил стены перфоратором, реализую свои наклонности дятла и гениального строителя-шлифовщика, а теперь может совершенно бесплатно сделать себя богачом, работая в тиши мастерской в гараже или даже в отдельно стоящем строении.
И при этом не надо тратить деньги и вынимать из заначки деньги, припасенные на пиво. Все это бесплатно – мастер любит показывать всему миру полезняки, которые придумывает.





