Оглавление
Шаг 5 – Приступаем к работе
Ответом на вопрос “как сделать ворота из профнастила?” будет следующий алгоритм:
- Устанавливаем опорные стойки: закапываем в землю на необходимую глубину и бетонируем.
- Изготавливаем рамы створок, для чего режем металлические трубы и крепим сваркой под углом в 45 градусов, усиливаем каркас перемычками или уголками, зачищаем швы и красим всю поверхность.
- Фиксируем петли или навесы.
- Крепим на каркас профнастил заклепками, саморезами.

Дополняем конструкцию необходимой фурнитурой (замком, нижним фиксатором, засовом, автоматической системой, осветительными приборами, сигнализацией и т.д.)

Металлопрофильные ворота, монтаж своими руками
Ворота из металлопрофиля достаточно распространены, именно о них мы и поговорим, а также приведем подробные инструкции, как правильно установить ворота из металлопрофиля своими руками. Прежде чем приступать к монтажу ворот, необходимо определиться, как они будут выглядеть, и составить примерный чертеж.
Расчеты для монтажа
Он поможет рассчитать объем и вид материалов, которые понадобятся при постановке ворот.
Из материалов необходимо будет приобрести:
- металлический профиль круглого или квадратного сечения, с диаметром не менее 100мм, он нам понадобится для организации столбов. Совет при расчете длины профиля: к высоте ворот следует прибавить глубину, на которую он будет бетонироваться и высоту зазора между створками ворот и землей;
- уголок или квадратный профиль, который пойдет на изготовление каркаса и ребер жесткости ворот. Совет: уголок легче и практичнее, чем квадратный профиль;
- антикоррозионную жидкость, которой будут обрабатываться используемые материалы — грунтовку и краску;
- петли для ворот, и конечно, замок.
Материалы для монтажа
Для работы будем использовать следующий инструмент:
- отвес и капроновую нить;
- сварочный полуавтомат;
- для установки и фиксации столбов понадобятся бур и кувалда;
- ножницы по металлу и болгарка.
Инструменты для монтажа
Установка ворот начинается с разметки и установки столбов. При их монтаже следует учитывать размер и вес конструкции, чем она больше и тяжелее, тем крепче должны быть установлены столбы. Для обычных ворот, как правило, используют по две петли на сторону. Чтобы увеличить общую надежность конструкции, можно установить три завеса на одну створку ворот. На их стоимости это не сильно скажется, зато увеличит их надежность и долговечность.
На заранее выбранном месте наносим разметку под столбы, в точках которой вырываем ямы в два раза большего диаметра, чем сама труба и глубина которой должна составлять не менее чем 1 метр. Берем трубу и при непосредственной помощи болгарки отрезаем необходимую длину с учетом глубины закапывания и нужным зазором между воротами и землей. Следующим этапом устанавливаем их в яму и засыпаем щебнем и заливаем бетоном. Совет: столбы следует устанавливать строго перпендикулярно относительно земли, если не соблюсти эту рекомендацию, можно получить кривые ворота, этот дефект не будет возможности исправить в будущем.
Для раствора используем цемент марки 300, который следует разводить в соотношении 1 к 3. Сухую смесь постоянно мешаем до однородности и затем медленно вводим воду, до тех пор, пока раствор не придет к жидкому состоянию, он при заливке должен заполнить все полости и пустоты. Их присутствие серьезно ухудшит прочность конструкции. Бетону для полного высыхания и окончательного схватывания требуется не менее суток.
Многие, вокруг металлических труб устраивают короб из кирпичной кладки, который не только хорошо смотрится, а и способен усилить конструкцию. Для него раствор готовится по тому же принципу, что и для заливки, единственное отличие — он должен быть густым, а не жидким.
Крепление запорных устройств к створкам
К навешенным и обшитым створкам монтируется замок, который может быть:
- Навесным. На этапе создания каркаса предусматриваются петли под замок.
- Накладным. Монтируется к поперечной перемычке (если она есть) или на наваренный к раме небольшой плоский металлический лист. Альтернатива ‒ прикрутить метизами прямо к каркасу. Не рекомендуется приваривать замок ‒ это сокращает срок его службы.
- Врезным. Механизм врезают в полость трубы. Место декорируют металлическим карманом.
Кроме замка потребуется закрепить:
- Нижний фиксатор. Отвечает за равномерное распределение нагрузки с замка. Позволяет дополнительно закрепить низ створки при сильном ветре.
- Засов (запор). Нужен для закрытия ворот со двора. На калитку ставится небольшая защелка.
- Автоматику. Устанавливается по желанию. Позволяет контролировать работу створок дистанционно.
В дополнение хозяева монтируют систему видеонаблюдения, домофон и сигнализацию.
Пользователи часто ищут:
- Как подключить электромеханический замок на калитку
- Установка магнитного замка на калитку
Ворота из профнастила своими руками — предпочтительная конструкция
Наиболее просты и надежны распашные ворота из профнастила. Большая часть ворот индивидуальных приусадебных и дачных участков имеют именно такую конструкцию. Особенность ее заключается в том, что ворота состоят из двух створок, открывающихся в разные стороны. Это позволяет вдвое уменьшить нагрузку на опорные столбы и максимально ограничить свободное пространство, необходимое для их открывания.
Для легких ворот из профнастила это не так существенно, как для значительно более тяжелых металлических. Но чем меньше нагрузка на опорные столбы ворот, тем меньше вероятность их перекоса и деформации в дальнейшем. Уменьшается также и нагрузка на петли, и они значительно меньше изнашиваются при эксплуатации. Да и для открывания створок ворот требуются гораздо меньшие усилия.
Второй тип — это откатные ворота из профлиста. В этом случае есть только одна секция, которая отодвигается параллельно забору при открытии. Такая конструкция имеет свои преимущества:
- легкость автоматизации;
- минимальные усилия для открытия в условиях обильных снегопадов;
- нет необходимости в свободной площади перед или за воротами для их открытия.
Однако сделать ворота из профнастила подобной конструкции самостоятельно — очень тяжело. Во-первых, необходимо правильно рассчитать массу противовеса, чтобы ворота открывались без лишних усилий и, тем более, не перекосились. Во-вторых, нужно сделать мощный фундамент для опорной части ворот. И, в третьих, сложно правильно сварить ворота из профнастила подобной длины без практики и специального оборудования. Если вам нужна еще и автоматизация — то без помощи специалиста уже не обойтись.
Наконец, третий тип — это сдвижные ворота. Они имеют черты как распашных, так и откатных конструкций. Такие ворота состоят из двух створок, которые раздвигаются в стороны вдоль забора. Они сочетают в себе преимущества двух предыдущих конструкций, однако, не лишены и недостатков.
В первую очередь, для сдвижных ворот также важен правильный расчет противовеса. Пусть небольшие ошибки в данном случае не так фатальны за счет вдвое меньшей ширины полотна, но они обязательно скажутся «на дистанции» в виде перекоса, а также быстрого износа направляющих и роликов.
Кроме того, под такие ворота необходимо два опорных фундамента, причем по конструкции и размерам они не сильно будут отличаться от фундамента для откатных ворот. Также в подобной конструкции существуют проблемы с реализацией калитки. Поэтому, опять-таки, сделать такие ворота с профнастила своими руками — слишком сложно, поэтому далее остановимся на распашной конструкции как на самой простой в реализации.
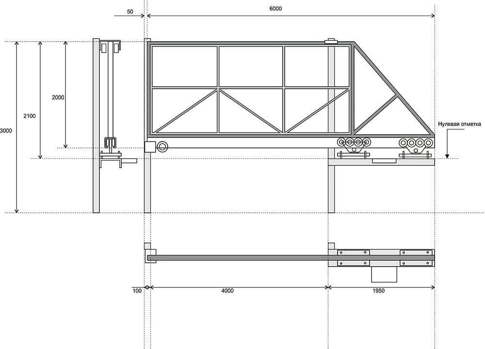
Ворота откатные из профнастила: цена конструкции
Откатные ворота удобны в эксплуатации, но имеют более сложную конструкцию. Существует два наиболее распространенных вида. Откатные ворота с нижним расположением роликов и направляющим рельсом имеют один существенный недостаток — постоянно требуется очистка жёлоба от дорожного мусора, а зимой — от снега и льда.
Наиболее распространены откатные ворота, оснащенные верхним расположением направляющего рельса и откатными роликами. Такая конструкция при всех своих достоинствах имеет некоторые недостатки. Если рельс находится над рабочей зоной, то существуют ограничения высоты въезжающих транспортных средств.
ФОТО: otkatnie-vorota.comРоликовый инструмент для отката нужно периодически обрабатывать, чтобы не ржавел
Расположение направляющего рельса вдоль забора, вне рабочей зоны, требует значительного увеличения полотна ворот. На такой тип откатных ворот из профнастила цена будет значительно выше из-за большего количества затраченного материала и большого объема бетонного фундамента. Зачастую она составляет не менее 5 тысяч рублей за 1м2. Как правило, стоимость с установкой начинает варьироваться от 6-7 тысяч рублей.
ФОТО: stroypomochnik.ruСхема изготовления откатных ворот из профнастила
Виды конструкций, способы открытия
Перед строительством стоит учесть, что ворота бывают:
- Одностворчатые. Используются редко, поскольку требуют много места для открытия. Их минус ‒ большая парусность. Этого можно избежать, если установить усиливающие детали к каркасу. Но в этом случае возрастает нагрузка на петли и появляется риск деформации створки. Этот способ подходит для небольших по ширине ворот, а лучше – калитки.
- Двухстворчатые. Конструкция с двумя дверьми. Бывают одинаковыми по ширине или разными. Обладают устойчивостью к порывам ветра. Наиболее популярный вариант. Стоят они дороже предыдущего типа из-за большего количества петель, фурнитуры.

Открываться ворота могут:
- Механически. Работа контролируется вручную с помощью ключа, засова. Не зависят от подачи электроэнергии. Недорогой, легкий монтаж. Часто хозяева собирают такие ворота сами. Но по времени процесс открытия и закрытия занимает много времени.
- Автоматически. Ворота с дистанционным управлением можно открыть, не выходя из машины или дома. Удобный способ контроля за работой гаражных, входных створок. Требуют наличия бесперебойного источника электроэнергии. Часто дополняются домофоном, системой видеонаблюдения.
Принцип работы автоматики разберем ниже в отдельном разделе статьи.
Рекомендуем к прочтению:
- Как изготовить ворота своими руками
- Красивые кованые ворота
Как сделать ворота из профнастила: видео-уроки
Если работа новая, то даже после фото-отчета могут остаться вопросы. Некоторые из них могут прояснить видео-уроки по теме. Для начала повторение технологии, описанной выше: собираем каркас прямо на установленных столбах.
Та же технология, в последовательности фото.
https://youtube.com/watch?v=uVo_e6jdbYk
Второе видео о том, как правильно варить каркас при соединении труб под углом 45°. Подход профессиональный.
У тех, кто не сталкивался со сваркой ворот или дверей ранее, могут возникнуть вопросы о том, как приварить петли. Не так это просто, как кажется. Смотрим следующий видеоурок.
Более точное объяснение того, какие движения совершать во время приваривания воротных петель, куда направлять электрод и остальные нюансы смотрите в следующем видео.
Без специально оборудованного въезда для автомобиля сейчас не обойдется ни один приусадебный участок. Ворота могут быть сделаны из различных материалов от дерева до металла, но самым бюджетным, надежным и доступным считается изделие из профнастила.

Сделать ворота из профнастила своими руками несложно, если следовать определенному алгоритму и иметь минимальный набор инструментов и материалов.

Шаг 3 – Делаем чертеж
Схема распашных ворот должна включать многие параметры:
- Общую ширину проема для ворот;
- Ширину каждой створки;
- Количество, размеры опор, а также глубину их закапывания в грунт;
- Расположение калитки, если она планируется в или рядом;
- Место петель, шпингалета, ручек или засова;
- Наличие усиления каркаса уголками, внутренней рамой или перемычками;
- Высоту декоративного обрамления, вырезанных окошек.
Чертеж необходимо делать максимально подробно, с увеличением мелких соединений и швов, чтобы учесть все условия и требования.
Перед планированием схемы рекомендуется поискать готовые варианты в интернете и переделать их с учетом имеющихся параметров. Для подбора формы и конфигурации, подходящих декоративных элементов можно ознакомиться с фотографиями ворот из профнастила.
2 Как сделать распашные ворота из профлиста – чертежи, особенности конструкции
Ворота из интересующего нас материала могут быть откатными либо распашными. Чаще всего в частном строительстве возводятся ворота второго типа, так как их проще монтировать, да и в процессе эксплуатации они требуют намного меньше внимания к себе. Подобные распашные конструкции допускается устанавливать так, чтобы их открывание осуществлялось внутрь либо наружу. Конкретный вариант выбирает владелец загородного участка, исходя из своих запросов и предпочтений.
Каркас двух створок ворот делают чаще всего из стальных профилей сечением 80 на 80 или 80 на 100 миллиметров с достаточно большой толщиной стенок (около 7 миллиметров). Допускается изготавливать опоры и из других материалов, например из:
- балки швеллерной (гнутого швеллера) толщиной не менее 16 мм;
- цельного круглого деревянного бревна сечением от 20 и более сантиметров;
- бруса из прочной древесины с размерами 150х150 мм.

Жесткость конструкции обеспечивается применением металлических уголков 50 на 50 миллиметров. Размеры створок определяются с учетом того, какие автотранспортные средства будут заезжать на ограждаемый участок. Если через ворота планируется движение грузовиков, рекомендованная длина их проема составляет 6 метров. Если же на участок будут приезжать исключительно легковые машины, вполне достаточно длины ворот в 4 метра.
Профессиональные строители советуют, прежде всего, составить точный чертеж места размещения и протяженности конструкции, на основании которого выполняется расчет необходимого количества материалов и расходных элементов, требуемых для обустройства ворот с калиткой. Также по чертежу нужно производить нарезку металлических профилей, а затем и выполнять их соединение друг с другом в общую конструкцию.
Грамотная сборка створок зависит от того, насколько точно вы сможете создать прямоугольный каркас, идеально подогнав между собой все его элементы. Чтобы это ответственное мероприятие прошло без сучка и задоринки, необходимо выполнять операции подгонки на максимально ровной рабочей поверхности, которая к тому же должна быть негорючей, так как на ней предстоит осуществлять сварку.

Кроме того, следует изготовить из двух перпендикулярных друг другу брусков (деревянных) спецприспособление, предназначенное для формирования прямых углов. Его закрепляют на плоскости, где впоследствии будет выполняться стыковка деталей створок при помощи сварочных работ
Очень важно ответственно производить сварку каркаса таким образом, чтобы диагонали створок имели одинаковую длину
Также нужно повышенное внимание уделять показателю вертикальной прочности створок. Не забывайте о том, что они обязаны при эксплуатации выдерживать и свою массу, и вес профилированных листов, из коих состоят ворота, и дополнительно массу крепежных элементов (саморезов)
Чтобы добиться требуемой прочности, желательно привнести в конструкцию створок горизонтальные элементы (например, соединить по диагонали противоположные их углы)
Особенно это важно, когда речь идет о воротах длиной более четырех метров
Ворота из профнастила своими руками: чертежи и схемы
Любое строительство или изготовление конструкции невозможно без чертежа или хотя бы эскизного рисунка с чётко обозначенными размерами. Поэтому для изготовления ворот из профнастила своими руками чертежи, схемы просто необходимы, и без них никак не обойтись. Определившись с местом расположения объекта и произведя замеры, на листке бумаги, вспоминая школьные уроки черчения, следует нанести основные параметры будущей конструкции. За основу можно взять готовый проект ворот, который несложно найти в интернете и внести собственные изменения и размеры.
ФОТО: гаражные-ворота72.рфЭскиз конструкции простых распашных ворот с отдельно расположенной калиткой из профильной трубы
ФОТО: master-style.com.uaЭскизный проект ворот и калитки с двухсторонней обшивкой листами профнастила
ФОТО: roomester.ruЧертёж каркаса полотна откатных ворот
Крепим профнастил
Саморезы для профнастилаСаморезы для профнастила
Ширина профлиста обычно составляет 110 см. Порядка 10 см уйдет на перекрытия. Таким образом, для обшивки створки двухметровой ширины нужно ровно 2 листа материала. При желании ворота можно обшить с обеих сторон.
Крепим профнастил на ворота. Под петли делаем вырезыКрепим профнастил на ворота. Под петли делаем вырезы
Крепление листов выполняем при помощи шурупов с шестигранной головкой и гаек либо же специальными заклепками. Лучше, чтобы цвет крепежей и основного материала был одинаковым.
При необходимости предварительно окрашиваем элементы крепления. Болты или заклепки размещаем во внутренней волне листа (той, которая плотно прилегает к каркасу). Фиксацию выполняем в каждой волне профилированного листа. Для большего удобства можем предварительно сделать в каркасе отверстия для размещения крепежей.
Калитка обшивается аналогично створкам. Нужно лишь предварительно нарезать листы по размерам калитки.
Лицевая сторонаВид со двора
Столбы
Материалом для опорных элементов может служить металлический профиль квадратного или круглого сечения, деревянный массив. Первый вариант считается более надежным и долговечным решением. Как правило, это труба со стенками 3мм, поперечным сечением около 80 мм. Заготовки предварительно обрабатывают антикоррозионным составом длительного действия, который защищает металл при прямом контакте с грунтом.
Установка проводится на глубину не менее ⅓ от общей длины столба, но ниже уровня промерзания почвы. Заготовки должны иметь строго вертикальное положение. Для надежности дно лунки (ширина равна трем диаметрам столба) укрепляют утрамбованной насыпью из щебня с песком слоем 15-30 см. Остальное пространство заполняют цементным раствором (то же делают с полостью в профиле, если отсутствует верхняя герметичная заглушка). Стенки ямы рекомендуется укрыть рубероидом для защиты бетона.
Схема устройства опорной конструкцииИсточник kuprnn.ru
Дополнительно опорные элементы можно задекорировать. Это может быть кирпичная кладка или обшивка с имитацией природных материалов. В таком случае будет заужен въездной пролет, поэтому в проекте нужно учитывать размеры готовых столбов заранее.
Какие бывают ворота: конструктивные особенности
Вид будущего строения, а также удобство пользования зависит от конструктивных особенностей. Ворота могут быть распашными, раздвижными, откатными или гаражного типа. Современные конструкции нередко наделены автоматическими приводами, подъемными механизмами. Чаще всего ворота изготавливают шириной в 3–4 м, чтобы обеспечить проезд как легковому, так и грузовому автомобилю. Каждый из видов обладает своими достоинствами, и выбор конструкции зависит от личных предпочтений хозяев и наличия свободного пространства.
Распашные
Этот вариант со створками, открывающимися по типу дверей, всем известен уже давно и не утратил своих поклонников. Они легки в монтаже и последующей эксплуатации. Современные конструкции оснащают автоматикой, которая обеспечивает самостоятельное открывание и закрывание ворот. Недостатком таких конструкций выступает необходимость достаточно большого свободного участка, который позволит беспрепятственно открываться створкам. Чаще всего такие ворота делают двухстворчатыми, так как на одну панель будет приходиться большая нагрузка, да и открывать их неудобно.


Откатные
Данный тип напоминает раздвижные комнатные двери. Ворота представляют собой одну панель с роликовым основанием, которая перемещается вдоль забора. Такой тип открывания выгоден тем, что не требует дополнительного пространства. Поскольку створка передвигается, не соприкасаясь с землей, она не потребует уборки снега в зимнее время. Ворота оснащаются автоматикой, которая способна выдерживать 30-градусный мороз.


Подъемные
Это один из современных вариантов, когда ворота имеют одну створку, которая не отодвигается в стороны, а поднимается вверх. Механизм открытия может быть ручным или автоматическим. В открытом положении конструкция не занимает лишней площади, хотя сантиметров на 20 «украдет» высоту проема.


Раскладные ворота-гармошки
Данный вид встречается намного реже. Чаще всего такие конструкции изготавливают домашние умельцы для небольших участков, где есть существенное ограничение в пространстве. Ворота состоят из нескольких панелей профнастила, соединенных между собой петлями. Между створками прокладывают слой резины, который будет обеспечивать герметизацию, защиту от ветра.


Монтаж конструкции
Ворота из профнастила легки в установке
Ворота из профлиста можно сделать самому или же приобрести уже готовые
После окончательного выбора материала стоит задуматься, как сделать калитку и ворота из профнастила самостоятельно, чтобы они выполняли свои функции как можно дольше. Работа по установке ворот и калитки включает следующие этапы:
Подготовка плана и расчет потребности материалов. В начале работы стоит определить будущие габариты конструкции, в зависимости от чего будет приобретаться определенное количество материала. Если грамотно подойти к созданию плана, можно избежать преждевременного износа петель слишком масштабных конструкций за счет использования дополнительных перекладин в каркасе.
План ворот из профилированного листа
- Изготовление опорных стоек. Первым делом необходимо подготовить стойки-опоры, которые будут держать конструкцию ворот и калитки. Чаще всего ставят три стойки, если калитка и ворота находятся рядом. Если они располагаются даже на небольшом отдалении, для каждого элемента потребуется по две отдельные опоры. Стойками обычно выступают металлические трубы или столбы из камня, хотя можно использовать и деревянные детали. Для установки нужно подготовить ямы глубиной около метра и диаметром около полуметра. Трубы, заранее зачищенные от ржавчины, обработанные грунтовкой и окрашенные, опускают в ямы и заливают раствором. С помощью строительного отвеса нужно следить, чтобы стойки стояли строго вертикально. Через несколько дней раствор застынет, и можно будет повесить ворота на опоры.
- Создание каркаса ворот или калитки. Каркас или раму делают из металлической профильной трубы сечением 60 на 40 мм. Делают каркас на свободной ровной поверхности, куда можно положить хотя бы одну створку ворот. Варят каркас ручной электродуговой сваркой, а углы дополнительно укрепляют стальными уголками. Для большей жесткости конструкции добавляют горизонтальные перекладины внутри рамы, а также диагонали. Сварочные швы обязательно зачищаются.
- Крепление профнастила на каркас. Профлисты крепятся к каркасу саморезами или заклепками. Прикреплять можно не каждую «волну» листа, а через одну или реже.
- Монтаж конструкции. Монтаж калитки и ворот из профнастила к уже готовым опорам труда не составит. На опоры заранее крепят металлические петли или полимерные завесы, куда потом вешают готовые ворота или калитку. Установка замка, засова, притворных планок и ограничителя открывания створок, а также различных украшений – это последний этап монтажа ворот и калитки из профнастила.
Высокая степень экономии – это одно из преимуществ профнастила
Достоинствами профнастила является экологическая безопасность, удобство в монтаже, долговечность, прочность и эстетичный внешний вид
Установка ворот из профлиста может производиться без дополнительного оборудования в любое время года, включая и зимний период
Кованые ворота и калитка из профнастила.
(фотографии, инструкция, видео мастер-класс)
Рассмотрим на примере как же сделать красивые ворота из профнастила своими руками?
Если вы считаете, что все ворота из профнастила однообразные, то вам стоит посмотреть на следующую модель. Она, как раз-таки, является примером обратного утверждения. Хоть эта модель и выглядит сложной в плане создания, в её основе лежат всё те же принципы, о которых я говорил вам ранее в этой статье. Всё так же начинается с создания каркаса из профильной трубы, только вместо внутренних перемычек мастер закрепил в нём кованный металлический узор, сделанный своими руками. Далее мастер просто покрыл каркас ворот и калитки чёрной краской, установил его и обшил профнастилом, ничего сложного в этом нет, но зато какой впечатляющий эффект производят эти распашные металлические ворота. Так что если у вас есть определённые умения, желание и немного времени, вы легко можете создать нечто подобное своими руками.
Подробная фото-инструкция Вам в помощь!
Источник идеи и фотографий, видео мастер-классПервая часть: https://www.youtube.com/watch?v=Z2pnmjgVxTwВторая часть: https://www.youtube.com/watch?v=qQelqyrYjSQТретья часть: https://www.youtube.com/watch?v=G_PDTc17PK0Четвёртая часть: https://www.youtube.com/watch?v=mfNOatHH7JgОригинальное название: Кованые ворота новая технология Автор видео: Миша Коваль
Как установить забор на наклонной поверхности.
(фотографии, видео мастер-класс)
С установкой забора на ровной плоской поверхности всё понятно. Но как же установить забор из профнастила на наклонной поверхности своими руками?
Это уже немного сложнее, но для нас не существует никаких проблем! Давайте поразмышляем над тем, что можно сделать в такой ситуации.
Существует три варианта установки забора на наклонной, неровной плоскости своими руками:
- Самый банальный способ – засыпать поверхность землёй, тем самым создав поверхность одного уровня;
- Немного сложнее – забетонировать плоскость;У этих двух методов борьбы с неровностями поверхности при установке забора своими руками один общий минус: большая трата времени, средств и материала, значит, они нам не подходят, ведь наши главные цели: практичность и экономия. Так что же делать? Есть ещё один выход!
- Установка столбов на разном уровне;Если наклон поверхности не изменяется на всём её протяжении или меняется незначительно, можно воспользоваться именно таким способом. Столбы из профнастила устанавливаются с понижением уровня от максимального к минимальному, при этом, высота их относительно поверхности земли должна оставаться неизменной. Ну и, перекладины между столбами, соответственно, крепятся по тому же принципу. Затем, в самом конце, на такую конструкцию просто крепится профнастил.
Пример использования такой системы вы можете увидеть на следующих фотографиях.
Источник идеи и фотографий, видео мастер-класс: https://www.youtube.com/watch?v=WBNS3tdf8fcОригинальноеназвание: Fencing Mildura — Panel Fence Video 2 002.movАвтор видео: FencingMildura





